Страница 3 - ОБЩИЕ СВЕДЕНИЯ ОБ ИЗДЕЛИИ
3 1 ОБЩИЕ СВЕДЕНИЯ ОБ ИЗДЕЛИИ 1.1 Настоящее руководство по эксплуатации, совмещенное с паспортом, содержит техниче- ское описание роторной винтовой компрессорной установки (далее установка) ВК15Т и ее испол- нений; указания по эксплуатации и технические данные, гарантированные изготовителем. Установ...
Страница 4 - НАЗНАЧЕНИЕ; вне помещений, под воздействием атмосферных осадков.
4 2 НАЗНАЧЕНИЕ 2.1 Установка является сложным электромеханическим изделием и предназначена для обес- печения сжатым воздухом пневматического оборудования, аппаратуры и инструмента, применяе-мого в промышленности, автосервисе и для других целей потребителя. Использование изделия позволяет значительно...
Страница 5 - ТЕХНИЧЕСКИЕ ХАРАКТЕРИСТИКИ; Общие требования безопасности соответствуют ГОСТ МЭК 60204-1.; Наименование; Характеристика приводного ремня приведена в таблице 2.; Код
5 3 ТЕХНИЧЕСКИЕ ХАРАКТЕРИСТИКИ 3.1 Общие требования безопасности соответствуют ГОСТ МЭК 60204-1. 3.2 Основные технические характеристики приведены в таблице 1. Таблица 1 Наименование показателя Значение показателя В К 15 Т - 8 В К 15 Т -8 - 500 В К 15 Т -8 - 500 Д В К 15 Т -10 В К 15 Т -10 - 500 В К...
Страница 6 - Характеристика смазочного материала
6 3.4 Характеристика смазочного материала Номинальный заправочный объём масла для установки составляет 6 л. Для заправки системы смазки и охлаждения установки рекомендуется использовать, не сме- шивая, следующие марки компрессорных масел минерального типа (или аналогичные по требова-ниям и качеству)...
Страница 7 - КОМПЛЕКТНОСТЬ; Комплектность поставки изделия приведена в таблице 3; Установка компрессорная
7 4 КОМПЛЕКТНОСТЬ 4.1 Комплектность поставки изделия приведена в таблице 3 Таблица 3 Наименование Количество, шт. ВК15Т-8, ВК15Т-10, ВК15Т-15 ВК15Т-8-500, ВК15Т-10-500 ВК15Т-15-500 ВК15Т-8-500Д, ВК15Т-10-500Д ВК15Т-15-500Д Установка компрессорная 1 Установка компрессорная. Руководство по эксплуатаци...
Страница 11 - УСТРОЙСТВО; Общий вид установки
11 5 ТЕХНИЧЕСКОЕ ОПИСАНИЕ 5.1 УСТРОЙСТВО Компрессорная установка представляет собой компактную машину для производства сжато- го воздуха, выполненную в шумопоглощающем корпусе и состоящую из следующих основных агрегатов, узлов и деталей: винтового блока; клапана всасывающего; электродвигателя с вент...
Страница 13 - Конденсатоотводчик; (см. рисунок 2 или 3) предназначен для удаления скопившихся в; Осушитель; важные узлы, указывая на возможные неисправности:
13 17 – Конденсатоотводчик (см. рисунок 2 или 3) предназначен для удаления скопившихся в ресивере конденсата и масла. 18 – Осушитель (см. рисунок 3) предназначен для отделения влаги, содержащейся в сжатом воздухе. Описание, схема функциональная, порядок работы, техническое обслуживание и ремонт осуш...
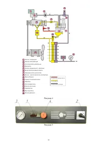
Страница 15 - Рисунок 6 – Блок-схема компрессорной установки
15 T P E X T 1 Q S А 1 К К К F U 1 F U 2 F U 3 F U 4 F U 5 Q F S F Рисунок 6 – Блок-схема компрессорной установки
Страница 16 - ПРИНЦИП РАБОТЫ
16 ВНИМАНИЕ: В СЛУЧАЕ АВАРИЙНОГО СИГНАЛА (СРАБАТЫВАНИЯ УСТРОЙСТВА ЗАЩИТЫ) ПРОИСХОДИТ ВЫКЛЮЧЕНИЕ УСТАНОВКИ. ДЛЯ ПОВТОРНОГО ВКЛЮЧЕНИЯ УСТАНОВКИ НЕОБХОДИМО УСТАНОВИТЬ ПРИ- ЧИНУ, КОТОРАЯ МОГЛА ПРИВЕСТИ К ОСТАНОВУ, ДЛЯ ЧЕГО ПРОВЕРИТЬ: 1) НАЛИЧИЕ, ВЕЛИЧИНУ И ЧЕРЕДОВАНИЕ ТРЕХ ФАЗ НАПРЯЖЕНИЯ ПИТАНИЯ (ПРИ СИ...
Страница 17 - УКАЗАНИЕ МЕР БЕЗОПАСНОСТИ
17 6 УКАЗАНИЕ МЕР БЕЗОПАСНОСТИ 6.1 Монтаж и запуск в эксплуатацию компрессорной установки должен производиться ква- лифицированным персоналом, имеющим соответствующие допуска по обслуживанию электро-установок напряжением до 1000 В и по обслуживанию сосудов под давлением. К обслуживанию допускаются л...
Страница 19 - ПОДГОТОВКА К РАБОТЕ
19 7 ИНСТРУКЦИЯ ПО ЭКСПЛУАТАЦИИ 7.1 ПОДГОТОВКА К РАБОТЕ 7.1.1 Общие указания - Для правильного размещения установки руководствоваться приложением А (габаритные и присоединительные размеры компрессорной установки). - Освободить установку от поддона и упаковки и убедиться в отсутствии повреждений или ...
Страница 20 - РЕ; ПОРЯДОК РАБОТЫ
20 приводит к попаданию конденсата в масло и снижению его смазывающих свойств, что снижает сроки службы винтовой группы, а также создает возможность выхода ее из строя. Эксплуатация оборудования при температурах, превышающих максимальное значение, не обеспечивает нормальный теплообмен и охлаждение м...
Страница 21 - происходит автоматический пуск установки и т.д.
21 ВНИМАНИЕ: ПРЕЖДЕ ЧЕМ ВЫПОЛНЯТЬ ПЕРВЫЙ ПУСК НЕОБХОДИМО: - ОЗНАКОМИТЬСЯ С СИСТЕМАМИ И УЗЛАМИ ИЗДЕЛИЯ; - КРАТКОВРЕМЕННЫМ (1…2 СЕКУНДЫ) ВКЛЮЧЕНИЕМ УДОСТОВЕРИТЬСЯ, ЧТО НАПРАВЛЕНИЕ ВРАЩЕНИЯ ВАЛА БЛОКА ВИНТОВОГО СООТВЕТСТВУЕТ СТРЕЛКЕ, УКАЗАННОЙ НА КОРПУСЕ БЛОКА ВИНТОВОГО, А НАПРАВЛЕНИЕ ПОТОКА ВОЗДУХА ОТ...
Страница 22 - ТЕХНИЧЕСКОЕ ОБСЛУЖИВАНИЕ; приведены в таблице 4.
22 8 ТЕХНИЧЕСКОЕ ОБСЛУЖИВАНИЕ 8.1 Правильное обслуживание является одним из основных условий продолжительной рабо- ты установки. Техническое обслуживание установки заключается в контроле за работой ее механизмов, проверке технического состояния, очистке и т. д. Техническое обслуживание установки под...
Страница 23 - через каждые 500 часов работы
23 Продолжение таблицы 4. - Заменить ремни; - Заменить ремкомплект клапана всасывающего; - Заменить ремкомплект клапана минимального давления; - Заменить ремкомплект термостата; - Заменить ремкомплект уплотнений блока винтового. – – – – + – - Заменить полный ремкомплект блока винтового; - Заменить р...
Страница 26 - Таблица 5 – Перечень сменных запасных частей, применяемых при ТО
26 Таблица 5 – Перечень сменных запасных частей, применяемых при ТО Код Наименование Применяемость 4052004003 Фильтр масляный, шт. 1 4092100100 Фильтр воздушный, шт. 1 4060100200 Фильтр-маслоотделитель, шт. 1 4081000301 Патрон фильтра-влагоотделителя, шт.* 1 См. п.3.5 Масло, кг (л) 5,5 (6) См. п.3.3...
Страница 30 - 1 СВЕДЕНИЯ О СОДЕРЖАНИИ ДРАГОЦЕННЫХ И ЦВЕТНЫХ МЕТАЛЛОВ
30 11 СВЕДЕНИЯ О СОДЕРЖАНИИ ДРАГОЦЕННЫХ И ЦВЕТНЫХ МЕТАЛЛОВ 11.1 Содержание сплава серебра Ag-CdO (90%-10%) и цветных металлов в компрессорной уста- новке указано в таблице 7. Таблица 7 Модель компрессорной установки Масса сплава сереб- ра Ag-CdO (90%- 10%), г Алюминий и алю-миниевые сплавы, кг Медь ...
Страница 31 - вий и правил эксплуатации, транспортирования и хранения.; Гарантийные обязательства не распространяются:; гламентом проведения технического обслуживания; Гарантийные обязательства не предусматривают:; No документа, подтверждающего покупку и обязательства продавца
31 12 ГАРАНТИИ ИЗГОТОВИТЕЛЯ 12.1 Гарантийный срок эксплуатации 12 месяцев со дня ввода изделия в эксплуатацию, но не более 18 месяцев со дня выпуска, при условии, что наработка не превысила 4000ч. Изготовитель гарантирует: соответствие изделия приведенным характеристикам, при соблюдении потребител...
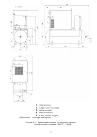
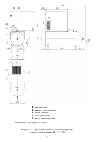
Страница 33 - Приложение А; выброс теплого воздуха
33 Приложение А Габаритные и присоединительные размеры компрессорных установок 1 – забор воздуха; 2 – выброс теплого воздуха; 3 – кабель сетевой; 4 – болт заземления; 5 – выход сжатого воздуха. Примечание – * Размеры для справок. Рисунок А.1 – Присоединительные и установочные размеры компрессорной у...
Страница 37 - Приложение В; Руководство пользователя контроллера DOTECH FX32A; Технические характеристики; Описание работы
37 Приложение В Руководство пользователя контроллера DOTECH FX32A 1 Технические характеристики Многофункциональный промышленный электронный блок управления (контроллер DOTECH FX32) соответствует стандартам МЭК и предназначен для управления воздушными винтовыми компрессорами. Температура эксплуатации...
Страница 39 - Гарантийное свидетельство; ремонт компрессорного оборудования; Уважаемый покупатель!
Гарантийное свидетельство Данное гарантийное свидетельство является обязательством на гарантийный ремонт компрессорного оборудования Гарантийное свидетельство дает право на бесплатный ремонт и замену деталей, узлов, вышедших из строя по вине изготовителя, в период гарантийного срока. Уважаемый покуп...
Страница 40 - Для проведения гарантийного ремонта предъявите:; Гарантийное свидетельство.; Гарантийные обязательства изготовителя прекращаются, в случае:
Для проведения гарантийного ремонта предъявите: 1. Гарантийное свидетельство. 2. Документы, подтверждающие покупку. 3. Свидетельство о приемке и упаковывании. При отсутствии одного из указанных документов Вам может быть отказано в гаран-тийном ремонте. Гарантийные обязательства изготовителя прекраща...