Посудомоечные машины Zigmund & Shtain DW 129.4509 X - инструкция пользователя по применению, эксплуатации и установке на русском языке. Мы надеемся, она поможет вам решить возникшие у вас вопросы при эксплуатации техники.
Если остались вопросы, задайте их в комментариях после инструкции.
"Загружаем инструкцию", означает, что нужно подождать пока файл загрузится и можно будет его читать онлайн. Некоторые инструкции очень большие и время их появления зависит от вашей скорости интернета.

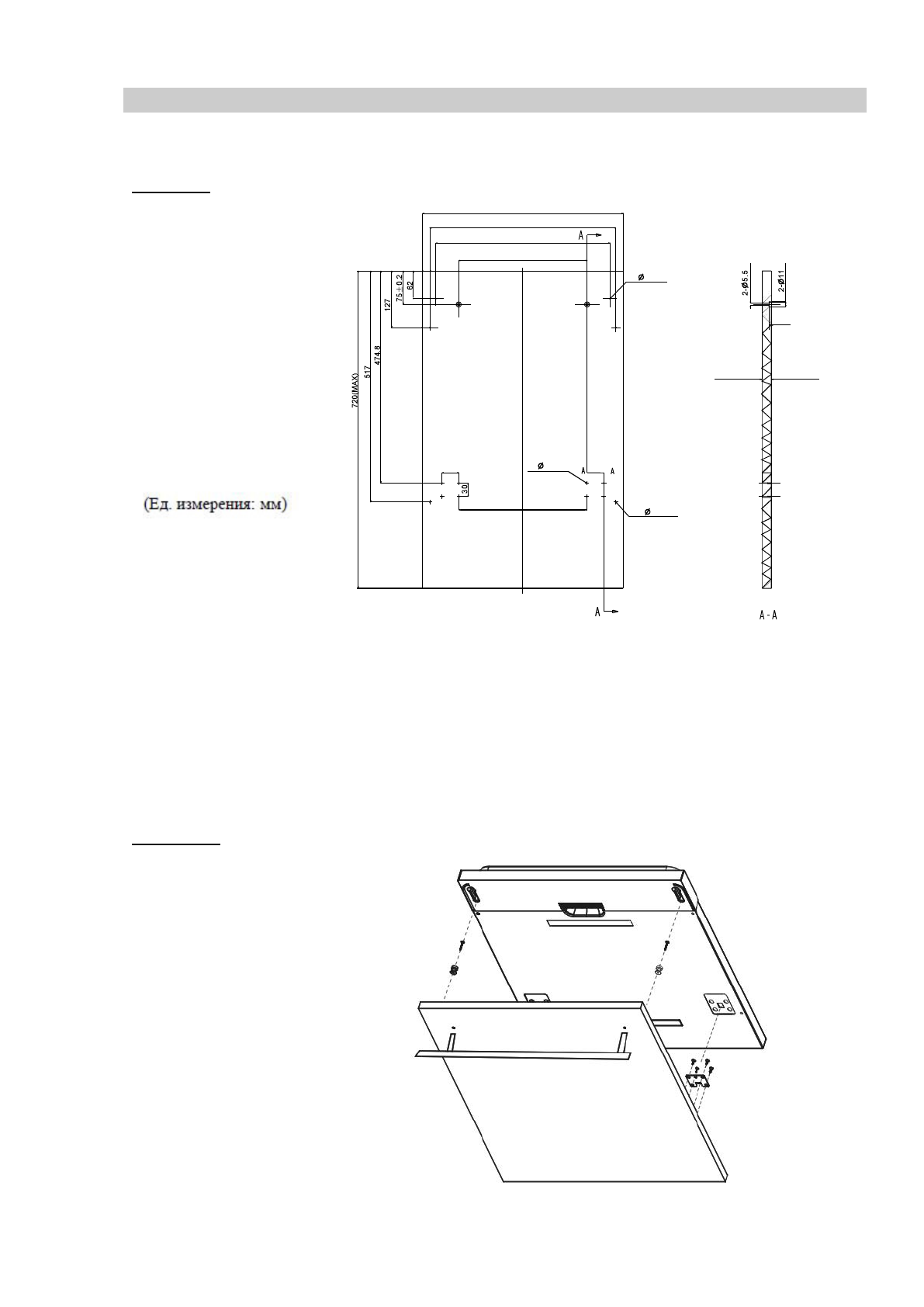
Размеры и установка внешней панели
1. Установите внешнюю панель, как показано на рис. 3.
Рисунок 3
2. Установите крюк на внешней панели и вставьте его в отверстие на дверце
посудомоечной машины (рис. 4а). Установив панель, закрепите еѐ на дверце
машины при помощи гаек и болтов (рис.4б).
Рисунок 4а
Установка внешней панели.
Внешняя панель должна
соответствовать
размерам, приведѐнным
на рисунке.
17
dp8
439
416
0.2
±
390
0.2
±
287.5
0.2
±
286
38
8 - 2
dp8
4 - 2
dp8
2 - 2
20
MAX
(
)
5
Характеристики
Остались вопросы?Не нашли свой ответ в руководстве или возникли другие проблемы? Задайте свой вопрос в форме ниже с подробным описанием вашей ситуации, чтобы другие люди и специалисты смогли дать на него ответ. Если вы знаете как решить проблему другого человека, пожалуйста, подскажите ему :)












