Посудомоечные машины Zigmund Shtain DW 119.6008 X - инструкция пользователя по применению, эксплуатации и установке на русском языке. Мы надеемся, она поможет вам решить возникшие у вас вопросы при эксплуатации техники.
Если остались вопросы, задайте их в комментариях после инструкции.
"Загружаем инструкцию", означает, что нужно подождать пока файл загрузится и можно будет его читать онлайн. Некоторые инструкции очень большие и время их появления зависит от вашей скорости интернета.

Пожалуйста внимательно прочтите инструкцию по установке.
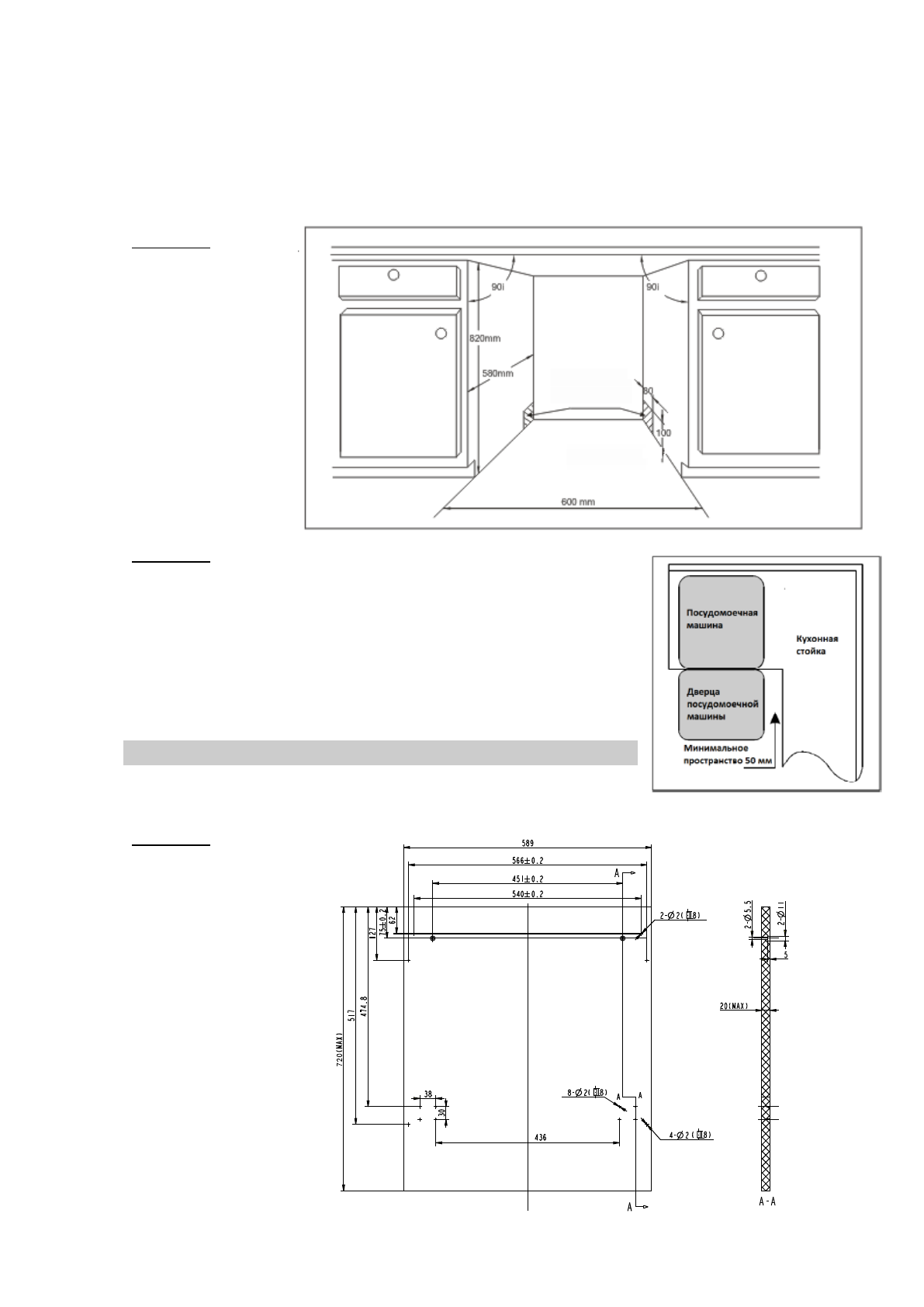
Изображения с габаритными размерами и местом установки устройства.
Перед перемещением устройства к месту установки проведите подготовительные работы.
1. Выберите место для установки рядом с раковиной, что облегчит подключение шлангов для подачи и отвода воды
(см. рис. 1).
2. Если устройство устанавливается в углу комнаты, то оставьте немного места (см. рис. 2), чтобы оставалось
пространство для открытия дверцы.
Рисунок 1
Размеры кухонной стойки
Менее 5мм между
верхней частью машины
и кухонной стойкой.
Дверца должна быть
вровень с кухонной
стойкой.
Рисунок 2
Минимальное пространство, необходимое для открытия двери.
Размеры и установка внешней панели
1. Установите внешнюю панель, как показано на рис. 3.
Рисунок 3
Внешняя панель должна
соответствовать
размерам, приведѐнным
на рисунке.
16
Характеристики
Остались вопросы?Не нашли свой ответ в руководстве или возникли другие проблемы? Задайте свой вопрос в форме ниже с подробным описанием вашей ситуации, чтобы другие люди и специалисты смогли дать на него ответ. Если вы знаете как решить проблему другого человека, пожалуйста, подскажите ему :)