Посудомоечные машины Whirlpool ADPF 883 - инструкция пользователя по применению, эксплуатации и установке на русском языке. Мы надеемся, она поможет вам решить возникшие у вас вопросы при эксплуатации техники.
Если остались вопросы, задайте их в комментариях после инструкции.
"Загружаем инструкцию", означает, что нужно подождать пока файл загрузится и можно будет его читать онлайн. Некоторые инструкции очень большие и время их появления зависит от вашей скорости интернета.

130
Подключение к водопроводу
Подключение к крану холодной воды
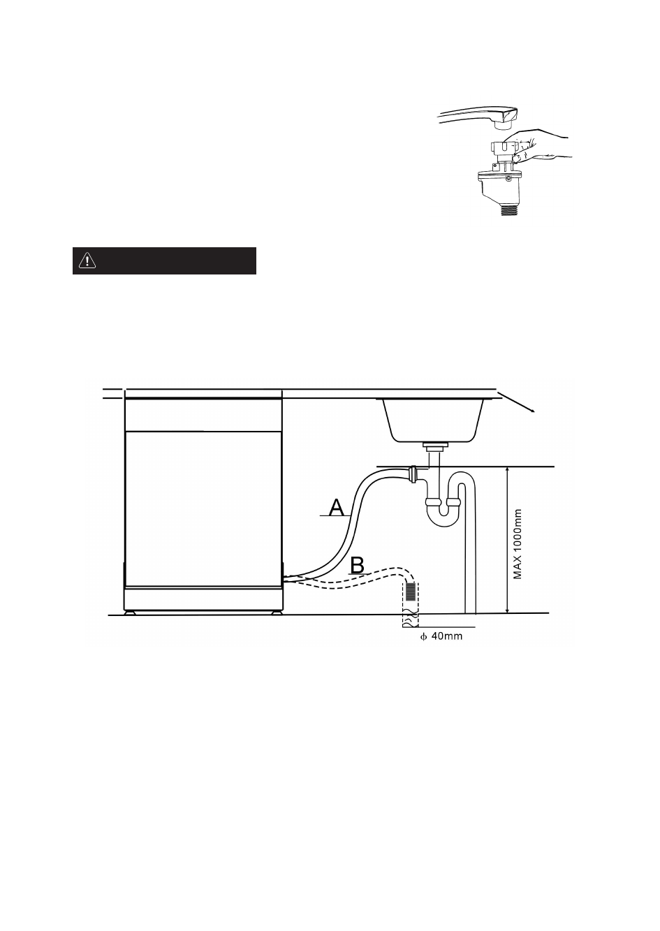
Подсоедините наливной шланг к фитингу резьбой 3/4 дюйма и
убедитесь в надежности соединения. Если водопроводные трубы
новые или не использовались в течение продолжительного времени,
сливайте воду до тез пор, пока она не станет чистой. Это
предотвратит засорение впускного клапана и выход машины из
строя.
После использования закройте кран.
Подсоединение сливного шланга
Вставьте сливной шланг непосредственно в канализационную трубу диаметром не менее 40 мм, или
направьте шланг в раковину, не допуская его сгибания или передавливания. Расстояние верхней точки
шланга от пола должно быть меньше 1000 мм.
ПРЕДУПРЕЖДЕНИЕ:
ПРИМЕЧАНИЕ
Расстояние верхней точки
шланга от пола должно
быть меньше 1000 мм.
Сливной шланг
Столешница
Передняя сторона
ПОДСОЕДИНЯЙТЕ СЛИВНОЙ ШЛАГ К КАНАЛИЗАЦИИ СПОСОБОМ A ИЛИ B