Посудомоечные машины Whirlpool ADG 910 - инструкция пользователя по применению, эксплуатации и установке на русском языке. Мы надеемся, она поможет вам решить возникшие у вас вопросы при эксплуатации техники.
Если остались вопросы, задайте их в комментариях после инструкции.
"Загружаем инструкцию", означает, что нужно подождать пока файл загрузится и можно будет его читать онлайн. Некоторые инструкции очень большие и время их появления зависит от вашей скорости интернета.

83
Рисунок 2
Минимальное расстояние при открывании дверцы.
Посудомоечная
машина
Дверца
посудомоечной
машины
Кухонный
шкаф
-
Минимальное
расстояние 50 мм
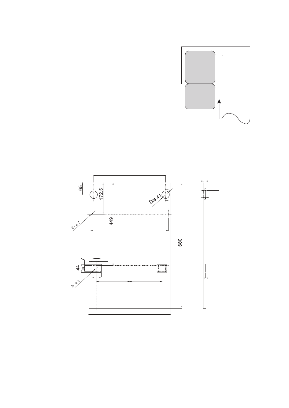
Размеры и монтаж декоративной панели
1.
Декоративную панель можно выполнить в соответствии с рисунком
3
.
Рисунок 3
Декоративную панель следует выполнить в соответствии с размерами, указанными на рисунке.
3.5
15
444
1.5
390
179
175
19
38
52
418
Единица измерения: мм
Глубина
отверстия
10
Глубина
отверстия
10








