Посудомоечные машины Samsung DW60M6050BB - инструкция пользователя по применению, эксплуатации и установке на русском языке. Мы надеемся, она поможет вам решить возникшие у вас вопросы при эксплуатации техники.
Если остались вопросы, задайте их в комментариях после инструкции.
"Загружаем инструкцию", означает, что нужно подождать пока файл загрузится и можно будет его читать онлайн. Некоторые инструкции очень большие и время их появления зависит от вашей скорости интернета.

40_
Встановлення посудомийної машини
КРОК 2
ПЕРЕВІРКА ПОДАЧІ ВОДИ ТА ЕЛЕКТРОТЕХНІЧНИХ ВИМОг
• Тиск у лінії подачі води має становити 0,04-1,0 МПа.
• У посудомийну машину має подаватися лише холодна вода. Температура води не має перевищувати 60 ˚C.
•  У посудомийну машину не має подаватися гаряча вода. Це призведе до виникнення несправності. 
•  Номінальна напруга має становити 220-240 В~, 50 Гц.
• Встановлюйте виріб, попередньо від’єднавши кабель живлення.
• Використовуйте розетку з максимальною силою струму в 16 A. (Максимальна сила струму для цієї посудомийної
машини становить 11 A).
• Під’єднуючи посудомийну машину до джерела живлення, перевірте наявність наведених нижче компонентів
електромережі.
- Запобіжник або автоматичний переривач на 220-240 В~ / 50 Гц.
- Окремий ланцюг електроживлення для посудомийної машини.
• Після встановлення перевірте, чи кабель живлення не зігнутий і не пошкоджений.
•  Перш ніж під’єднувати до посудомийної машини подачу води, перевірте чи клапан подачі води закрито.
•  Лінія подачі води має бути загерметизована ущільнюючою стрічкою чи іншим герметиком для запобігання витоку води.
КРОК 3
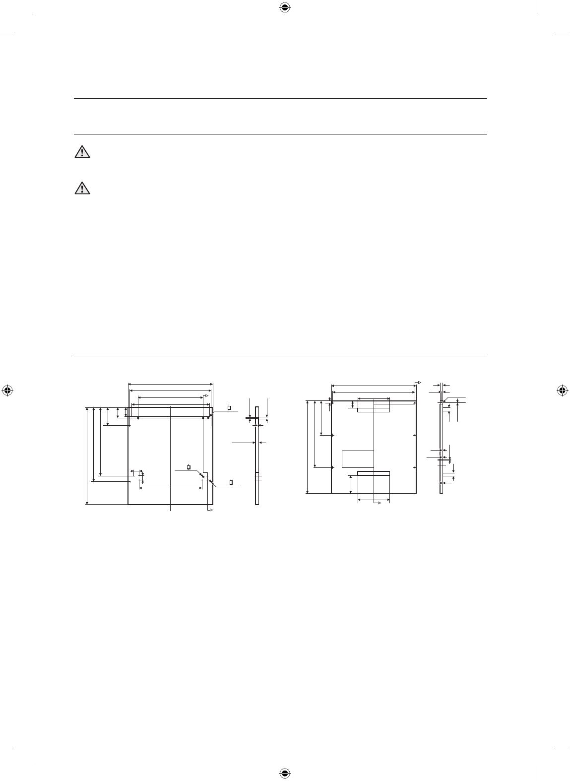
ПІДгОТОВКА НАДБУДОВНОЇ ПАНЕЛІ
(ДЛЯ ПОВНІСТю ВБУДОВАНИХ АБО НАПІВВБУДОВАНИХ
ПОСУДОМИЙНИХ МАШИН)
Надбудовна панель має відповідати розмірам, наведеним на малюнку.
A
A
A
A-A
589
38
436
30
720 (МАК
С.)
20 (МАКС.)
2-Ø 5,5
2-Ø 2( 8)
4-Ø 2( 8)
8-Ø 2( 8)
2-Ø 11
517
474,8
127
566±0,2
451±0,2
540±0,2
75±0,2
62
A
A
A-A
18
6-8
8-9,5
1,5
6-C1,5
1,5
566
589
36
220
115,5
20
220
570 (МАК
С.)
397
202
7
6-Ø 1
8-Ø 2
20
Повністю вбудована
Напіввбудована
УВАГА
ПОПЕРЕДЖЕННЯ
Встановлення посудомийної машини
DW60M6050BB_WT_DD81-02437R-04_UK.indd 40
11/10/2020 11:19:47 AM
Содержание
- 2 Инструкции по технике безопасности; посудомоечной машины.; ВАЖНЫЕ СВЕДЕНИЯ ПО ТЕХНИКЕ БЕЗОПАСНОСТИ; Важные предупредительные знаки
 - 3 Для стран Европы
 - 4 ОСТОРОЖНО
 - 5 ИНСТРУКЦИИ ПО ИСПОЛЬЗОВАНИЮ ПОСУДОМОЕЧНОЙ МАШИНЫ
 - 6 ИНСТРУКЦИИ ДЛЯ ЗАЩИТЫ ДЕТЕЙ
 - 7 ИНСТРУКЦИИ ПО УСТАНОВКЕ ПОСУДОМОЕЧНОЙ МАШИНЫ
 - 9 ИНФОРМАЦИЯ О МАРКИРОВКЕ WEEE
 - 10 Содержание
 - 11 Детали и функции; ФУНКЦИИ ПОСУДОМОЕЧНОЙ МАШИНЫ
 - 14 ПАНЕЛЬ УПРАВЛЕНИЯ
 - 17 ДИСПЛЕИ
 - 19 Использование моющего средства и; РЕЖИМ УМЯгЧИТЕЛЯ ВОДЫ (НАСТРОЙКА УРОВНЯ ЖЕСТКОСТИ ВОДЫ)
 - 20 ЗАгРУЗКА СОЛИ В УМЯгЧИТЕЛЬ
 - 21 ИСПОЛЬЗОВАНИЕ МОЮЩЕгО СРЕДСТВА; Наполнение дозатора моющего средства
 - 22 ИСПОЛЬЗОВАНИЕ ОПОЛАСКИВАТЕЛЯ; Наполнение резервуара для ополаскивателя
 - 23 ИСПОЛЬЗОВАНИЕ ФУНКЦИИ ТАБЛЕТКА
 - 24 Загрузка посуды в посудомоечную; приборов могут отличаться в зависимости от модели.; ЗАгРУЗКА ВЕРХНЕЙ КОРЗИНЫ
 - 25 Регулировка верхней корзины
 - 26 ЗАгРУЗКА НИЖНЕЙ КОРЗИНЫ; СКЛАДЫВАНИЕ ШТЫРЕЙ НИЖНЕЙ КОРЗИНЫ
 - 29 ПРИгОДНОСТЬ ПОСУДЫ ДЛЯ МЫТЬЯ В ПОСУДОМОЕЧНОЙ МАШИНЕ; Загрузка столовых приборов и тарелок
 - 30 Циклы мытья; ВКЛЮЧЕНИЕ УСТРОЙСТВА; ИЗМЕНЕНИЕ ЦИКЛА; Добавление посуды
 - 31 ЗАВЕРШЕНИЕ ЦИКЛА МЫТЬЯ
 - 33 Чистка и уход; ОЧИСТКА ФИЛЬТРОВ; Система фильтров; Блок фильтров
 - 34 ЧИСТКА КРОНШТЕЙНОВ ФОРСУНОК; ОЧИСТКА ДВЕРЦЫ; УХОД ЗА ПОСУДОМОЕЧНОЙ МАШИНОЙ
 - 35 ОБСЛУЖИВАНИЕ ПОСУДОМОЕЧНОЙ МАШИНЫ
 - 36 Монтаж посудомоечной машины; Сведения об электрических подключениях; Инструкции по заземлению; ПОДАЧА И СЛИВ ВОДЫ; Подключение холодной воды
 - 37 Подключение горячей воды; Слив излишков воды из шлангов; Слив воды
 - 38 ПОДСОЕДИНЕНИЕ СЛИВНЫХ ШЛАНгОВ; РАЗМЕЩЕНИЕ УСТРОЙСТВА; Выравнивание устройства; ЗАПУСК ПОСУДОМОЕЧНОЙ МАШИНЫ
 - 39 Установка посудомоечной машины; ВСТРАИВАЕМАЯ ПОД СТОЛЕШНИЦУ, ЧАСТИЧНО ВСТРАИВАЕМАЯ, ПОЛНОСТЬЮ; ВЫБОР ОПТИМАЛЬНОгО МЕСТА ДЛЯ УСТАНОВКИ ПОСУДОМОЕЧНОЙ МАШИНЫ
 - 40 ПРОВЕРКА НА СООТВЕТСТВИЕ ТРЕБОВАНИЯМ К СИСТЕМЕ ПОДАЧИ; ПОДгОТОВКА ДЕКОРАТИВНОЙ ПАНЕЛИ
 - 42 РЕгУЛИРОВКА НАТЯЖЕНИЯ ПРУЖИНЫ ДВЕРЦЫ
 - 43 УСТАНОВКА ПОСУДОМОЕЧНОЙ МАШИНЫ
 - 44 ВЫРАВНИВАНИЕ ПОСУДОМОЕЧНОЙ МАШИНЫ
 - 45 Поиск и устранение неисправностей; ПЕРЕД ОБРАЩЕНИЕМ В СЛУЖБУ ТЕХНИЧЕСКОЙ ПОДДЕРЖКИ
 - 48 ИНФОРМАЦИОННЫЕ КОДЫ
 - 49 Приложение; ТЕХНИЧЕСКИЕ ХАРАКТЕРИСТИКИ
 - 50 РАЗМЕРЫ УСТРОЙСТВА
 - 51 Стандартное тестирование
 - 53 Технические данные изделия
 - 55 Важные термины
 - 56 ВОПРОСЫ ИЛИ КОММЕНТАРИИ?
 
Характеристики
Остались вопросы?Не нашли свой ответ в руководстве или возникли другие проблемы? Задайте свой вопрос в форме ниже с подробным описанием вашей ситуации, чтобы другие люди и специалисты смогли дать на него ответ. Если вы знаете как решить проблему другого человека, пожалуйста, подскажите ему :)
 
 
 
 
 
 
 
 
 
 
 
 
 
 
 
 
 
 
 
 
 
 
 
 
 
 
 
 
 
 
 
 
 
 
 
 
 
 
 
 
 
 
 
 
 
 
 
 
 
 
 
 
 
 
 
 
 
 
 
 
 
 
 
 
 
 
 
 
 
 
 
 
 
 
 
 
 
 
 
 
 
 
 
 
 
 
 
 
 
 
 
 
 
 
 
 
 
 
 
 
 
 
 
 
 
 
 
 
 
 
 
 
 
 
 
 
 
 
 
 
 
 
 
 
 
 
 
 
 
 
 
 
 
 
 
 
 
 
 
 
 
 
 
 
 
 
 
 
 
 
 
 
 
 
 
 
 
 
 
 
 
 
 
 
 
 
 
 
 
 
 
 
 
 
 
 
 
 
 
 
 
 
 
 
 
 
 
 
 
 
 
 
 
 
 
 
 
 
 
 
 
 
 
 
 
 
 
 
 
 
 
 
 
 
 
 
 
 
 
 
 
 
 
 











