Посудомоечные машины Samsung DW60M6050BB/FS/FW/SS/US/UW - инструкция пользователя по применению, эксплуатации и установке на русском языке. Мы надеемся, она поможет вам решить возникшие у вас вопросы при эксплуатации техники.
Если остались вопросы, задайте их в комментариях после инструкции.
"Загружаем инструкцию", означает, что нужно подождать пока файл загрузится и можно будет его читать онлайн. Некоторые инструкции очень большие и время их появления зависит от вашей скорости интернета.

40_
Установка посудомоечной машины
ШАг 2.
ПРОВЕРКА НА СООТВЕТСТВИЕ ТРЕБОВАНИЯМ К СИСТЕМЕ ПОДАЧИ
ВОДЫ И ЭЛЕКТРОПИТАНИЮ
• Давление подаваемой воды должно составлять от 0,04 МПа до 1,0 МПа.
• К посудомоечной машине должна подводиться только холодная вода. Температура воды не должна превышать
60 °C.
• Не следует подводить к посудомоечной машине горячую воду. Несоблюдение этого требования может привести к
нарушению функционирования устройства.
• Номинальное напряжение должно составлять 220–240 В переменного тока, 50 Гц.
• Во время установки устройства не следует подключать к электросети кабель питания.
• Следует использовать сетевую розетку, максимально допустимая сила тока которой не превышает 16 А.
(Максимально допустимая сила тока для данной посудомоечной машины составляет 11 А.)
• При подключении посудомоечной машины к электросети убедитесь в обеспечении следующих требований к
электропитанию:
- Наличие предохранителя или автоматического выключателя для 220–240 В переменного тока, 50 Гц.
- Наличие отдельной ответвленной цепи для подключения посудомоечной машины.
• После установки убедитесь в отсутствии перегибов или повреждений кабеля питания.
• Перед подключением водопровода к посудомоечной машине убедитесь, что клапан подачи воды закрыт.
• Уплотните места подключения водопровода с помощью тефлоновой ленты или герметика для предотвращения протечек
воды.
ШАг 3.
ПОДгОТОВКА ДЕКОРАТИВНОЙ ПАНЕЛИ
(ДЛЯ ПОЛНОСТЬЮ ВСТРАИВАЕМОЙ И ЧАСТИЧНО ВСТРАИВАЕМОЙ
ПОСУДОМОЕЧНОЙ МАШИНЫ)
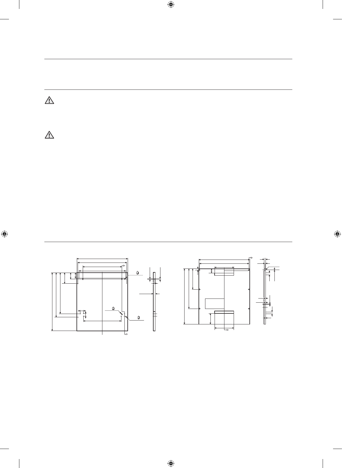
Декоративная панель должна быть изготовлена в соответствии с размерами, указанными на рисунке.
A
A
A
A-A
589
38
436
30
720 (МАК
С.)
20 (МАКС.)
2-Ø 5,5
2-Ø 2( 8)
4-Ø 2( 8)
8-Ø 2( 8)
2-Ø 11
517
474,8
127
566±0,2
451±0,2
540±0,2
75±0,2
62
A
A
A-A
18
6–8
8–9,5
1,5
6-C1,5
1,5
566
589
36
220
115,5
20
220
570 (МАК
С.)
397
202
7
6-Ø 1
8-Ø 2
20
Полностью встраиваемая
Частично встраиваемая
ОСТОРОЖНО
ПРЕДУПРЕЖДЕНИЕ
Установка посудомоечной машины
DW60M6050BB_WT_DD81-02437R-04_RU.indd 40
11/10/2020 11:15:21 AM
Содержание
- 2 Инструкции по технике безопасности; посудомоечной машины.; ВАЖНЫЕ СВЕДЕНИЯ ПО ТЕХНИКЕ БЕЗОПАСНОСТИ; Важные предупредительные знаки
- 3 Для стран Европы
- 4 ОСТОРОЖНО
- 5 ИНСТРУКЦИИ ПО ИСПОЛЬЗОВАНИЮ ПОСУДОМОЕЧНОЙ МАШИНЫ
- 6 ИНСТРУКЦИИ ДЛЯ ЗАЩИТЫ ДЕТЕЙ
- 7 ИНСТРУКЦИИ ПО УСТАНОВКЕ ПОСУДОМОЕЧНОЙ МАШИНЫ
- 9 ИНФОРМАЦИЯ О МАРКИРОВКЕ WEEE
- 10 Содержание
- 11 Детали и функции; ФУНКЦИИ ПОСУДОМОЕЧНОЙ МАШИНЫ
- 14 ПАНЕЛЬ УПРАВЛЕНИЯ
- 17 ДИСПЛЕИ
- 19 Использование моющего средства и; РЕЖИМ УМЯгЧИТЕЛЯ ВОДЫ (НАСТРОЙКА УРОВНЯ ЖЕСТКОСТИ ВОДЫ)
- 20 ЗАгРУЗКА СОЛИ В УМЯгЧИТЕЛЬ
- 21 ИСПОЛЬЗОВАНИЕ МОЮЩЕгО СРЕДСТВА; Наполнение дозатора моющего средства
- 22 ИСПОЛЬЗОВАНИЕ ОПОЛАСКИВАТЕЛЯ; Наполнение резервуара для ополаскивателя
- 23 ИСПОЛЬЗОВАНИЕ ФУНКЦИИ ТАБЛЕТКА
- 24 Загрузка посуды в посудомоечную; приборов могут отличаться в зависимости от модели.; ЗАгРУЗКА ВЕРХНЕЙ КОРЗИНЫ
- 25 Регулировка верхней корзины
- 26 ЗАгРУЗКА НИЖНЕЙ КОРЗИНЫ; СКЛАДЫВАНИЕ ШТЫРЕЙ НИЖНЕЙ КОРЗИНЫ
- 29 ПРИгОДНОСТЬ ПОСУДЫ ДЛЯ МЫТЬЯ В ПОСУДОМОЕЧНОЙ МАШИНЕ; Загрузка столовых приборов и тарелок
- 30 Циклы мытья; ВКЛЮЧЕНИЕ УСТРОЙСТВА; ИЗМЕНЕНИЕ ЦИКЛА; Добавление посуды
- 31 ЗАВЕРШЕНИЕ ЦИКЛА МЫТЬЯ
- 33 Чистка и уход; ОЧИСТКА ФИЛЬТРОВ; Система фильтров; Блок фильтров
- 34 ЧИСТКА КРОНШТЕЙНОВ ФОРСУНОК; ОЧИСТКА ДВЕРЦЫ; УХОД ЗА ПОСУДОМОЕЧНОЙ МАШИНОЙ
- 35 ОБСЛУЖИВАНИЕ ПОСУДОМОЕЧНОЙ МАШИНЫ
- 36 Монтаж посудомоечной машины; Сведения об электрических подключениях; Инструкции по заземлению; ПОДАЧА И СЛИВ ВОДЫ; Подключение холодной воды
- 37 Подключение горячей воды; Слив излишков воды из шлангов; Слив воды
- 38 ПОДСОЕДИНЕНИЕ СЛИВНЫХ ШЛАНгОВ; РАЗМЕЩЕНИЕ УСТРОЙСТВА; Выравнивание устройства; ЗАПУСК ПОСУДОМОЕЧНОЙ МАШИНЫ
- 39 Установка посудомоечной машины; ВСТРАИВАЕМАЯ ПОД СТОЛЕШНИЦУ, ЧАСТИЧНО ВСТРАИВАЕМАЯ, ПОЛНОСТЬЮ; ВЫБОР ОПТИМАЛЬНОгО МЕСТА ДЛЯ УСТАНОВКИ ПОСУДОМОЕЧНОЙ МАШИНЫ
- 40 ПРОВЕРКА НА СООТВЕТСТВИЕ ТРЕБОВАНИЯМ К СИСТЕМЕ ПОДАЧИ; ПОДгОТОВКА ДЕКОРАТИВНОЙ ПАНЕЛИ
- 42 РЕгУЛИРОВКА НАТЯЖЕНИЯ ПРУЖИНЫ ДВЕРЦЫ
- 43 УСТАНОВКА ПОСУДОМОЕЧНОЙ МАШИНЫ
- 44 ВЫРАВНИВАНИЕ ПОСУДОМОЕЧНОЙ МАШИНЫ
- 45 Поиск и устранение неисправностей; ПЕРЕД ОБРАЩЕНИЕМ В СЛУЖБУ ТЕХНИЧЕСКОЙ ПОДДЕРЖКИ
- 48 ИНФОРМАЦИОННЫЕ КОДЫ
- 49 Приложение; ТЕХНИЧЕСКИЕ ХАРАКТЕРИСТИКИ
- 50 РАЗМЕРЫ УСТРОЙСТВА
- 51 Стандартное тестирование
- 53 Технические данные изделия
- 55 Важные термины
- 56 ВОПРОСЫ ИЛИ КОММЕНТАРИИ?












