Посудомоечные машины Samsung DW60M5050BB - инструкция пользователя по применению, эксплуатации и установке на русском языке. Мы надеемся, она поможет вам решить возникшие у вас вопросы при эксплуатации техники.
Если остались вопросы, задайте их в комментариях после инструкции.
"Загружаем инструкцию", означает, что нужно подождать пока файл загрузится и можно будет его читать онлайн. Некоторые инструкции очень большие и время их появления зависит от вашей скорости интернета.

Встановлення посудомийної машини
_37
07 ВС
ТАНОВ
ЛЕННЯ ПОСУ
ДОМИЙНОЇ МАШИНИ
КРОК 2
ПЕРЕВІРКА ПОДАЧІ ВОДИ ТА ЕЛЕКТРОТЕХНІЧНИХ ВИМОГ
•
Тиск у лінії подачі води має становити 0,04-1,0 МПа.
•
У посудомийну машину має подаватися лише холодна вода. Температура води не має перевищувати 60 ˚C.
•
У посудомийну машину не має подаватися гаряча вода. Це призведе до виникнення несправності.
•
Номінальна напруга має становити 220-240 В~, 50 Гц.
•
Під час встановлення пристрою кабель живлення має бути від’єднаний від електромережі.
•
Використовуйте розетку з максимальною силою струму в 16 A. (Максимальна сила струму для цієї посудомийної
машини становить 11 A).
•
Під’єднуючи посудомийну машину до джерела живлення, перевірте наявність наведених нижче компонентів
електромережі.
-
Запобіжник або автоматичний переривач на 220-240 В / 50 Гц.
-
Окремий ланцюг електроживлення для посудомийної машини.
•
Після встановлення перевірте, чи кабель живлення не зігнутий і не пошкоджений.
•
Перш ніж під’єднувати до посудомийної машини подачу води, перевірте чи клапан подачі води закрито.
•
Лінія подачі води має бути загерметизована ущільнюючою стрічкою чи іншим герметиком для запобігання витоку води.
КРОК 3
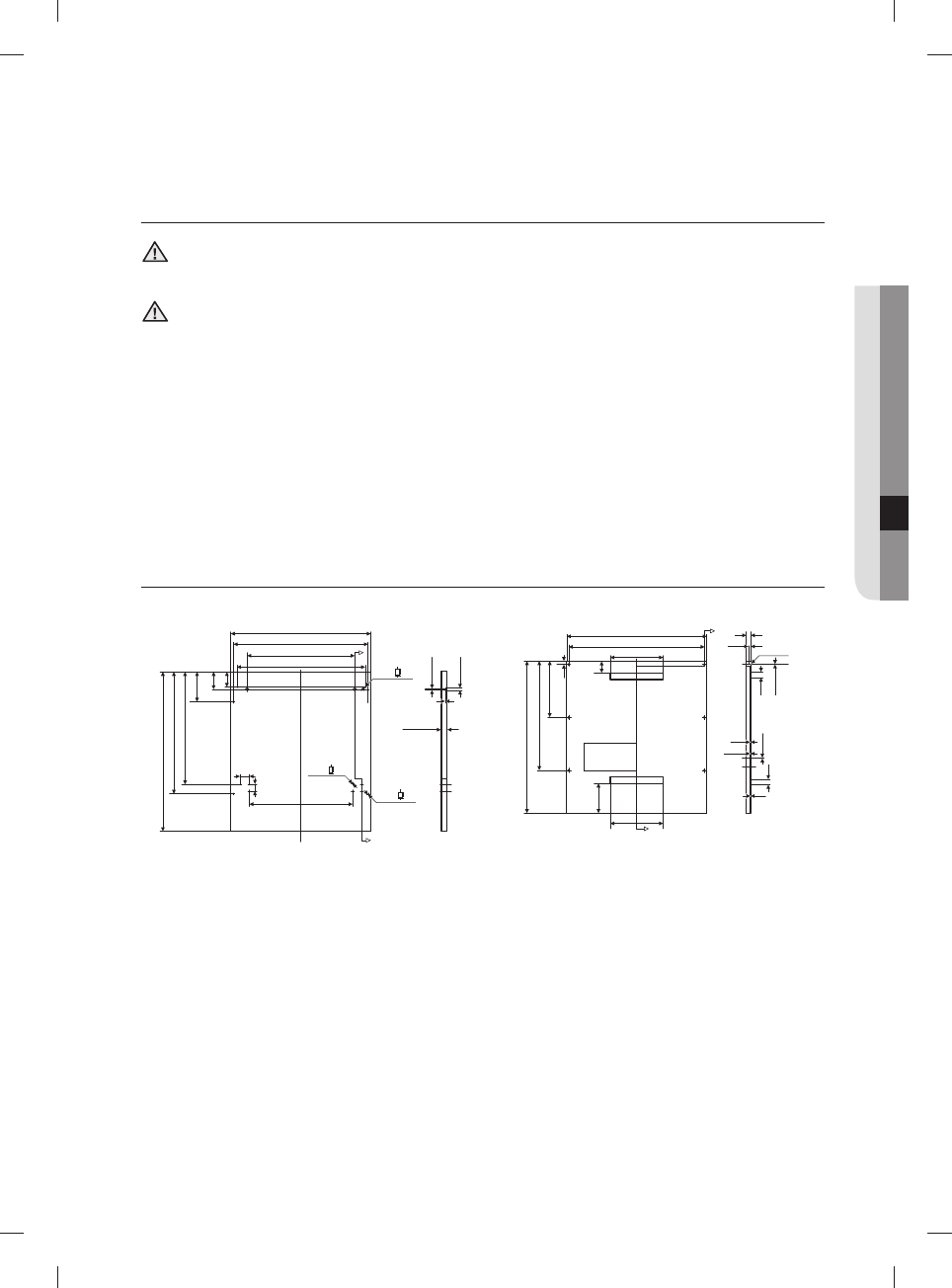
ПІДГОТОВКА НАДБУДОВНОЇ ПАНЕЛІ
(ДЛЯ ПОВНІСТЮ ВБУДОВАНИХ АБО НАПІВВБУДОВАНИХ
ПОСУДОМИЙНИХ МАШИН)
Надбудовна панель має відповідати розмірам, наведеним на малюнку.
A
A
A
A-A
589
38
436
30
720 (МАК
С.)
20 (МАКС.)
2-Ø 5,5
2-Ø 2( 8)
4-Ø 2( 8)
8-Ø 2( 8)
2-Ø 11
517
474,8
127
566±0,2
451±0,2
540±0,2
75±0,2
62
ف
18
6-8
8-9,5
1,5
6-C1,5
1,5
566
589
36
220
115,5
20
220
570 (МАК
С.)
397
202
7
6-Ø 1
8-Ø 2
20
Повністю вбудована
Напіввбудована
УВАГА
ПОПЕРЕДЖЕННЯ
DW5500MM_DD81-02615G-02_UK.indd 37
DW5500MM_DD81-02615G-02_UK.indd 37
2019-08-30 6:19:38
2019-08-30 6:19:38
Содержание
- 2 Инструкции по технике безопасности; ВАЖНЫЕ СВЕДЕНИЯ ПО ТЕХНИКЕ БЕЗОПАСНОСТИ; Важные предупредительные знаки
- 3 Для стран Европы
- 4 ОСТОРОЖНО
- 5 ИНСТРУКЦИИ ПО ИСПОЛЬЗОВАНИЮ ПОСУДОМОЕЧНОЙ МАШИНЫ
- 6 ИНСТРУКЦИИ ДЛЯ ЗАЩИТЫ ДЕТЕЙ
- 8 ИНФОРМАЦИЯ О МАРКИРОВКЕ WEEE
- 9 Содержание
- 10 Детали и функции; ФУНКЦИИ ПОСУДОМОЕЧНОЙ МАШИНЫ
- 12 ПАНЕЛЬ УПРАВЛЕНИЯ
- 14 ДИСПЛЕИ
- 16 РЕЖИМ УМЯГЧИТЕЛЯ ВОДЫ (НАСТРОЙКА УРОВНЯ ЖЕСТКОСТИ ВОДЫ)
- 17 ЗАГРУЗКА СОЛИ В УМЯГЧИТЕЛЬ
- 18 ИСПОЛЬЗОВАНИЕ МОЮЩЕГО СРЕДСТВА; Наполнение дозатора моющего средства
- 19 ИСПОЛЬЗОВАНИЕ ОПОЛАСКИВАТЕЛЯ; Наполнение резервуара для ополаскивателя; РЕГУЛИРОВКА КОЛИЧЕСТВА ОПОЛАСКИВАТЕЛЯ
- 20 ИСПОЛЬЗОВАНИЕ ФУНКЦИИ ТАБЛЕТКИ
- 21 ЗАГРУЗКА ВЕРХНЕЙ КОРЗИНЫ
- 22 Регулировка верхней корзины
- 23 ЗАГРУЗКА НИЖНЕЙ КОРЗИНЫ; СКЛАДЫВАНИЕ ШТЫРЕЙ НИЖНЕЙ КОРЗИНЫ
- 26 ПРИГОДНОСТЬ ПОСУДЫ ДЛЯ МЫТЬЯ В ПОСУДОМОЕЧНОЙ МАШИНЕ; Загрузка столовых приборов и тарелок; Повреждение стеклянной посуды и блюд.
- 27 Циклы мытья; ВКЛЮЧЕНИЕ УСТРОЙСТВА; ИЗМЕНЕНИЕ ЦИКЛА; Добавление посуды
- 28 ЗАВЕРШЕНИЕ ЦИКЛА МЫТЬЯ; ТАБЛИЦА ЦИКЛОВ МЫТЬЯ
- 30 Чистка и уход; ОЧИСТКА ФИЛЬТРОВ; Система фильтров; Блок фильтров
- 31 ЧИСТКА КРОНШТЕЙНОВ ФОРСУНОК; ОЧИСТКА ДВЕРЦЫ; УХОД ЗА ПОСУДОМОЕЧНОЙ МАШИНОЙ
- 32 ОБСЛУЖИВАНИЕ ПОСУДОМОЕЧНОЙ МАШИНЫ
- 33 Монтаж посудомоечной машины; Сведения об электрических подключениях; Инструкции по заземлению; ПОДАЧА И СЛИВ ВОДЫ; Подключение холодной воды
- 34 Подключение горячей воды; Слив излишков воды из шлангов; Удлинительный шланг
- 35 ПОДСОЕДИНЕНИЕ СЛИВНЫХ ШЛАНГОВ; РАЗМЕЩЕНИЕ УСТРОЙСТВА; Выравнивание устройства; ЗАПУСК ПОСУДОМОЕЧНОЙ МАШИНЫ
- 36 Установка посудомоечной машины; ВЫБОР ОПТИМАЛЬНОГО МЕСТА ДЛЯ УСТАНОВКИ ПОСУДОМОЕЧНОЙ
- 38 Полностью встраиваемая
- 40 УСТАНОВКА ПОСУДОМОЕЧНОЙ МАШИНЫ
- 41 ВЫРАВНИВАНИЕ ПОСУДОМОЕЧНОЙ МАШИНЫ
- 42 Поиск и устранение неисправностей; ПЕРЕД ОБРАЩЕНИЕМ В СЛУЖБУ ТЕХНИЧЕСКОЙ ПОДДЕРЖКИ
- 44 ИНФОРМАЦИОННЫЕ КОДЫ
- 45 Приложение; ТЕХНИЧЕСКИЕ ХАРАКТЕРИСТИКИ
- 46 Стандартное тестирование
- 48 Технические данные изделия
- 49 Важные термины
- 52 ВОПРОСЫ ИЛИ КОММЕНТАРИИ?
Характеристики
Остались вопросы?Не нашли свой ответ в руководстве или возникли другие проблемы? Задайте свой вопрос в форме ниже с подробным описанием вашей ситуации, чтобы другие люди и специалисты смогли дать на него ответ. Если вы знаете как решить проблему другого человека, пожалуйста, подскажите ему :)












