Посудомоечные машины PYRAMIDA DP 09 N - инструкция пользователя по применению, эксплуатации и установке на русском языке. Мы надеемся, она поможет вам решить возникшие у вас вопросы при эксплуатации техники.
Если остались вопросы, задайте их в комментариях после инструкции.
"Загружаем инструкцию", означает, что нужно подождать пока файл загрузится и можно будет его читать онлайн. Некоторые инструкции очень большие и время их появления зависит от вашей скорости интернета.

31
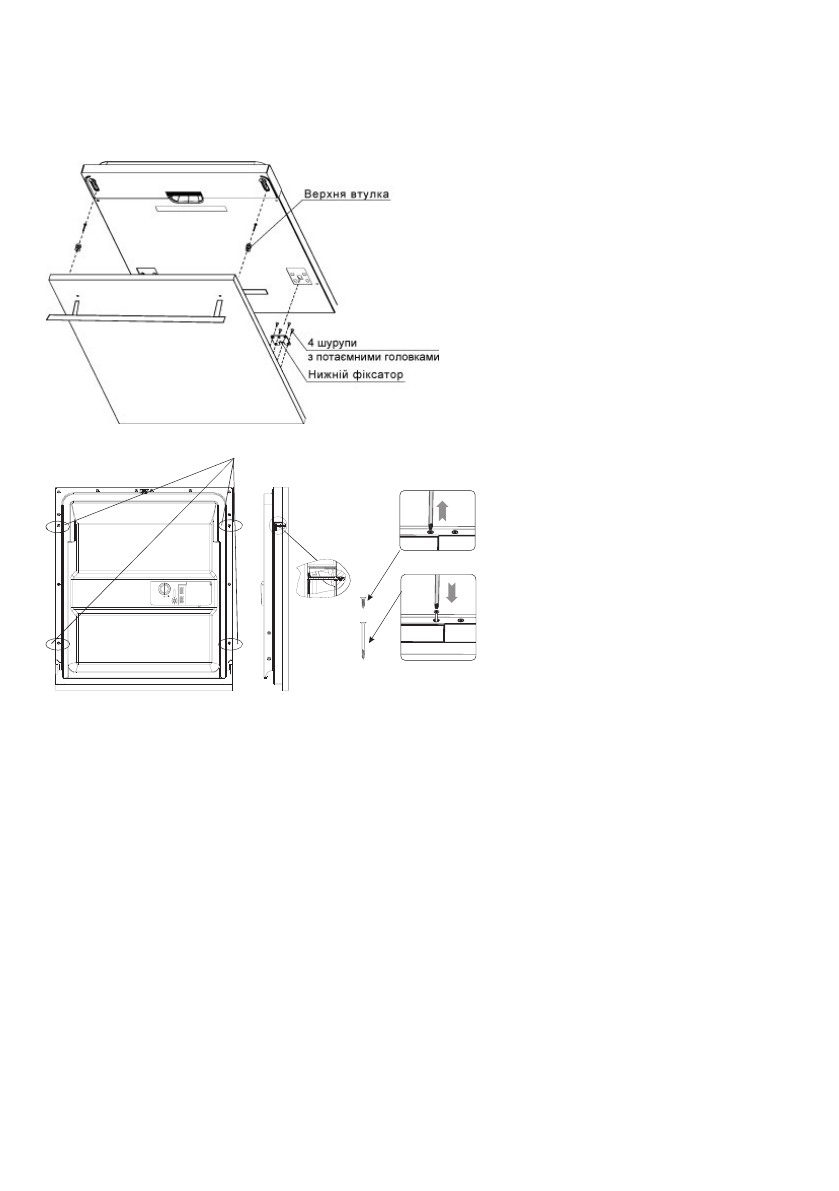
2. Встановіть втулки на фронтальну меблеву панель та помістіть їх у зовнішні отво-
ри дверей машини. (див. схему 4а).
Після цього опустіть їх вниз до встановлення панелі на нижні фіксатори, які пови-
нні бути закріплені на зовнішніх дверях за допомогою гвинтів.
Схема 4а.
• Вийміть пластикові заглушки, що розташовані по бокам дверцят посудомий-
ної машини на внутрішній стороні, та (або) викрутіть 4 короткі гвинти.
• Крізь отвори остаточно закріпіть фронтальну меблеву панель на дверцятах
посудомийної машини 4-ма довгими гвинтами.
• Вставте на місце пластикові заглушки, закривши ними місця кріплення. Схема
4б.
Регулювання натягу пружин навісних дверей.
Дверні пружини встановлені для належної напруги на зовнішні двері.
Якщо фронтальна меблева панель встановлена, треба відрегулювати натяг наві-
сних дверей посудомийної машини.
За допомогою викрутки повертайте правий та лівий регулюючі гвинти, щоб на-
тягнути або послабити пружини, справа та зліва (див. схему 5). Закрийте гвинти
заглушками.
Положення навісних дверей вважається правильним, якщо двері залишаються
відчиненими у повністю відкритому положенні і закриваються з легким зусиллям.
Схема 4б.
Викрутити 4 короткі гвинти
Характеристики
Остались вопросы?Не нашли свой ответ в руководстве или возникли другие проблемы? Задайте свой вопрос в форме ниже с подробным описанием вашей ситуации, чтобы другие люди и специалисты смогли дать на него ответ. Если вы знаете как решить проблему другого человека, пожалуйста, подскажите ему :)





