Посудомоечные машины Midea MID60S110 - инструкция пользователя по применению, эксплуатации и установке на русском языке. Мы надеемся, она поможет вам решить возникшие у вас вопросы при эксплуатации техники.
Если остались вопросы, задайте их в комментариях после инструкции.
"Загружаем инструкцию", означает, что нужно подождать пока файл загрузится и можно будет его читать онлайн. Некоторые инструкции очень большие и время их появления зависит от вашей скорости интернета.

Рисунок 2
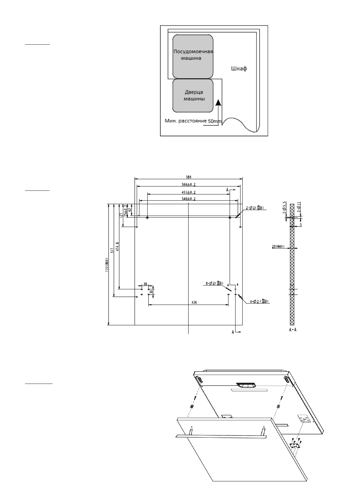
Минимальное расстояние от
открытой дверцы до шкафа
50 мм
Размеры и монтаж декоративной панели
1. Декоративную деревянную панель следует устанавливать, как показано на рисунке 3.
Рисунок 3
Декоративную панель
следует устанавливать в
соответствии с указанными
на рисунке размерами.
(Размеры указаны в мм)
2. Установите крепежи на декоративную деревянную панель и вставьте крепежи в соответствующие гнезда на
внешней дверце посудомоечной машины (см. рис. 4а). После установки панели закрепите ее на внешней дверце с
помощью винт (см. рис. 4б).
Рисунок 4а
Установка декоративной панели
26