Посудомоечные машины Midea MID45S300 - инструкция пользователя по применению, эксплуатации и установке на русском языке. Мы надеемся, она поможет вам решить возникшие у вас вопросы при эксплуатации техники.
Если остались вопросы, задайте их в комментариях после инструкции.
"Загружаем инструкцию", означает, что нужно подождать пока файл загрузится и можно будет его читать онлайн. Некоторые инструкции очень большие и время их появления зависит от вашей скорости интернета.

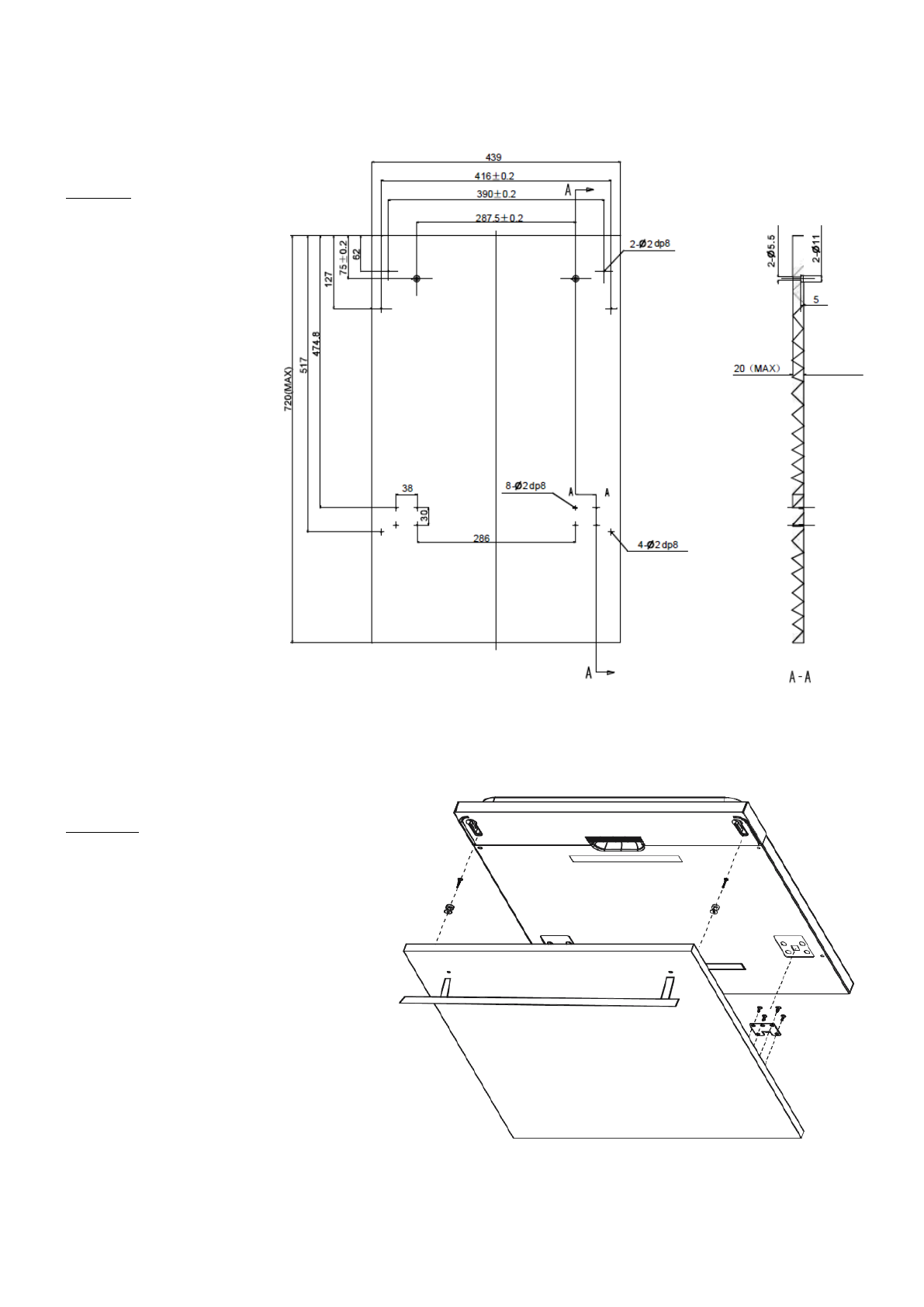
Размеры и монтаж декоративной панели
1. Декоративную деревянную панель следует устанавливать, как показано на рисунке 3.
Рисунок 3
Декоративную панель
следует устанавливать в
соответствии с указанными
на рисунке размерами.
(Размеры указаны в мм.)
2. Установите крепежи на декоративную деревянную панель и вставьте крепежи в соответствующие гнезда на
внешней дверце посудомоечной машины (см. рис. 4а). После установки панели закрепите ее на внешней дверце с
помощью винт (см. рис. 4б).
Рисунок 4а
Установка декоративной панели
Содержание
- 3 С О Д Е Р Ж А Н И Е
- 4 М Е Р Ы П Р Е Д О С Т О Р О Ж Н О С Т И; ПРАВИЛЬНОЕ ИСПОЛЬЗОВАНИЕ
- 6 К Р А Т К И Й С П Р А В О Ч Н И К П О Э К С П Л У А Т А Ц И И; Механический индикатор С:
- 7 Панель управления
- 8 П Е Р Е Д П Е Р В Ы М И С П О Л Ь З О В А Н И Е М; Смягчитель воды
- 9 Единицы измерения жесткости; жесткости водопроводной воды.; этот раздел можно пропустить.
- 10 Наполнение резервуара смягчителя воды солью
- 11 Наполнение резервуара для ополаскивателя; Резервуар для ополаскивателя
- 13 Функция моющего средства; Моющие средства
- 15 З А Г Р У З К А К О Р З И Н П О С У Д О М О Е Ч Н О Й М А Ш И Н Ы
- 18 З А П У С К П Р О Г Р А М М Ы М О Й К И; Таблица циклов мойки
- 20 Разгрузка посудомоечной машины
- 21 О Б С Л У Ж И В А Н И Е И Ч И С Т К А; Система фильтров; Остатки пищи могут; Фильтрующий элемент; Никогда не включайте посудомоечную машину без фильтра.
- 24 И Н С Т Р У К Ц И Я П О У С Т А Н О В К Е; Подготовка к установке; Рисунок 1
- 25 Размеры и монтаж декоративной панели; Рисунок 3
- 26 Рисунок 4б; Регулировка натяжения пружины дверцы; Рисунок 5
- 27 Подключение сливного шланга; Рисунок 6; Последовательность установки посудомоечной машины; Подключите провод электропитания.
- 29 Подключение к сети электропитания; Для обеспечения личной безопасности:; Требования к подключению электропитания; Прибор; Подключение безопасного шланга подачи воды
- 31 Впускной клапан открыт.
- 32 Р Е К О М Е Н Д А Ц И И П О П О И С К У Н Е И С П Р А В Н О С Т Е Й; Проблема
- 36 Корзина для посуды имеет 2 положения:; Позиция 1: поднимите левую часть корзины для верхнего положения.
- 38 Перечень технических данных