Посудомоечные машины Midea M60BD-1205L2 - инструкция пользователя по применению, эксплуатации и установке на русском языке. Мы надеемся, она поможет вам решить возникшие у вас вопросы при эксплуатации техники.
Если остались вопросы, задайте их в комментариях после инструкции.
"Загружаем инструкцию", означает, что нужно подождать пока файл загрузится и можно будет его читать онлайн. Некоторые инструкции очень большие и время их появления зависит от вашей скорости интернета.

19
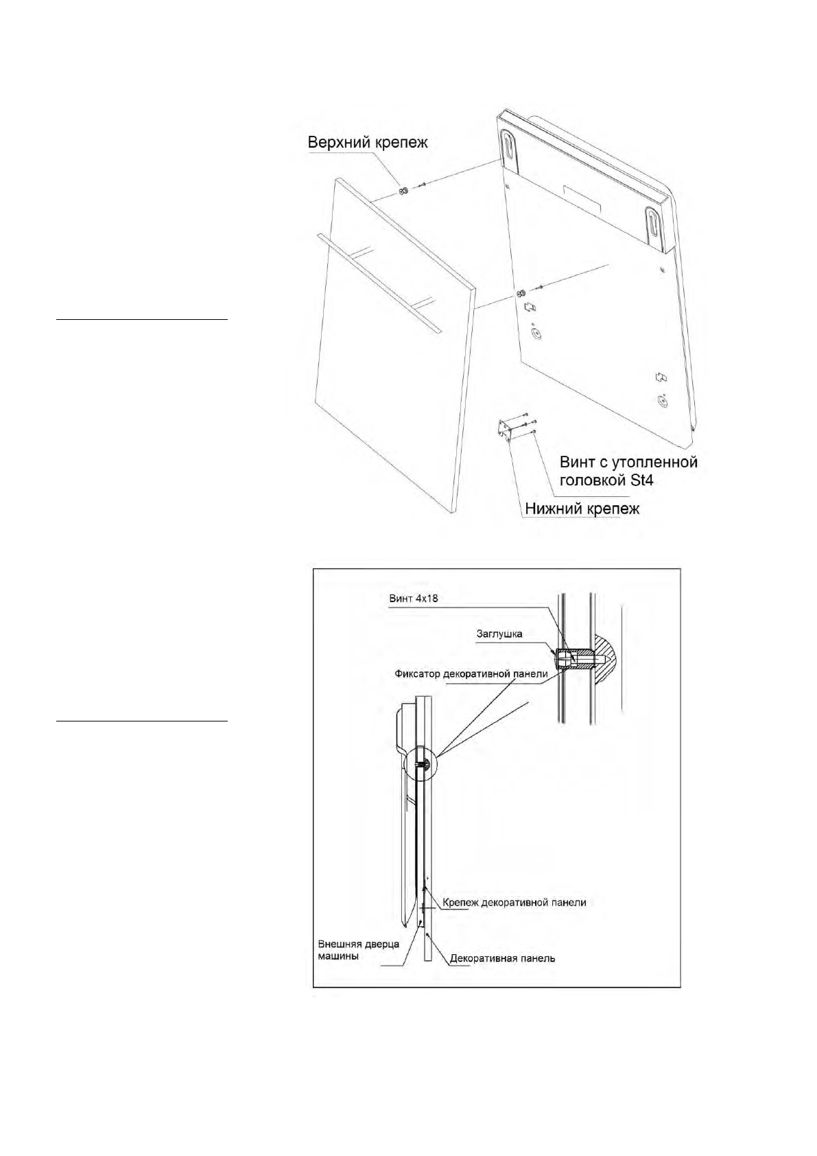
2 Установите крепежи на декоративную деревянную панель и вставьте крепежи в соответствующие гнезда на внешней
дверце
посудомоечной машины (см. рис. 4а). После установки панели закрепите ее на внешней
дверце
с помощью винт
(см. рис. 4б).
[Рисунок 4а]
Установка декоративной
панели
[Рисунок 4б]
Установка декоративной
деревянной панели
1.
Снимите заглушку
2.
Вставьте винт
3.
Установите заглушку на
место
и закрутите