Посудомоечные машины MBS DW-604 - инструкция пользователя по применению, эксплуатации и установке на русском языке. Мы надеемся, она поможет вам решить возникшие у вас вопросы при эксплуатации техники.
Если остались вопросы, задайте их в комментариях после инструкции.
"Загружаем инструкцию", означает, что нужно подождать пока файл загрузится и можно будет его читать онлайн. Некоторые инструкции очень большие и время их появления зависит от вашей скорости интернета.

25
RU
>Ɋɢɫɭɧɨɤ@
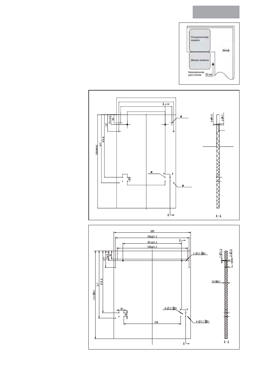
Ɇɢɧɢɦɚɥɶɧɨɟɪɚɫɫɬɨɹɧɢɟɨɬɨɬɤɪɵɬɨɣɞɜɟɪɰɵɞɨɲɤɚɮɚ
ɋɛɢɧɠɫɶɣɧɩɨɭɛɡɟɠɥɩɫɛɭɣɝɨɩɤɪɛɨɠɦɣ
Ⱦɟɤɨɪɚɬɢɜɧɭɸ ɞɟɪɟɜɹɧɧɭɸ ɩɚɧɟɥɶ ɫɥɟɞɭɟɬ ɭɫɬɚɧɚɜɥɢɜɚɬɶ
ɤɚɤɩɨɤɚɡɚɧɨɧɚɪɢɫɭɧɤɟ
>Ɋɢɫɭɧɨɤ@
Ⱦɟɤɨɪɚɬɢɜɧɭɸɩɚɧɟɥɶ
ɫɥɟɞɭɟɬɭɫɬɚɧɚɜɥɢɜɚɬɶ
ɜɫɨɨɬɜɟɬɫɬɜɢɢ
ɫɭɤɚɡɚɧɧɵɦɢɧɚɪɢɫɭɧɤɟ
ɪɚɡɦɟɪɚɦɢ
Ɋɚɡɦɟɪɵɭɤɚɡɚɧɵɜɦɦ
ɍɫɬɚɧɨɜɢɬɟ ɤɪɟɩɟɠɢ
ɧɚ
ɞɟɤɨɪɚɬɢɜɧɭɸ
ɞɟɪɟɜɹɧɧɭɸ
ɩɚɧɟɥɶ
ɢ
ɜɫɬɚɜɶɬɟ
ɤɪɟɩɟɠɢ
ɜ
ɫɨɨɬɜɟɬɫɬɜɭɸɳɢɟ
ɝɧɟɡɞɚ
ɧɚ
ɜɧɟɲɧɟɣ
ɞɜɟɪɰɟ
ɩɨɫɭɞɨɦɨɟɱɧɨɣ
ɦɚɲɢɧɵ ɫɦ ɪɢɫ ɚ
ɉɨɫɥɟ ɭɫɬɚɧɨɜɤɢ ɩɚɧɟɥɢ
ɡɚɤɪɟɩɢɬɟ ɟɟ ɧɚ ɜɧɟɲɧɟɣ
ɞɜɟɪɰɟɫɩɨɦɨɳɶɸɜɢɧɬɨɜ
ɫɦɪɢɫɛ
dp8
439
416
0.2
±
390
0.2
±
287.5
0.2
±
286
3 8
8 - 2
dp8
4 - 2
dp8
2- 2
20
MAX
(
)
5
D W- 4 5 1
D W- 4 5 5
D W- 6 0 1
D W- 6 0 4
Характеристики
Остались вопросы?Не нашли свой ответ в руководстве или возникли другие проблемы? Задайте свой вопрос в форме ниже с подробным описанием вашей ситуации, чтобы другие люди и специалисты смогли дать на него ответ. Если вы знаете как решить проблему другого человека, пожалуйста, подскажите ему :)