Посудомоечные машины MAUNFELD МLP-08S - инструкция пользователя по применению, эксплуатации и установке на русском языке. Мы надеемся, она поможет вам решить возникшие у вас вопросы при эксплуатации техники.
Если остались вопросы, задайте их в комментариях после инструкции.
"Загружаем инструкцию", означает, что нужно подождать пока файл загрузится и можно будет его читать онлайн. Некоторые инструкции очень большие и время их появления зависит от вашей скорости интернета.

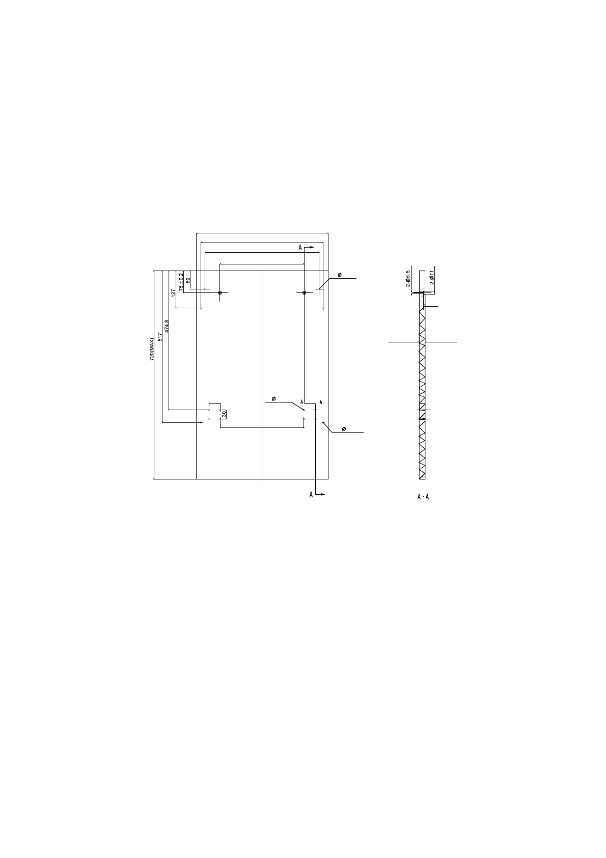
Внешняя панель должна быть установлена в соответствии с
указанными на рисунке 3.
Установите крюк на внешней панели и вставьте его в отверстие
посудомоечной машины (рис 4а). Установив панель, закрепите ее
машины при помощи гаек и болтов (рис. 4b).
dp8
439
416
0.2
±
390
0.2
±
287.5
0.2
±
286
38
8 - 2
dp8
4 - 2
dp8
2 - 2
20
MAX
(
)
5
24
Содержание
- 2 . М Е Р Ы Б Е З О П А С Н О С Т И
- 9 КОГДА СЛЕДУЕТ НАПОЛНИТЬ ДИСПЕНСЕР ДЛЯ ОПОЛАСКИВАТЕЛЯ ЗАНОВО.; ДИСПЕНСЕР ОПОЛАСКИВАТЕЛЯ; Индикатор Ополаскивателя
- 11 ВИ ДЫ МОЮ ЩИ Х С РЕДСТ В
- 12 . З А Г Р У З К А П О С У Д О М О Е Ч Н О Й М А Ш И Н Ы .
- 13 Верхнюю решетку можно регулировать по высоте. Для; РЕГ У Л ИРОВК А В ЕРХН ЕЙ К ОРЗИН Ы; размещения колёсиков на различной высоте рельс.
- 14 ЗАГРУЗКА НИЖНЕЙ КОРЗИНЫ; На нижней решетке имеется много; СКЛАДЫВАЮЩИЕСЯ СКОБЫ; складывающиеся скобы.
- 16 Прежде чем разгружать посудомоечную машину, подождите
- 17 ЗАПУСК ПРОГРАММЫ МОЙКИ; E C O
- 19 ИЗВЛЕЧЕНИЕ ПОСУДЫ ИЗ ПОСУДОМОЕЧНОЙ МАШИНЫ; СИСТЕМА ФИЛЬТРОВ; ВНИМАНИЕ: НЕ ПЕРЕВОРАЧИВАЙТЕ ТОНКИЙ ФИЛЬТР СНИЗУ ВВЕРХ.; СБОРКА ФИЛЬТРОВ
- 20 НИ В КОЕМ СЛУЧАЕ НЕ ПОЛЬЗУЙТЕСЬ ПОСУДОМОЕЧНОЙ МАШИНОЙ БЕЗ; ЧИСТКА РАЗБРЫЗГИВАЮЩИХ КОРОМЫСЕЛ; Установите коромысла на место после тщательного полоскания.; УХОД ЗА МАШИНОЙ; ПРЕДУПРЕЖДЕНИЕ
- 23 РИСУНОК 2; РАЗМЕРЫ И УСТАНОВКА ВНЕШНЕЙ ПАНЕЛИ; Установите внешнюю панель, как это показано на рисунке 3
- 26 НАСТРОЙКА УПРУГОСТИ ПРУЖИНЫ ДВЕРЦЫ ПОСУДОМОЕЧНОЙ МАШИНЫ; РИСУНОК 5; ПОДСОЕДИНЕНИЕ; РИСУНОК 6; УСТАНОВКА ПОСУДОМОЕЧНОЙ МАШИНЫ
- 27 старайтесь не опрокинуть ее.; МАКСИМАЛЬНАЯ РЕГУЛИРУЕМАЯ ВЫСОТА НОЖЕК 60 ММ.; Для нормальной работы машина должна быть расположена ровно.
- 31 В с л уч а е пе ре л ива вод ы, т ут ж е о тк л юч и те шл а нг под а ч и вод ы
- 32 ТЕХНИЧ ЕСК ИЕ Д АНН ЫЕ; МОДЕЛЬ; З А Г Р У З К А П О С У Д О М О Е Ч Н О Й М А Ш И Н Ы В С О О Т В Е Т С Т В И И С Н О Р М А М И E N 5 0 2 4 2 :
- 35 Водное давление; О К Р У Ж А Ю Щ А Я С Р Е Д А; Продукция изготавливается в соответствии с
Характеристики
Остались вопросы?Не нашли свой ответ в руководстве или возникли другие проблемы? Задайте свой вопрос в форме ниже с подробным описанием вашей ситуации, чтобы другие люди и специалисты смогли дать на него ответ. Если вы знаете как решить проблему другого человека, пожалуйста, подскажите ему :)