Посудомоечные машины Maunfeld MLP-08I - инструкция пользователя по применению, эксплуатации и установке на русском языке. Мы надеемся, она поможет вам решить возникшие у вас вопросы при эксплуатации техники.
Если остались вопросы, задайте их в комментариях после инструкции.
"Загружаем инструкцию", означает, что нужно подождать пока файл загрузится и можно будет его читать онлайн. Некоторые инструкции очень большие и время их появления зависит от вашей скорости интернета.

ПОДГОТОВКА К УСТАНОВКЕ
www.maunfeld.ru
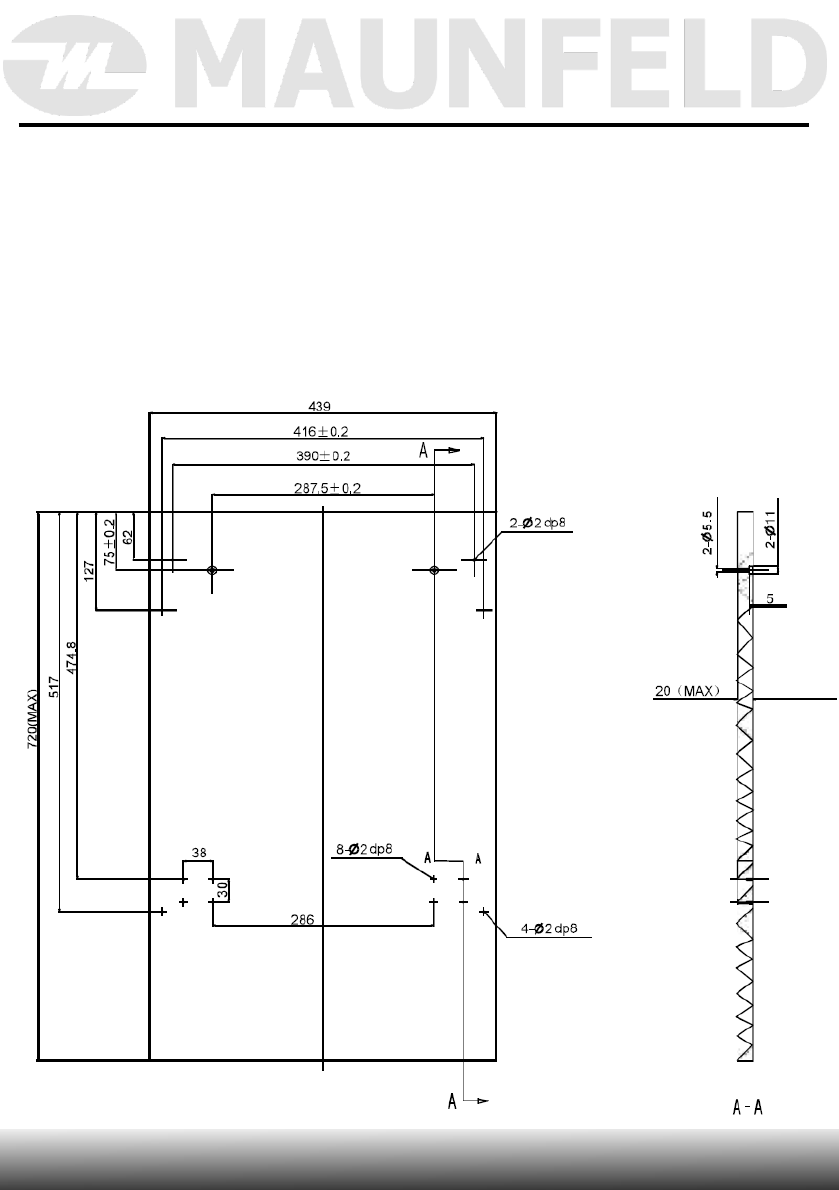
1. Для установки фасада воспользуйтесь монтажным трафаретом, который
идет в комплекте.
Размеры переднего фасада на Рисунке 3.
Декоративный фасад должен соответствовать размерам, указанным на
рисунке. (ед. измерения: мм)
РИСУНОК 3
РАЗМЕРЫ И УСТАНОВКА ВНЕШНЕЙ ПАНЕЛИ
(КУХОННОГО ФАСАДА)
-13-