Посудомоечные машины Krona Delia 45 BI - инструкция пользователя по применению, эксплуатации и установке на русском языке. Мы надеемся, она поможет вам решить возникшие у вас вопросы при эксплуатации техники.
Если остались вопросы, задайте их в комментариях после инструкции.
"Загружаем инструкцию", означает, что нужно подождать пока файл загрузится и можно будет его читать онлайн. Некоторые инструкции очень большие и время их появления зависит от вашей скорости интернета.

Инструкция по установке и эксплуатации
ПОСУДОМОЕЧНЫЕ МАШИНЫ
18
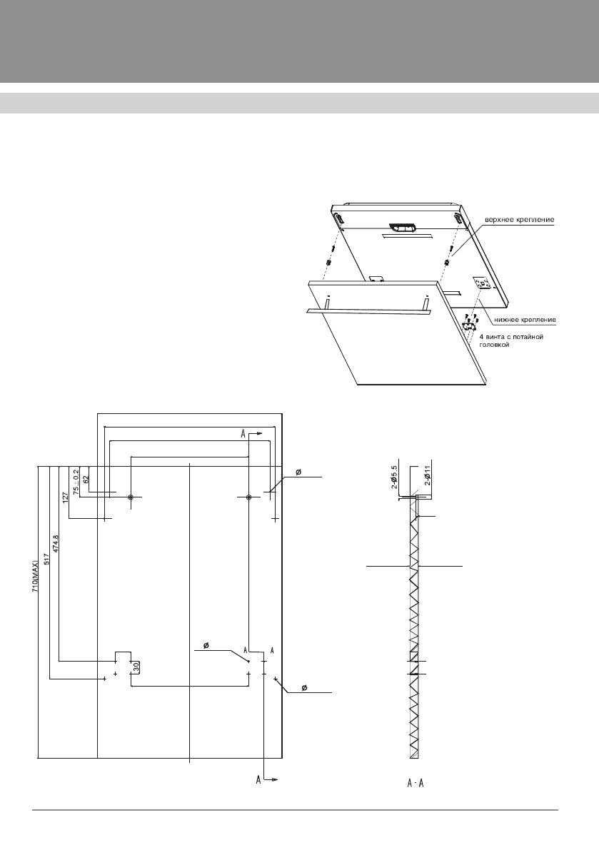
РАЗМЕРЫ И УСТАНОВКА
ДЕКОРАТИВНОЙ ПАНЕЛИ
Подготовка к установке
1. Декоративная деревянная панель,
прикрепляемая к дверце посудомоеч-
ной машины, должна быть подготовлена
в соответствии с чертежами, представ-
ленным на рис. 3a, 3b.
2. Установите крепления на декора-
тивную деревянную панель и с их по-
мощью прикрепите ее к дверце машины
(рис. 4а).
После размещения декоративной па-
нели укрепите ее на дверце машины при
помощи винтов (рис. 4b).
Рис. 4а. Установка декоративной
панели.
dp8
439
416 0.2
f
390 0.2
f
287.5 0.2
f
286
3 8
8 - 2
dp8
4 - 2
dp8
2 - 2
20 MAX
(
)
5
Рис. 3а. DELIA 45 BI












