Посудомоечные машины Krona BDE 6007 EU - инструкция пользователя по применению, эксплуатации и установке на русском языке. Мы надеемся, она поможет вам решить возникшие у вас вопросы при эксплуатации техники.
Если остались вопросы, задайте их в комментариях после инструкции.
"Загружаем инструкцию", означает, что нужно подождать пока файл загрузится и можно будет его читать онлайн. Некоторые инструкции очень большие и время их появления зависит от вашей скорости интернета.

Инструкция по установке и эксплуатации
ПОСУДОМОЕЧНЫЕ МАШИНЫ
18
Инструкция по установке и эксплуатации
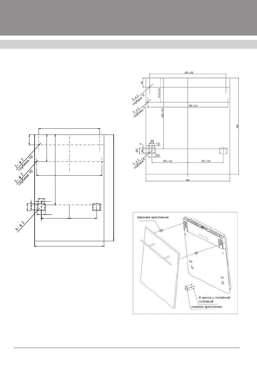
РАЗМЕРЫ И УСТАНОВКА
ДЕКОРАТИВНОЙ ПАНЕЛИ
Подготовка к установке
1. Декоративная деревянная панель,
прикрепляемая к дверце посудомоеч-
ной машины, должна быть подготовлена
в соответствии с чертежом, представ-
ленным на рис. 3.
680
15
444
390
65
172.
5
179
175
418
449
19
38
7
30
44
52
1.5
Рис. 3. Для модели BDE 4507.
Все размеры приведены в мм.
2. Установите крепления на декора-
тивную деревянную панель и с их по-
мощью прикрепите ее к дверце машины
(рис. 4а).
После размещения декоративной па-
нели укрепите ее на дверце машины при
помощи винтов (рис. 4b).
Рис. 3. Для модели BDE 4507.
Все размеры приведены в мм.
Рис. 4а. Установка декоративной
панели.
Содержание
- 2 ПОСУДОМОЕЧНЫЕ МАШИНЫ; Инструкция по установке и эксплуатации; Уважаемый потребитель!; ностью соответствует всем стандартам ЕЭС.; Желаем Вам приятного аппетита!
- 4 ВОДОРОД ВЗРЫВООПАСЕН!; СОВЕТЫ И УКАЗАНИЯ ПО БЕЗОПАСНОСТИ
- 5 Во время загрузки посуды:
- 6 ПАНЕЛЬ УПРАВЛЕНИЯ; включения/выключения; ТЕХНИЧЕСКИЕ ХАРАКТЕРИСТИКИ; сти дверцы посудомоечной машины и видна после открытия дверцы.; Модель; Класс энергоэффективности
- 7 УСТРОЙСТВО ПОСУДОМОЕЧНОЙ
- 8 Посудомоечная машина в про-
- 9 Таблица режимов работы*; Коды ошибки
- 10 СМЯГЧИТЕЛЬ ВОДЫ
- 13 ЗАГРУЗКА ПОСУДЫ
- 14 Как использовать нижнюю решетку
- 15 Нажмите кнопку выбора программ
- 16 ФИЛЬТРУЮЩАЯ СИСТЕМА
- 17 Чистка фильтров; Для достижения наилучшего результа-
- 18 Для чистки края дверцы, Вы должны
- 19 ВНИМАТЕЛЬНО ПРОЧИТАЙТЕ; Место установки посудомоечной ма-; УСТАНОВКА; При размещении посудомоечной
- 20 РАЗМЕРЫ И УСТАНОВКА; Все размеры приведены в мм.
- 21 РЕГУЛИРОВКА НАТЯЖЕНИЯ; На заводе натяжение пружины внеш-; ПОДКЛЮЧЕНИЕ СЛИВНОГО ШЛАНГА; Вставьте отводящий шланг в слив,
- 22 ЭЛЕКТРИЧЕСКИЕ СОЕДИНЕНИЯ; Пожалуйста, посмотрите в табличку; УНИВЕРСАЛЬНЫЙ ПЕРЕХОДНИК ДЛЯ; пуском посудомоечной машины.; О безопасном впускном шланге; Безопасный впускной шланг имеет две
- 23 Соедините шланг подачи холодной
- 25 ИНСТРУКЦИЯ ПО УСТАНОВКЕ; — показаны винты, отвечающие за задние ножки.; СОВЕТЫ ПО УСТРАНЕНИЮ НЕПОЛАДОК; Проблема; Низкое давление воды
- 26 Шум
- 28 Таблица жесткости воды
- 29 УТИЛИЗАЦИЯ; Отслужившие электрические и элек-; ИНФОРМАЦИЯ О СЕРТИФИК АЦИИ; Регистрационный номер в Госреестре
- 30 ЧТО НЕЛЬЗЯ МЫТЬ В ПОСУДОМОЕЧНОЙ МАШИНЕ












