Посудомоечные машины Krona BDE 4507 LP - инструкция пользователя по применению, эксплуатации и установке на русском языке. Мы надеемся, она поможет вам решить возникшие у вас вопросы при эксплуатации техники.
Если остались вопросы, задайте их в комментариях после инструкции.
"Загружаем инструкцию", означает, что нужно подождать пока файл загрузится и можно будет его читать онлайн. Некоторые инструкции очень большие и время их появления зависит от вашей скорости интернета.

ИНСТРУКЦИИ ПО УСТАНОВКЕ
18
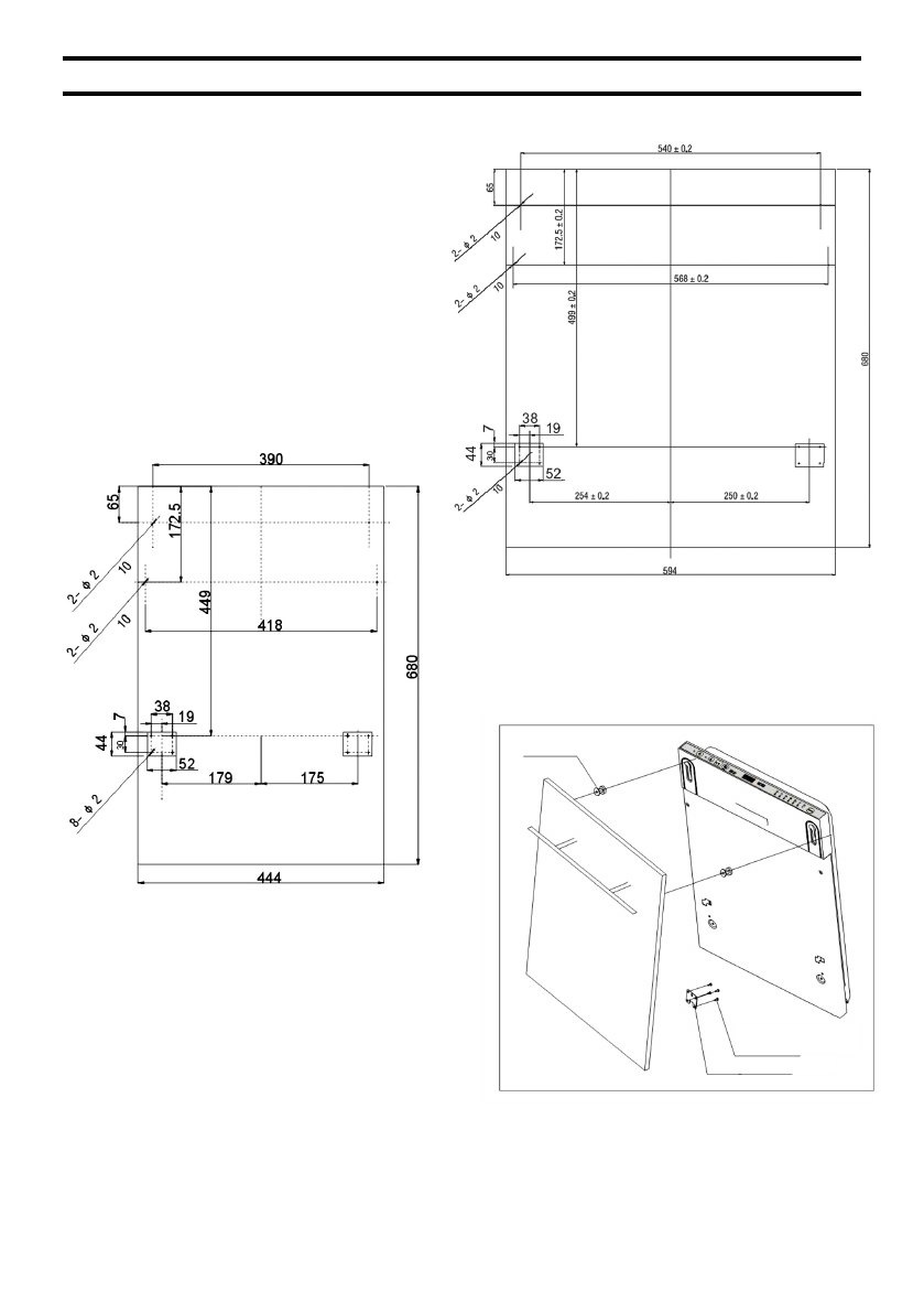
РАЗМЕРЫ И УСТАНОВКА
ДЕКОРАТИВНОЙ ПАНЕЛИ
Подготовка к установке
1. Декоративная деревянная
панель, прикрепляемая к дверце
посудомоечной машины, должна
быть подготовлена в соответствии
с чертежом, представленным на
рис. 3.
Рис. 3. Для модели BDE 4507.
Все размеры приведены в мм.
2. Установите крепления на
декоративную деревянную панель
и с их помощью прикрепите ее к
дверце машины (рис. 4а).
После размещения декора-
тивной панели укрепите ее на дверце
машины при помощи винтов (рис. 4b).
ãëóáèíà
ãëóáèíà
ãëóáèíà 10
ãëóáèíà
ãëóáèíà
ãëóáèíà
Рис. 3. Для модели BDE 6007.
Все размеры приведены в мм.
Рис. 4a. Установка декоратив-
ной панели.
âåðõíåå êðåïëåíèå
4 âèíòà ñ ïîòàéíîé
ãîëîâêîé
íèæíåå êðåïëåíèå
Содержание
- 3 СОДЕРЖАНИЕ
- 4 СОВЕТЫ И УКАЗАНИЯ ПО БЕЗОПАСНОСТИ
- 5 КОМПЛЕКТАЦИЯ
- 6 УПРАВЛЕНИЕ ПРИБОРОМ; ПАНЕЛЬ УПРАВЛЕНИЯ; Вид панели управления посудо-
- 11 ЕСЛИ ВОДА НЕ СЛИШКОМ
- 12 Удаление накипи
- 13 Когда заправлять дозатор; ниже, прикрепите контейнер для; Ïîëíûé
- 14 - Поместите таблетку 3 в 1 в; Ïîçèöèÿ 1
- 15 • Кастрюли, подносы и проч. всегда
- 16 ñâåòîâûå èíäèêàòîðû
- 18 Никогда не используйте; Шаг 3 - Выньте фильтр тонкой очистки
- 20 проверьте сопутствующие аксесуары
- 21 ИНСТРУКЦИИ ПО УСТАНОВКЕ; РАЗМЕРЫ И УСТАНОВКА; Все размеры приведены в мм.
- 23 ИНСТРУКЦИИ ПО УCТАНОВКЕ
- 24 ПРИМЕЧАНИЕ: Когда кончится












