Посудомоечные машины Korting KDI 60130 - инструкция пользователя по применению, эксплуатации и установке на русском языке. Мы надеемся, она поможет вам решить возникшие у вас вопросы при эксплуатации техники.
Если остались вопросы, задайте их в комментариях после инструкции.
"Загружаем инструкцию", означает, что нужно подождать пока файл загрузится и можно будет его читать онлайн. Некоторые инструкции очень большие и время их появления зависит от вашей скорости интернета.

28
как отсоедИНИть посУдоМоечНУЮ МашИНУ
1. отключите электрический провод от розетки.
2. отсоедините переходник от адаптера на кране.
ко гд а ко Н ч И тс я п о с л е д Н е е п о л о с к а Н И е, п е Р е Ход Н И к М ож Н о отсо е д И-
Н И т ь И У б Рат ь.
П од К Л Ю ч е н и е го р Я ч е й В од ы
для работы машины также можно использовать горячую водопроводную воду, но только в том
случае, если ее температура не превышает 6о’с. В этом случае цикл мойки сократится примерно на
15 минут, а эффективность мойки слегка снизится. подключение горячей воды следует выполнить
так же, как в случае с холодной водой.
рас П оЛ ож е н и е П р и б о ра
поставьте прибор в выбранное место. Вокруг стенок посудомоечной машины и позади нее должно
быть свободное пространство.
шланги подачи и слива воды могут находиться как справа, так и слева, что позволяет наиболее
удобно установить машину.
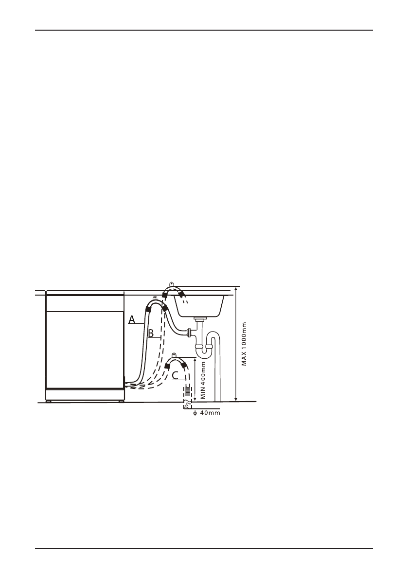
П од К Л Ю ч е н и е с Л и В н о го ш Л а н га
Вставьте отводящий шланг в канал дренажа диаметром не менее 4 cм или навесьте его на край
емкости для слива. Убедитесь в отсутствии изгибов или пережимов. Воспользуйтесь специальным
пластиковым креплением, которое прилагается к машине. свободный конец шланга должен на-
ходиться на высоте между 400 и 1000 мм и не должен погружаться в воду.
Ка К с Л и т Ь Л и ш н Ю Ю В одУ и з ш Л а н го В
если слив находится выше 1000 мм от пола, избыточная вода в шлангах не сможет вытекать
непосредственно в слив. Необходимо сливать воду в таз или подходящую емкость, которая рас-
полагается снаружи и ниже уровня слива.












