Посудомоечные машины Korting KDI 4575 - инструкция пользователя по применению, эксплуатации и установке на русском языке. Мы надеемся, она поможет вам решить возникшие у вас вопросы при эксплуатации техники.
Если остались вопросы, задайте их в комментариях после инструкции.
"Загружаем инструкцию", означает, что нужно подождать пока файл загрузится и можно будет его читать онлайн. Некоторые инструкции очень большие и время их появления зависит от вашей скорости интернета.

30
КАК ОТСОЕДИНИТЬ ПОСУДОМОЕЧНУЮ МАШИНУ
1.
Отключите электрический провод от розетки.
2.
Отсоедините переходник от адаптера на кране.
КО ГД А КО Н Ч И ТС Я П О С Л Е Д Н Е Е П О Л О С К А Н И Е
,
П Е Р Е ХОД Н И К М ОЖ Н О ОТСО Е Д И
-
Н И Т Ь И У Б РАТ Ь
.
П ОД К Л Ю Ч Е Н И Е ГО Р Я Ч Е Й В ОД Ы
Для работы машины также можно использовать горячую водопроводную воду
,
но только в том
случае
,
если ее температура не превышает
6
О
’
С
.
В этом случае цикл мойки сократится примерно на
15
минут
,
а эффективность мойки слегка снизится
.
Подключение горячей воды следует выполнить
так же
,
как в случае с холодной водой.
РАС П ОЛ ОЖ Е Н И Е П Р И Б О РА
Поставьте прибор в выбранное место
.
Вокруг стенок посудомоечной машины и позади нее должно
быть свободное пространство
.
Шланги подачи и слива воды могут находиться как справа
,
так и слева
,
что позволяет наиболее
удобно установить машину
.
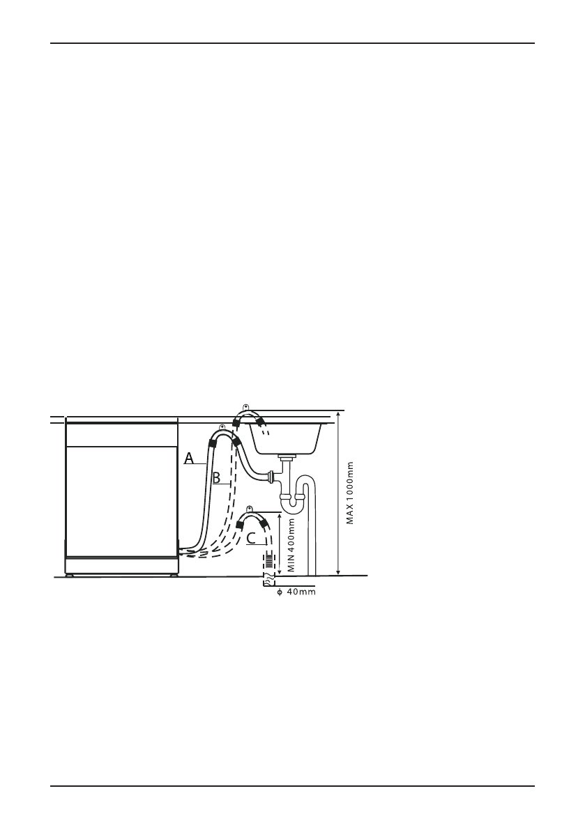
П ОД К Л Ю Ч Е Н И Е С Л И В Н О ГО Ш Л А Н ГА
Вставьте отводящий шланг в канал дренажа диаметром не менее
4
cм или навесьте его на край
емкости для слива
.
Убедитесь в отсутствии изгибов или пережимов
.
Воспользуйтесь специальным
пластиковым креплением
,
которое прилагается к машине
.
Свободный конец шланга должен на
-
ходиться на высоте между 400 и 1000 мм и не должен погружаться в воду
.
КА К С Л И Т Ь Л И Ш Н Ю Ю В ОДУ И З Ш Л А Н ГО В
Если слив находится выше
1000
мм от пола
,
избыточная вода в шлангах не сможет вытекать
непосредственно в слив
.
Необходимо сливать воду в таз или подходящую емкость
,
которая рас
-
полагается снаружи и ниже уровня слива.