Посудомоечные машины Korting KDI 4565 - инструкция пользователя по применению, эксплуатации и установке на русском языке. Мы надеемся, она поможет вам решить возникшие у вас вопросы при эксплуатации техники.
Если остались вопросы, задайте их в комментариях после инструкции.
"Загружаем инструкцию", означает, что нужно подождать пока файл загрузится и можно будет его читать онлайн. Некоторые инструкции очень большие и время их появления зависит от вашей скорости интернета.

28
КАК ОТСОЕДИНИТЬ ПОСУДОМОЕЧНУЮ МАШИНУ
1. Отключите электрический провод от розетки.
2. Отсоедините переходник от адаптера на кране.
КО ГД А КО Н Ч И ТС Я П О С Л Е Д Н Е Е П О Л О С К А Н И Е, П Е Р Е ХОД Н И К М ОЖ Н О ОТСО Е Д И-
Н И Т Ь И У Б РАТ Ь.
П ОД К Л Ю Ч Е Н И Е ГО Р Я Ч Е Й В ОД Ы
Для работы машины также можно использовать горячую водопроводную воду, но только в том
случае, если ее температура не превышает 6О’С. В этом случае цикл мойки сократится примерно на
15 минут, а эффективность мойки слегка снизится. Подключение горячей воды следует выполнить
так же, как в случае с холодной водой.
РАС П ОЛ ОЖ Е Н И Е П Р И Б О РА
Поставьте прибор в выбранное место. Вокруг стенок посудомоечной машины и позади нее должно
быть свободное пространство.
Шланги подачи и слива воды могут находиться как справа, так и слева, что позволяет наиболее
удобно установить машину.
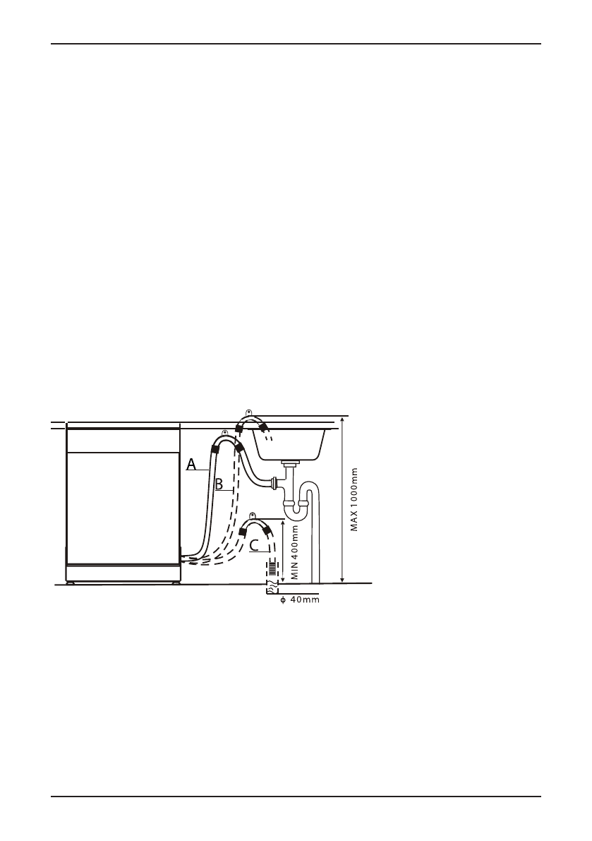
П ОД К Л Ю Ч Е Н И Е С Л И В Н О ГО Ш Л А Н ГА
Вставьте отводящий шланг в канал дренажа диаметром не менее 4 cм или навесьте его на край
емкости для слива. Убедитесь в отсутствии изгибов или пережимов. Воспользуйтесь специальным
пластиковым креплением, которое прилагается к машине. Свободный конец шланга должен на-
ходиться на высоте между 400 и 1000 мм и не должен погружаться в воду.
КА К С Л И Т Ь Л И Ш Н Ю Ю В ОДУ И З Ш Л А Н ГО В
Если слив находится выше 1000 мм от пола, избыточная вода в шлангах не сможет вытекать
непосредственно в слив. Необходимо сливать воду в таз или подходящую емкость, которая рас-
полагается снаружи и ниже уровня слива.












