Посудомоечные машины HOMSair DW64E - инструкция пользователя по применению, эксплуатации и установке на русском языке. Мы надеемся, она поможет вам решить возникшие у вас вопросы при эксплуатации техники.
Если остались вопросы, задайте их в комментариях после инструкции.
"Загружаем инструкцию", означает, что нужно подождать пока файл загрузится и можно будет его читать онлайн. Некоторые инструкции очень большие и время их появления зависит от вашей скорости интернета.

ПОДГОТОВКА К УСТАНОВКЕ
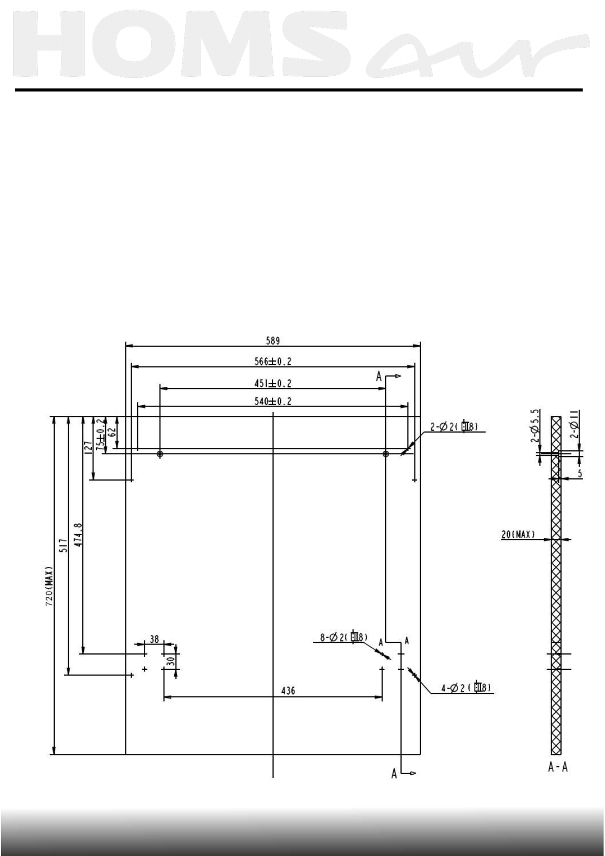
1. Для установки фасада воспользуйтесь монтажным трафаретом, который
идет в комплекте.
Декоративный фасад должен соответствовать размерам, указанным на
рисунке. (ед. измерения: мм)
Рис. 3
РАЗМЕРЫ И УСТАНОВКА ДЕКОРАТИВНОЙ ПАНЕЛИ
(КУХОННОГО ФАСАДА)
-16-
www.homsair.ru
Характеристики
Остались вопросы?Не нашли свой ответ в руководстве или возникли другие проблемы? Задайте свой вопрос в форме ниже с подробным описанием вашей ситуации, чтобы другие люди и специалисты смогли дать на него ответ. Если вы знаете как решить проблему другого человека, пожалуйста, подскажите ему :)












