Посудомоечные машины Hansa ZIM 608 EH - инструкция пользователя по применению, эксплуатации и установке на русском языке. Мы надеемся, она поможет вам решить возникшие у вас вопросы при эксплуатации техники.
Если остались вопросы, задайте их в комментариях после инструкции.
"Загружаем инструкцию", означает, что нужно подождать пока файл загрузится и можно будет его читать онлайн. Некоторые инструкции очень большие и время их появления зависит от вашей скорости интернета.

29
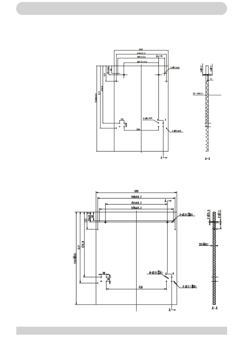
• Размеры и установка отделочной панели
1 Деревянная отделочная панель должна быть подготовлена к установке согласно с рис. 3.
[Рис. 3a]
Модели с шириной 45
см- Отделочная панель
должна быть подготовлена
к установке согласно с
указанными на рисунке
размерами.
Вес мебельной плиты
должен быть следующим:
* Для 45 см с панелью
полностью застроенной -
≤5кгс
* Для 45 см с открытой
панелью - ≤5кгс
(единица измерения : мм)
[Рис. 3b]
Модели с шириной
60 см- Отделочная
панель должна
быть подготовлена к
установке согласно
с указанными на
рисунке размерами.
Вес мебельной
плиты должен быть
следующим:
* Для 60 см с
панелью полностью
застроенной - ≤7кгс
* Для 60 см с
открытой панелью
- ≤6кгс
(единица измерения : мм)
ПОДГОТОВКА УСТАНОВКИИ МОНТАЖА ПОСУДОМОЕЧНОЙ МАШИНЫ












