Посудомоечные машины Hansa ZIM 428 EH - инструкция пользователя по применению, эксплуатации и установке на русском языке. Мы надеемся, она поможет вам решить возникшие у вас вопросы при эксплуатации техники.
Если остались вопросы, задайте их в комментариях после инструкции.
"Загружаем инструкцию", означает, что нужно подождать пока файл загрузится и можно будет его читать онлайн. Некоторые инструкции очень большие и время их появления зависит от вашей скорости интернета.

23
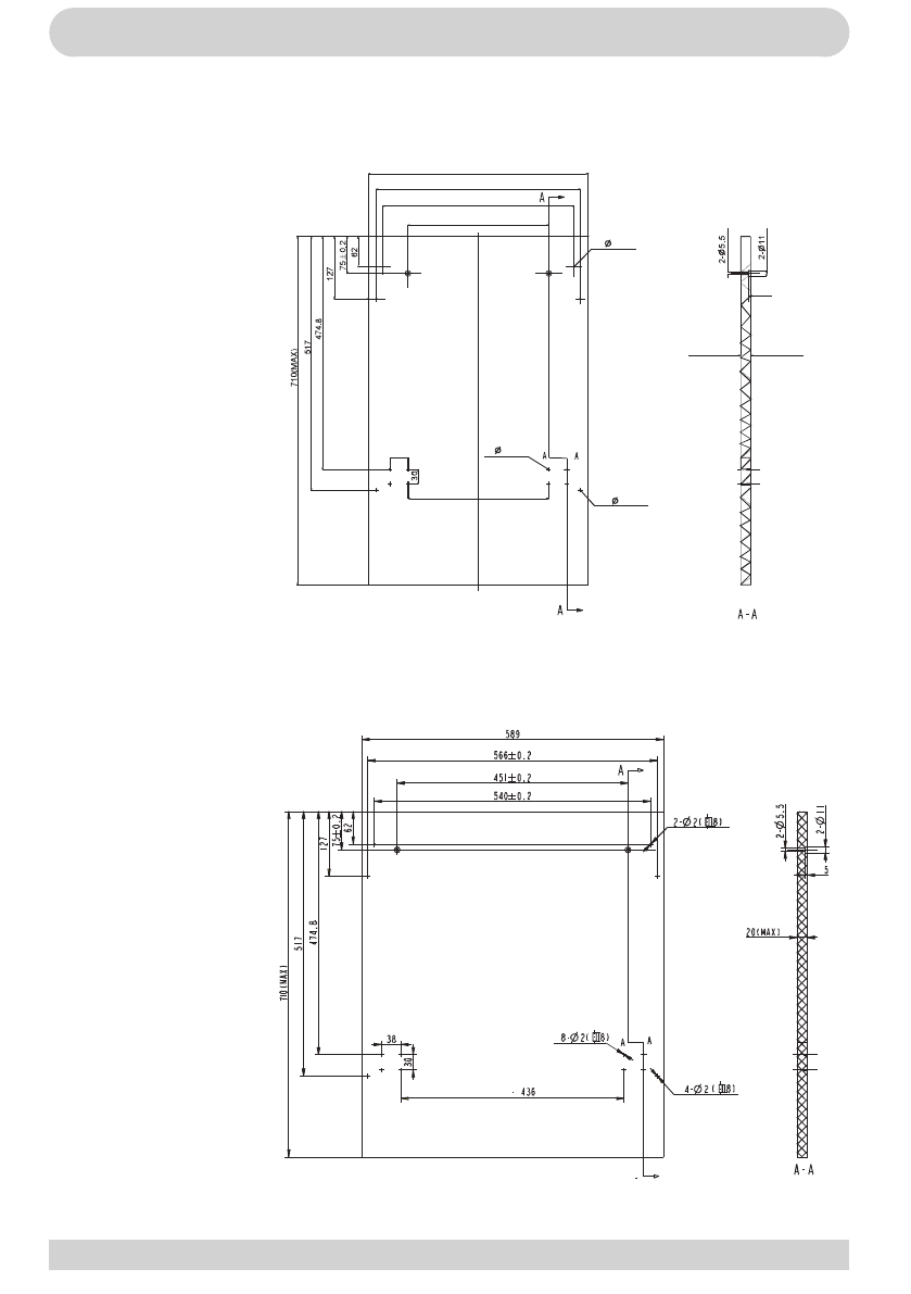
• Размеры и установка отделочной панели
1 Деревянная отделочная панель должна быть подготовлена к установке согласно с рис. 3.
[Рис. 3a]
Модели с шириной 45
см- Отделочная панель
должна быть подготовлена
к установке согласно с
указанными на рисунке
размерами.
(единица измерения : мм)
dp8
4 39
41 6
0 .2
±
39 0
0 .2
±
287.5
0 .2
±
28 6
3 8
8 -
2
dp8
4 -
2
d p8
2 -
2
2 0
MAX
(
)
5
[Рис. 3b]
Модели с шириной 60
см- Отделочная панель
должна быть подготовлена
к установке согласно с
указанными на рисунке
размерами.
(единица измерения : мм)
ПОДГОТОВКА УСТАНОВКИИ МОНТАЖА ПОСУДОМОЕЧНОЙ МАШИНЫ
Содержание
- 3 УКАЗАНИЯ ПО ТЕХНИКЕ БЕЗОПАСНОСТИ
- 4 Предметы, которые не разрешается; ОХРАНА ОКРУЖАЮЩЕЙ СРЕДЫ; РЕЦИКЛИНГ
- 5 УСТАНОВКА ПОСУДОМОЕЧНОЙ МАШИНЫ; Размещение прибора
- 6 Подсоединение к электрической сети
- 7 УСТРОЙСТВО ПОСУДОМОЕЧНОЙ МАШИНЫ
- 9 ПОДГОТОВКА К РАБОТЕ
- 10 Загрузка моющего средства
- 11 Загрузка ополаскивателя и регулировка
- 12 Расход моющих средств
- 13 ЗАГРУЗКА ПОСУДЫ В ПОСУДОМОЕЧНУЮ МАШИНУ
- 14 Лоток для мелких столовых приборов
- 15 Моющее средство/Ополаскиватель
- 16 Включение посудомоечной машины; раcпылительные сопла, и закрытия дверцы:; После окончания цикла мытья
- 17 шина переключится в режим ожидания,; Изменение программы
- 19 ОЧИСТКА И КОНСЕРВАЦИЯ
- 20 КОДЫ ОШИБОК И СПОСОБЫ УСТРАНЕНИЯ АВАРИЙ
- 21 ПОЛЕЗНЫЕ СОВЕТЫ И ПРАКТИЧЕСКИЕ РЕКОМЕНДАЦИИ; Если на посуде остаются пятна ржавчины; Заявление производителя; Прибор маркируется знаком соответствия
- 22 ПОДГОТОВКА УСТАНОВКИИ МОНТАЖА ПОСУДОМОЕЧНОЙ МАШИНЫ; Подготовка к установке посудомоечной машины
- 26 трёх подвижных ругулируемых ножек.
- 27 ПАСПОРТ ПРИБОРА В СООТВЕТСТВИИ С РАСПОРЯЖЕНИЕМ КОМИС