Посудомоечные машины Hansa ZIM 426 EH - инструкция пользователя по применению, эксплуатации и установке на русском языке. Мы надеемся, она поможет вам решить возникшие у вас вопросы при эксплуатации техники.
Если остались вопросы, задайте их в комментариях после инструкции.
"Загружаем инструкцию", означает, что нужно подождать пока файл загрузится и можно будет его читать онлайн. Некоторые инструкции очень большие и время их появления зависит от вашей скорости интернета.

28
• Размеры и установка отделочной панели
1 Деревянная отделочная панель должна быть подготовлена к установке согласно с рис. 3.
[Рис. 3a]
Модели с шириной 45
см- Отделочная панель
должна быть подготовлена
к установке согласно с
указанными на рисунке
размерами.
(единица измерения : мм)
dp8
439
416 0.2
±
390 0.2
±
287.5 0.2
±
286
3 8
8- 2
dp8
4- 2
dp8
2 - 2
20 MAX
(
)
5
[Рис. 3b]
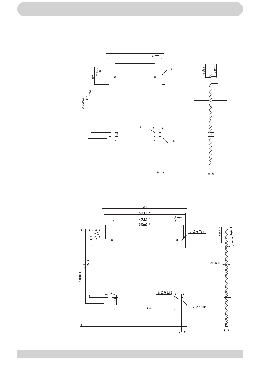
Модели с шириной 60
см- Отделочная панель
должна быть подготовлена
к установке согласно с
указанными на рисунке
размерами.
(единица измерения : мм)
ПОДГОТОВКА УСТАНОВКИИ МОНТАЖА ПОСУДОМОЕЧНОЙ МАШИНЫ












