Посудомоечные машины Gorenje GVSP164J - инструкция пользователя по применению, эксплуатации и установке на русском языке. Мы надеемся, она поможет вам решить возникшие у вас вопросы при эксплуатации техники.
Если остались вопросы, задайте их в комментариях после инструкции.
"Загружаем инструкцию", означает, что нужно подождать пока файл загрузится и можно будет его читать онлайн. Некоторые инструкции очень большие и время их появления зависит от вашей скорости интернета.

Установка
817-
890
520
556
660-760*
54
196
444
573
596
125-198
55
31
107
1194
700
670
[мм]
Длина дверцы
*
Номинальные размеры. Фактические измерения могут отличаться.
Обязательно ознакомьтесь с изложенными ниже
указаниями и соблюдайте их. Машину необходимо
устанавливать и подключать в соответствии со
специальными инструкциями.
Указания по технике безопасности
•
Работы по подключению к электросети, водопроводу
и канализации должен выполнять
квалифицированный специалист.
•
При подключении к водопроводу, канализации и
электросети всегда соблюдайте действующие
нормы.
•
Будьте осторожны при установке! Надевайте
защитные перчатки! Установку должны выполнять
два человека!
•
Для защиты от утечки поставьте под машину поддон.
•
Перед тем как закрепить машину с помощью винтов,
проверьте ее работоспособность, запустив
программу «Пoлocкaниe». Она должна набирать и
сливать воду. Также проверьте герметичность
соединений.
ПРЕДОСТЕРЕЖЕНИЕ!
При установке посудомоечной машины перекрывайте
систему подачи воды.
При выполнении работ вилка должна быть вынута из
розетки или на розетку не должно подаваться
напряжение.
Размещение
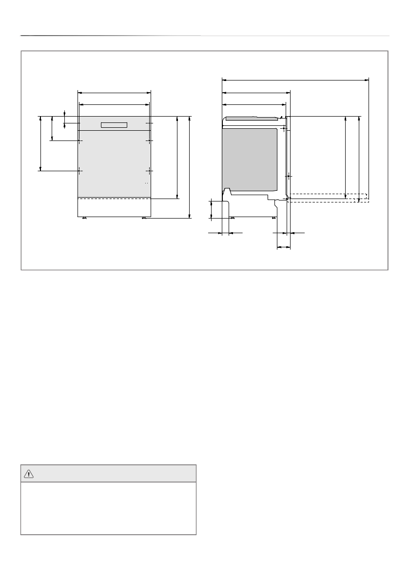
•
Размеры ниши и другие размеры, необходимых для
подключения, указаны в отдельных инструкциях по
установке. Перед установкой убедитесь в том, что
все размеры корректны для выполнения монтажа.
Обратите внимание, что размер внешней двери по
высоте может быть в диапазоне указанном на схеме,
чтобы соответствовать размерам других элементов
сборки.
•
Устанавливайте посудомоечную машину на прочную
поверхность. Отрегулируйте ножки, чтобы машина
стояла ровно.
•
Наклейте защитную пленку (она находится в пакете
с документами) на нижнюю сторону рабочей
поверхности. Защитная пленка предназначена для
защиты рабочей поверхности от влаги.
•
Машина должна быть установлена так, чтобы дверь
свободно открывалась, иначе дверной замок может
не сработать.
Подсоединение к сливу
Необходимые сведения смотрите в отдельных
инструкциях по установке.
Посудомоечная машина подходит для установки в
приподнятых нишах (для достижения эргономичной
рабочей высоты). Иными словами, машину можно
расположить так, чтобы сливной шланг находился ниже
ее дна. Например, его можно подключить напрямую к
напольному сливу. Машина оборудована встроенным
антисифоном, который предотвращает ее опорожнение
во время мойки.
20
Содержание
- 3 Указания по технике безопасности
- 4 Перед первой мойкой; Проверка жесткости воды; Выбор Ополаскиватель
- 5 Загрузка машины; Эко мойка посуды; Подъем и опускание верхней корзины
- 6 Нижняя корзина; Корзина для столовых приборов; Загрузите моющее средство; Таблетки для посудомоечных машин
- 10 Настройки; Откройте меню настроек:; Переход по меню настроек:; Теперь можно отрегулировать следующие настройки:; Опции; Ополаскиватель
- 12 Уход и очистка; Добавление ополаскивателя; Фильтр грубой очистки
- 13 Разбрызгиватели; Нижний разбрызгиватель; Дверь и уплотнитель двери; Накипь; Удаление засоров сливного насоса
- 15 Поиск и устранение неисправностей; Способ устранения
- 20 Установка; Размещение
- 21 Подсоединение к водопроводу; Подключение к водопроводу холодной воды; Подсоединение к электрической сети
- 22 Сервис; Паспортная табличка; Информация для тестового запуска
- 24 Техническая информация; Информация на этикетке энергоэффективности; Gorenje; Технические данные












