Посудомоечные машины Gorenje GV66260 - инструкция пользователя по применению, эксплуатации и установке на русском языке. Мы надеемся, она поможет вам решить возникшие у вас вопросы при эксплуатации техники.
Если остались вопросы, задайте их в комментариях после инструкции.
"Загружаем инструкцию", означает, что нужно подождать пока файл загрузится и можно будет его читать онлайн. Некоторые инструкции очень большие и время их появления зависит от вашей скорости интернета.

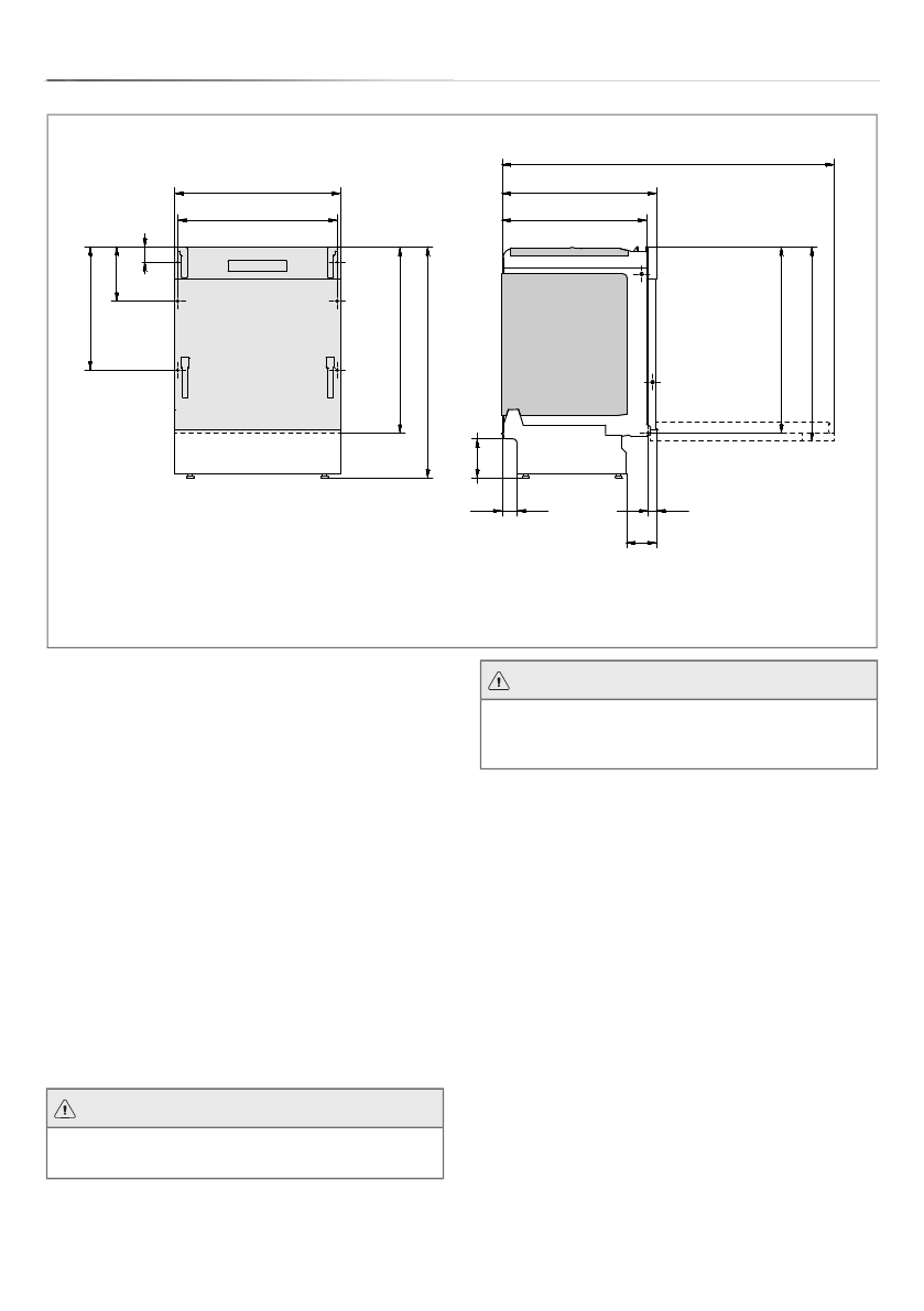
Установка
817-
867
520
556
660-760*
54
196
444
573
596
125-175
55
31
107
1194
700
670
720-800*
1252*
Установлена сдвижная внешняя дверь, то есть внешняя дверь
сдвигается вверх при открывании посудомоечной машины.
Длина дверцы
[мм]
*
Обязательно ознакомьтесь с изложенными ниже
указаниями и соблюдайте их. Машину необходимо
устанавливать и подключать в соответствии со
специальными инструкциями.
Указания по технике безопасности
•
Работы по подключению к электросети, водопроводу
и канализации должен выполнять
квалифицированный специалист.
•
При подключении к водопроводу, канализации и
электросети всегда соблюдайте действующие
нормы.
•
Будьте осторожны при установке! Надевайте
защитные перчатки! Установку должны выполнять
два человека!
•
Чтобы предотвратить ущерб от утечек, поставьте
под машину водонепроницаемый поддон.
•
Перед тем как закрепить машину с помощью винтов,
проверьте ее работоспособность, запустив
программу «Пoлocкaниe». Она должна набирать и
сливать воду. Также проверьте герметичность
соединений.
ПРЕДОСТЕРЕЖЕНИЕ!
При установке посудомоечной машины перекрывайте
систему подачи воды.
ПРЕДОСТЕРЕЖЕНИЕ!
При выполнении работ вилка должна быть вынута из
розетки или на розетку не должно подаваться
напряжение.
Размещение
•
Размеры ниши и другие размеры, необходимых для
подключения, указаны в отдельных инструкциях по
установке. Перед установкой убедитесь в том, что
все размеры корректны для выполнения монтажа.
Обратите внимание, что размер внешней двери по
высоте может быть в диапазоне указанном на схеме,
чтобы соответствовать размерам других элементов
сборки.
•
Устанавливайте посудомоечную машину на прочную
поверхность. Отрегулируйте ножки, чтобы машина
стояла ровно.
Подсоединение к сливу
Необходимые сведения смотрите в отдельных
инструкциях по установке.
Стиральная машина подходит для установки в
приподнятых нишах (для достижения эргономичной
рабочей высоты). Иными словами, машину можно
расположить так, чтобы сливной шланг находился ниже
ее дна. Например, его можно подключить напрямую к
напольному сливу. Машина оборудована встроенным
19
Содержание
- 2 Указания по технике безопасности; Не разрешайте детям играть с машиной.
- 3 Перед первой мойкой; Смягчитель воды; Индикатор заполнения соли; Доливание ополаскивателя; Индикатор заливки ополаскивателя
- 4 Дозировку ополаскивателя нужно увеличить, если:; Дозировку ополаскивателя нужно уменьшить:; Загрузка машины
- 5 Подъем и опускание верхней корзины; Нижняя корзина; Складные держатели
- 6 Загрузите моющее средство; Главный выключатель
- 8 После окончания программы
- 10 Настройки; Откройте меню настроек:; Переход по меню настроек:; Теперь можно отрегулировать следующие настройки:; Опции; Ополаскиватель; Жесткость воды
- 12 Уход и очистка; Фильтр грубой очистки
- 13 Разбрызгиватели; Нижний разбрызгиватель; Дверца
- 14 Поиск и устранение неисправностей; Способ устранения
- 19 Установка
- 20 Подсоединение к водопроводу; Подключайте машину к холодному водоснабжению; Подсоединение к электрической сети; Сервис; Паспортная табличка
- 21 Информация для тестового запуска
- 24 Техническая информация; Информация на этикетке энергоэффективности; Технические данные












