Посудомоечные машины Gorenje GV620E10 - инструкция пользователя по применению, эксплуатации и установке на русском языке. Мы надеемся, она поможет вам решить возникшие у вас вопросы при эксплуатации техники.
Если остались вопросы, задайте их в комментариях после инструкции.
"Загружаем инструкцию", означает, что нужно подождать пока файл загрузится и можно будет его читать онлайн. Некоторые инструкции очень большие и время их появления зависит от вашей скорости интернета.

Установка
[мм]
Длина дверцы
*
Обязательно ознакомьтесь с изложенными ниже
указаниями и соблюдайте их. Машину необходимо
устанавливать и подключать в соответствии со
специальными инструкциями.
Указания по технике безопасности
• Работы по подключению к электросети, водопроводу
и канализации должен выполнять
квалифицированный специалист.
• При подключении к водопроводу, канализации и
электросети всегда соблюдайте действующие
нормы.
• Будьте осторожны при установке! Надевайте
защитные перчатки! Установку должны выполнять
два человека!
• Чтобы предотвратить ущерб от утечек, поставьте
под машину водонепроницаемый поддон.
• Перед тем как закрепить машину с помощью винтов,
проверьте ее работоспособность, запустив
программу «Пoлocкaниe». Она должна набирать и
сливать воду. Также проверьте герметичность
соединений.
ПРЕДОСТЕРЕЖЕНИЕ!
При установке посудомоечной машины
перекрывайте систему подачи воды.
ПРЕДОСТЕРЕЖЕНИЕ!
При выполнении работ вилка должна быть вынута из
розетки или на розетку не должно подаваться
напряжение.
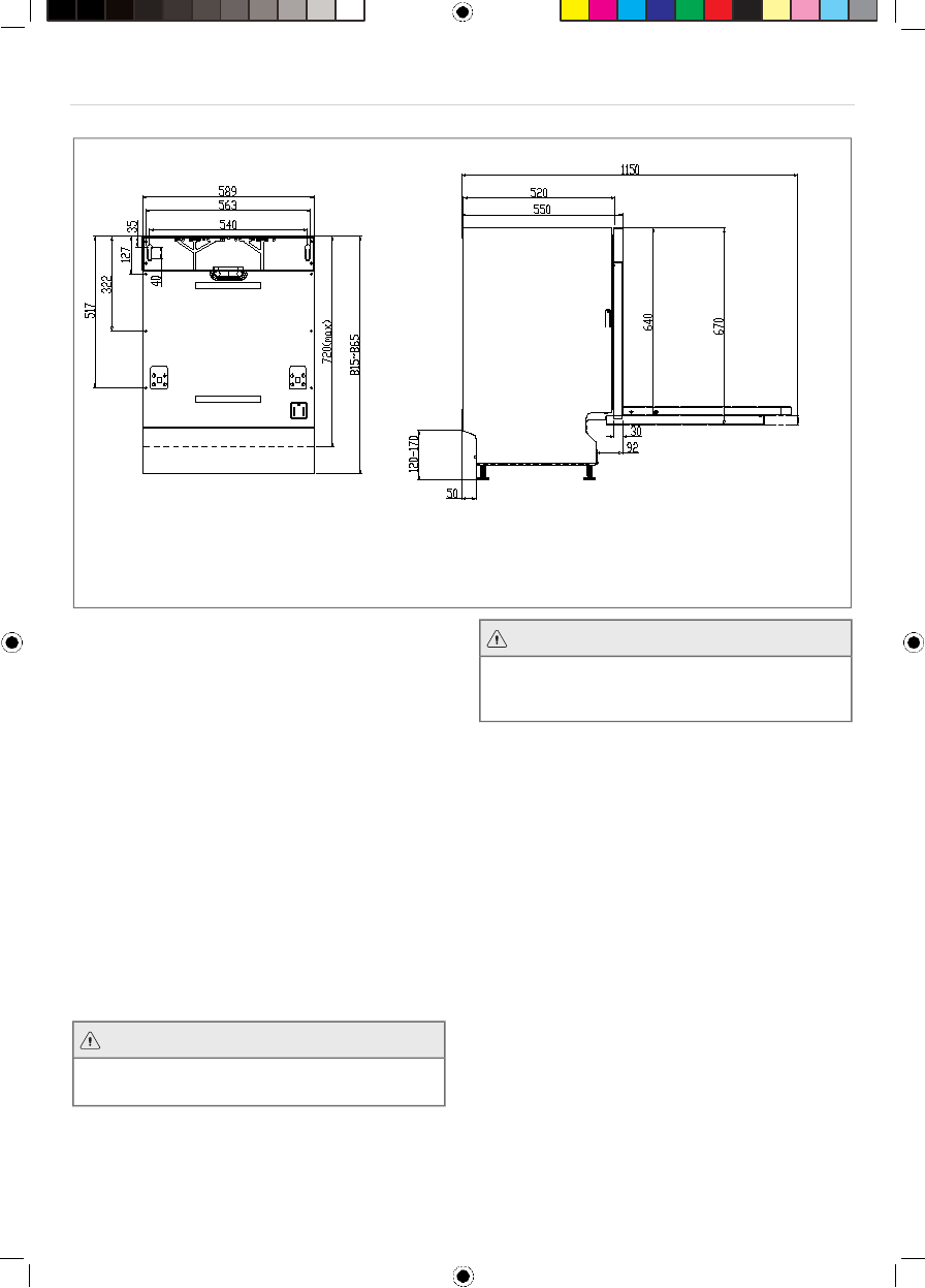
Размещение
• Размеры ниши и другие размеры, необходимых для
подключения, указаны в отдельных инструкциях по
установке. Перед установкой убедитесь в том, что
все размеры корректны для выполнения монтажа.
Обратите внимание, что размер внешней двери по
высоте может быть в диапазоне указанном на
схеме, чтобы соответствовать размерам других
элементов сборки.
• Устанавливайте посудомоечную машину на прочную
поверхность. Отрегулируйте ножки, чтобы машина
стояла ровно.
Подсоединение к сливу
Необходимые сведения смотрите в
отдельных инструкциях по установке.
Сливной шланг можно удлинять не более чем на 3 м.
При этом его общая длина должна составлять не
более 4,5 м. Внутренний диаметр сочленений и
патрубков не должен превышать 14 мм. Тем не менее
при необходимости сливной шланг рекомендуется
заменять шлангом без сочленений.
Ни одна часть сливного шланга не должна
располагаться на высоте более 950 мм над нижним
краем машины. Не
16
Содержание
- 2 Указания по технике безопасности; Не разрешайте детям играть с машиной.
- 3 Перед первой мойкой; Смягчитель воды; Установка дозировки ополаскивателя
- 4 Загрузка машины; Экономичная мойка посуды; Подъем и опускание верхней корзины; Верхний лоток для
- 5 Главный выключатель
- 7 ПРИМЕЧАНИЕ; Эта программа является тестовым циклом. Информация для; Таблица программ; ч а с
- 9 Настройки; Регулировка Потребления Соли; Регулировка использования ополаскивателя; Ур о ве н ь; o c
- 11 Разбрызгиватели; Нижний разбрызгиватель; Накипь
- 12 Поиск и устранение неисправностей
- 16 Установка
- 17 Подсоединение к водопроводу; Подключайте машину к холодному водоснабжению; Подсоединение к электрической сети
- 18 Сервис; Паспортная табличка; Информация об импортёре
- 19 Информация для тестового запуска; Item; Загрузка верхней и нижней корзин:
- 20 Корзина для столовых приборов:; Max
- 21 Номер
- 23 Советы по использованию корзины для столовых приборов
- 24 Техническая информация












