Посудомоечные машины Gorenje GDV674X - инструкция пользователя по применению, эксплуатации и установке на русском языке. Мы надеемся, она поможет вам решить возникшие у вас вопросы при эксплуатации техники.
Если остались вопросы, задайте их в комментариях после инструкции.
"Загружаем инструкцию", означает, что нужно подождать пока файл загрузится и можно будет его читать онлайн. Некоторые инструкции очень большие и время их появления зависит от вашей скорости интернета.

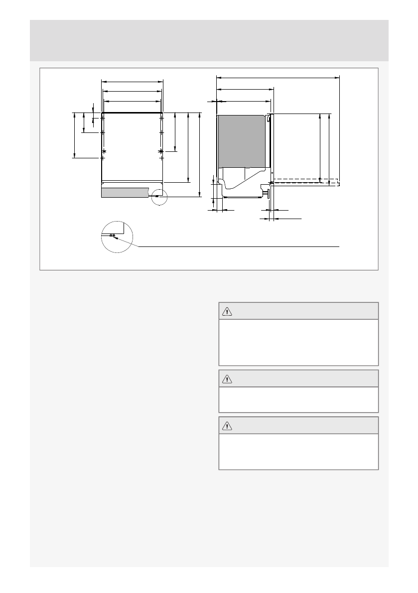
УСТАНОВКА
519
30-94
596
573
550
54
37
7
680
-760**
30
67
0
19
5
444
49
70
0
821*
-87
2
133
-18
3
9
559
1198
[мм]
* Если высота установки составляет 820-821 мм, отвинтите стопорные гайки.
** Длина дверцы.
Обязательно ознакомьтесь с изложенными
ниже указаниями и соблюдайте их. Машину
необходимо устанавливать и подключать в
соответствии со специальными
инструкциями.
УКАЗАНИЯ ПО ТЕХНИКЕ
БЕЗОПАСНОСТИ
•
Работы по подключению к электросети,
водопроводу и канализации должен
выполнять квалифицированный
специалист.
•
При подключении к водопроводу,
канализации и электросети всегда
соблюдайте действующие нормы.
•
Будьте осторожны при установке!
Надевайте защитные перчатки!
Установку должны выполнять два
человека!
•
Чтобы предотвратить ущерб от утечек,
поставьте под машину
водонепроницаемый поддон.
•
Перед тем как закрепить машину с
помощью винтов, проверьте ее
работоспособность, запустив программу
«Пoлocкaниe». Она должна набирать и
сливать воду. Также проверьте
герметичность соединений.
ПРЕДОСТЕРЕЖЕНИЕ!
Запрещается блокировать
вентиляционное отверстие в нижней части
дверцы половиком, ковром или
аналогичными предметами меблировки.
ПРЕДОСТЕРЕЖЕНИЕ!
При установке посудомоечной машины
перекрывайте систему подачи воды.
ПРЕДОСТЕРЕЖЕНИЕ!
При выполнении работ вилка должна быть
вынута из розетки или на розетку не
должно подаваться напряжение.
РАЗМЕЩЕНИЕ
•
Размеры ниши и другие размеры,
необходимых для подключения, указаны
в отдельных инструкциях по установке.
Перед установкой убедитесь в том, что
все размеры корректны для выполнения
монтажа. Обратите внимание, что
размер внешней двери по высоте может
30
Содержание
- 3 ОБЩИЕ ПОЛОЖЕНИЯ; Не разрешайте детям играть с машиной.; УСТАНОВКА; Блокировка кнопок для защиты от детей
- 4 ПЕРЕД ПЕРВОЙ МОЙКОЙ; НАКЛЕЙКА С НАЗВАНИЯМИ КНОПОК
- 5 Индикатор заполнения соли; ДОЛИВАНИЕ ОПОЛАСКИВАТЕЛЯ
- 6 Индикатор заливки ополаскивателя; Настройки дозатора от; ЗАГРУЗКА МАШИНЫ; ЭКОНОМИЧНАЯ МОЙКА ПОСУДЫ; Не ополаскивайте посуду перед мойкой
- 7 ХРУПКАЯ ПОСУДА; Выдвиньте верхний лоток для столовых
- 8 ВЕРХНЯЯ КОРЗИНА; Складные держатели
- 9 Мытье больших тарелок
- 10 ЗАГРУЗИТЕ МОЮЩЕЕ СРЕДСТВО; Отделение для моющего средства; Таблетки для посудомоечных машин; КНОПКА ВКЛЮЧЕНИЯ / РЕЖИМА
- 11 ВЫБОР ПРОГРАММЫ; Hyg
- 12 ВЫБОР ОПЦИЙ; Чтобы включить опцию «Зaдepжкa
- 13 начнет отсчитывать часы до запуска.; Уcкopeннaя; ОСТАВШЕЕСЯ ВРЕМЯ; Индикатор горит синим цветом
- 14 ПОСЛЕ ОКОНЧАНИЯ ПРОГРАММЫ
- 15 НАСТРОЙКИ; ЧТОБЫ ОТКРЫТЬ МЕНЮ УСТАНОВОК ВЫПОЛНИТЕ СЛЕДУЮЩЕЕ:; Когда на дисплее появится надпись «; ТЕПЕРЬ МОЖНО ОТРЕГУЛИРОВАТЬ СЛЕДУЮЩИЕ НАСТРОЙКИ:; Описание
- 16 Контрастность
- 19 УХОД И ОЧИСТКА; ФИЛЬТР ГРУБОЙ ОЧИСТКИ; ФИЛЬТР ТОНКОЙ ОЧИСТКИ; СЛИВНОЙ НАСОС
- 20 РАЗБРЫЗГИВАТЕЛИ; Нижний разбрызгиватель; ДВЕРЦА
- 27 МАРКИРОВКА ЭНЕРГОЭФФЕКТИВНОСТИ; Дозировка во время испытаний
- 28 ИЗМЕРЕНИЕ УРОВНЯ ШУМА; Внешняя дверь; Загрузка машины; См. раздел Маркировка энергоэффективности.
- 29 ТЕХНИЧЕСКАЯ ИНФОРМАЦИЯ; ИНФОРМАЦИЯ НА ЭТИКЕТКЕ ЭНЕРГОЭФФЕКТИВНОСТИ; ТЕХНИЧЕСКИЕ ДАННЫЕ
- 30 РАЗМЕЩЕНИЕ
- 31 ПОДСОЕДИНЕНИЕ К СЛИВУ; Не перегибайте сливной шланг.; ПОДСОЕДИНЕНИЕ К ВОДОПРОВОДУ
- 32 СЕРВИС; ПАСПОРТНАЯ ТАБЛИЧКА
- 35 ЗАГРУЗКА КОРЗИН












