Посудомоечные машины Electrolux WTM300 - инструкция пользователя по применению, эксплуатации и установке на русском языке. Мы надеемся, она поможет вам решить возникшие у вас вопросы при эксплуатации техники.
Если остались вопросы, задайте их в комментариях после инструкции.
"Загружаем инструкцию", означает, что нужно подождать пока файл загрузится и можно будет его читать онлайн. Некоторые инструкции очень большие и время их появления зависит от вашей скорости интернета.

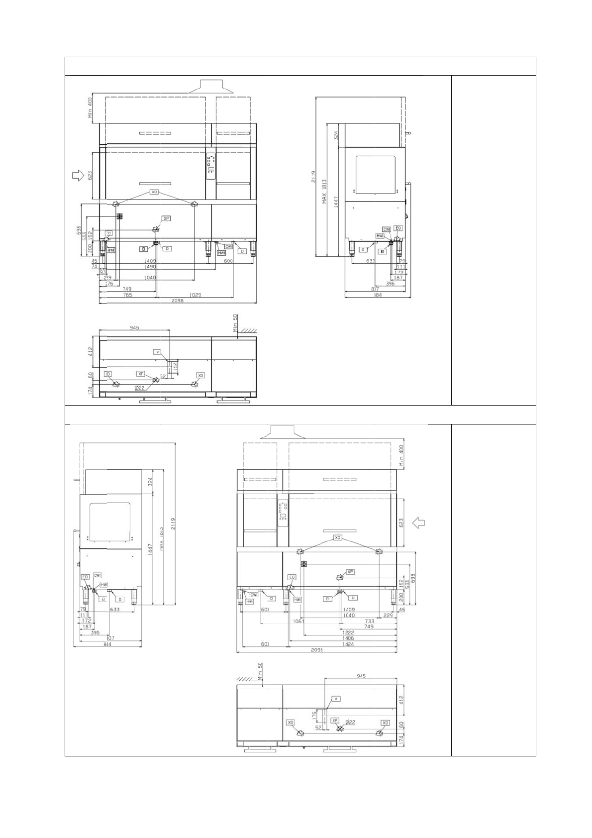
Монтажн
Монтажн
ная
схема
посу
ная
схема
посу
удомоечной
м
удомоечной
м
машины
с
пода
машины
с
пода
ачей
кассет
сл
(
электронагре
ачей
кассет
сп
(
электронагре
лева
направо
,
ев
)
права
налево
,
ев
)
производите
производите
ельностью
165
Специф
HWI
Вхо
воды
G
CWI
Вхо
воды
G
D
Сливн
1 1/2“
V
Патру
пара
из
С
U
EI
Вход
кабеля
EQ
Винт
к
эквипо
системе
XD
Вход
подачи
средств
XP
Метк
отверст
концент
моющег
ельностью
165
Специф
HWI
Вхо
воды
G
CWI
Вхо
воды
G
D
Сливн
1 1/2“
V
Патру
пара
из
С
U
EI
Вход
кабеля
EQ
Винт
к
эквипо
системе
XD
Вход
подачи
средств
XP
Метк
отверст
концент
моющег
29
5
кассет
/
час
фикация
:
од
горячей
3/4”
од
холодной
3/4”
ной
патрубок
G
убок
выпуска
конденсатора
питающего
т
подключения
отенциальной
е
д
трубок
моющего
ва
ка
для
тия
под
датчик
трации
го
средства
5
кассет
/
час
фикация
:
од
горячей
3/4”
од
холодной
3/4”
ной
патрубок
G
убок
выпуска
конденсатора
питающего
т
подключения
отенциальной
е
д
трубок
моющего
ва
ка
для
тия
под
датчик
трации
го
средства












