Посудомоечные машины Electrolux RTM200 / WTM200 - инструкция пользователя по применению, эксплуатации и установке на русском языке. Мы надеемся, она поможет вам решить возникшие у вас вопросы при эксплуатации техники.
Если остались вопросы, задайте их в комментариях после инструкции.
"Загружаем инструкцию", означает, что нужно подождать пока файл загрузится и можно будет его читать онлайн. Некоторые инструкции очень большие и время их появления зависит от вашей скорости интернета.

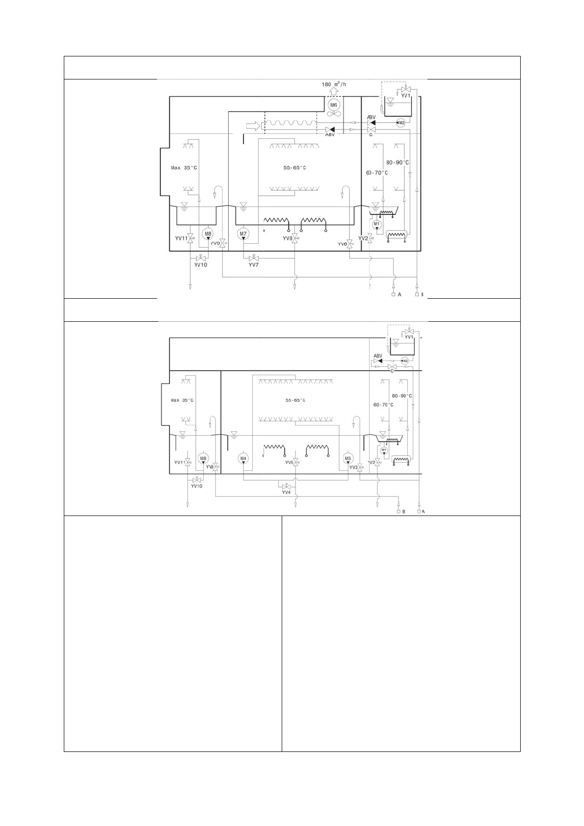
Схем
Схема
Специф
A =
Вход
г
B =
Вход
х
C =
Регули
M1 =
Насо
rinse»
M2 =
Опол
M4 =
Насо
M5 =
Насо
M6 =
Двиг
M7 =
Насо
M8 =
Насо
M10 =
Нас
рукава
M11 =
Нас
рукава
ABV =
Кла
YV1 =
Эле
разрывом
YV2 =
Эле
двойного
о
YV3 =
Эле
(20
л
/
мин
.
YV4 =
Эле
мойки
ма
гидравли
а
гидравлич
фикация
:
горячей
воды
(
холодной
воды
ируемая
задви
ос
системы
дво
ласкивающий
н
ос
зоны
мойки
/
ос
зоны
мойки
/
гатель
вентиля
ос
зоны
мойки
ос
зоны
предва
сос
зоны
предв
сос
зоны
предв
апан
с
воздушн
ектроклапан
по
струи
«Air Gap
ектроклапан
сл
ополаскивания
ектроклапан
по
)
ектроклапан
сл
ического
ко
ческого
кон
~ 50°C)
ы
(~ 15°C)
ижка
(
макс
. 7
л
/
ойного
ополаск
насос
/
верхние
моющ
/
нижние
моющ
тора
конденса
арительной
мой
варительной
мо
варительной
мо
ным
разрывом
одачи
воды
с
во
p» (20
л
/
мин
.)
лива
воды
из
ба
я
«Duo-rinse»
одачи
воды
в
б
лива
воды
из
на
онтура
для
конд
нтура
для
м
конд
/
мин
.)
кивания
«Duo-
щие
рукава
щие
рукава
тора
CU
йки
ойки
/
верхние
ойки
/
нижние
оздушным
ака
системы
ак
зоны
мойки
асосов
зоны
машины
пр
денсатором
машины
про
денсатора
YV5 =
Эл
YV6 =
Эл
предвар
YV7 =
Эл
предвар
YV8 =
Эл
предвар
YV9 =
Эл
предвар
YV10 =
Э
предвар
YV11 =
Э
предвар
YV12 =
Э
предвар
YV13 =
Э
предвар
YV14 =
предвар
YV15 =
Э
предвар
YV16 =
Э
предвар
YV17 =
Э
предвар
роизводите
м
(CU)
оизводител
(CU)
лектроклапан
с
лектроклапан
п
рительной
мойк
лектроклапан
с
рительной
мойк
лектроклапан
с
рительной
мойк
лектроклапан
п
рительной
мойк
Электроклапан
рительной
мойк
Электроклапан
рительной
мойк
Электроклапан
рительной
мойк
Электроклапан
рительной
мойк
=
Электрокла
рительной
мойк
Электроклапан
рительной
мойк
Электроклапан
рительной
мойк
Электроклапан
рительной
мойк
ельностью
льностью
2
слива
воды
из
подачи
воды
в
ки
или
мойки
(2
слива
воды
из
ки
или
мойки
слива
воды
из
ки
или
мойки
подачи
воды
в
ки
(20
л
/
мин
.)
н
слива
воды
из
ки
н
слива
воды
из
ки
н
подачи
воды
ки
(20
л
/
мин
.)
н
слива
воды
из
ки
апан
слива
ки
н
подачи
воды
ки
(20
л
/
мин
.)
н
слива
воды
из
ки
н
слива
воды
из
ки
180
кассет
/
200
кассет
/
ч
бака
зоны
мой
бак
зоны
20
л
/
мин
.)
насосов
зоны
бака
зоны
бак
зоны
з
насосов
зоны
з
бака
зоны
в
бак
зоны
з
насосов
зоны
воды
из
б
в
бак
зоны
з
насосов
зоны
з
бака
зоны
24
/
час
с
час
без
йки
ы
ы
бака
зоны
ы












