Посудомоечные машины Electrolux RTM180 / WTM180 - инструкция пользователя по применению, эксплуатации и установке на русском языке. Мы надеемся, она поможет вам решить возникшие у вас вопросы при эксплуатации техники.
Если остались вопросы, задайте их в комментариях после инструкции.
"Загружаем инструкцию", означает, что нужно подождать пока файл загрузится и можно будет его читать онлайн. Некоторые инструкции очень большие и время их появления зависит от вашей скорости интернета.

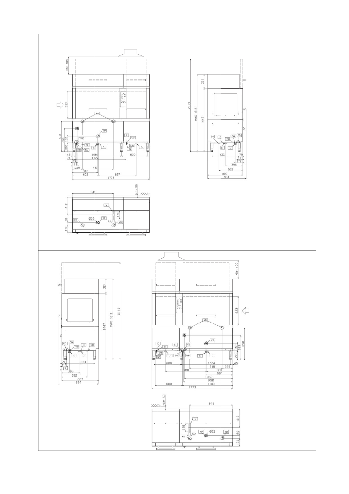
Монтажна
Монтажна
ая
схема
по
прои
ая
схема
по
прои
судомоечно
изводитель
судомоечно
изводитель
ой
машины
ьностью
14
ой
машины
ьностью
14
ы
с
подачей
0
кассет
/
ча
ы
с
подачей
0
кассет
/
ча
й
кассет
сле
с
(
пар
)
й
кассет
спр
с
(
пар
)
ева
направо
Специф
HWI
Вхо
воды
G
CWI
Вхо
воды
G
D
Сливн
1 1/2“
SO
Сли
SI
Вход
V
Патру
пара
из
С
U
EI
Вход
кабеля
EQ
Винт
к
эквипо
системе
XD
Вход
подачи
средств
XP
Метк
отверст
концент
моющег
рава
налево
Специф
HWI
Вхо
воды
G
CWI
Вхо
воды
G
D
Сливн
1 1/2“
SO
Сли
SI
Вход
V
Патру
пара
из
С
U
EI
Вход
кабеля
EQ
Винт
к
эквипо
системе
XD
Вход
подачи
средств
XP
Метк
отверст
концент
моющег
34
о
,
фикация
:
од
горячей
3/4”
од
холодной
3/4”
ной
патрубок
G
в
конденсата
пара
убок
выпуска
конденсатора
питающего
т
подключения
отенциальной
е
д
трубок
моющего
ва
ка
для
тия
под
датчик
трации
го
средства
о
,
фикация
:
од
горячей
3/4”
од
холодной
3/4”
ной
патрубок
G
в
конденсата
пара
убок
выпуска
конденсатора
питающего
т
подключения
отенциальной
е
д
трубок
моющего
ва
ка
для
тия
под
датчик
трации
го
средства












