Посудомоечные машины Electrolux ESL 4710 LO - инструкция пользователя по применению, эксплуатации и установке на русском языке. Мы надеемся, она поможет вам решить возникшие у вас вопросы при эксплуатации техники.
Если остались вопросы, задайте их в комментариях после инструкции.
"Загружаем инструкцию", означает, что нужно подождать пока файл загрузится и можно будет его читать онлайн. Некоторые инструкции очень большие и время их появления зависит от вашей скорости интернета.

10.2 Декоративна панель
439
20 (max.)
38
30
286
6
2
7
5
0
,2
1
2
7
4
7
4
,8
5
1
7
7
1
0
(ma
x.
)
416 0,2
390 0,2
287,5 0,2
4-Ø2/8
4-Ø2/8
A
2-Ø11
5
A-A
A
A
A
2-Ø5,5
8-Ø2/8
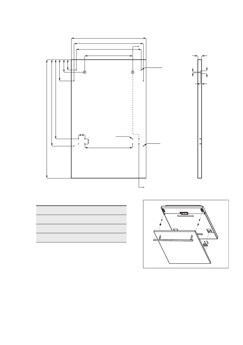
Розміри декоративної панелі
Розмір
Значення (мм)
Ширина
439
Висота
макс. 710
Товщина
макс. 20
Установка декоративної панелі
1. Установіть гачок на декоративній
панелі.
2. Вставте гачок в отвір на дверцятах
приладу.
3. Закріпіть панель на дверцятах за
допомогою гвинтів і болтів.
A. Викрутіть чотири короткі гвинти
з дверцят приладу.
B. Закріпіть декоративну панель
за допомогою чотирьох довгих
гвинтів, які мають вставлятися
в ті самі отвори.
www.electrolux.com
48
Содержание
- 4 Безопасность детей и лиц с ограниченными; возможностями
- 5 УКАЗАНИЯ ПО БЕЗОПАСНОСТИ; электросети
- 10 Настройка и запуск; программы
- 11 ЕЖЕДНЕВНОЕ ИСПОЛЬЗОВАНИЕ; Эксплуатация прибора
- 12 Смягчитель для воды
- 13 Использование моющих; средств
- 14 раздельного использования; ополаскивателя
- 15 Отрегулируйте дозировку
- 16 Указания и рекомендации
- 17 обслуживание; фильтров; Чистка разбрызгивателя
- 18 поверхностей; Защита от замерзания; ПОИСК И УСТРАНЕНИЕ НЕИСПРАВНОСТЕЙ
- 20 Результаты мойки и сушки неудовлетворительны
- 23 Декоративная панель
- 24 Регулировка натяжения; пружины дверцы; Подключение к сливу
- 25 Окончательная проверка; ТЕХНИЧЕСКИЕ ДАННЫЕ; Таблица технических данных
- 26 ОХРАНА ОКРУЖАЮЩЕЙ СРЕДЫ












