Посудомоечные машины DEXP G14D7PB - инструкция пользователя по применению, эксплуатации и установке на русском языке. Мы надеемся, она поможет вам решить возникшие у вас вопросы при эксплуатации техники.
Если остались вопросы, задайте их в комментариях после инструкции.
"Загружаем инструкцию", означает, что нужно подождать пока файл загрузится и можно будет его читать онлайн. Некоторые инструкции очень большие и время их появления зависит от вашей скорости интернета.

19
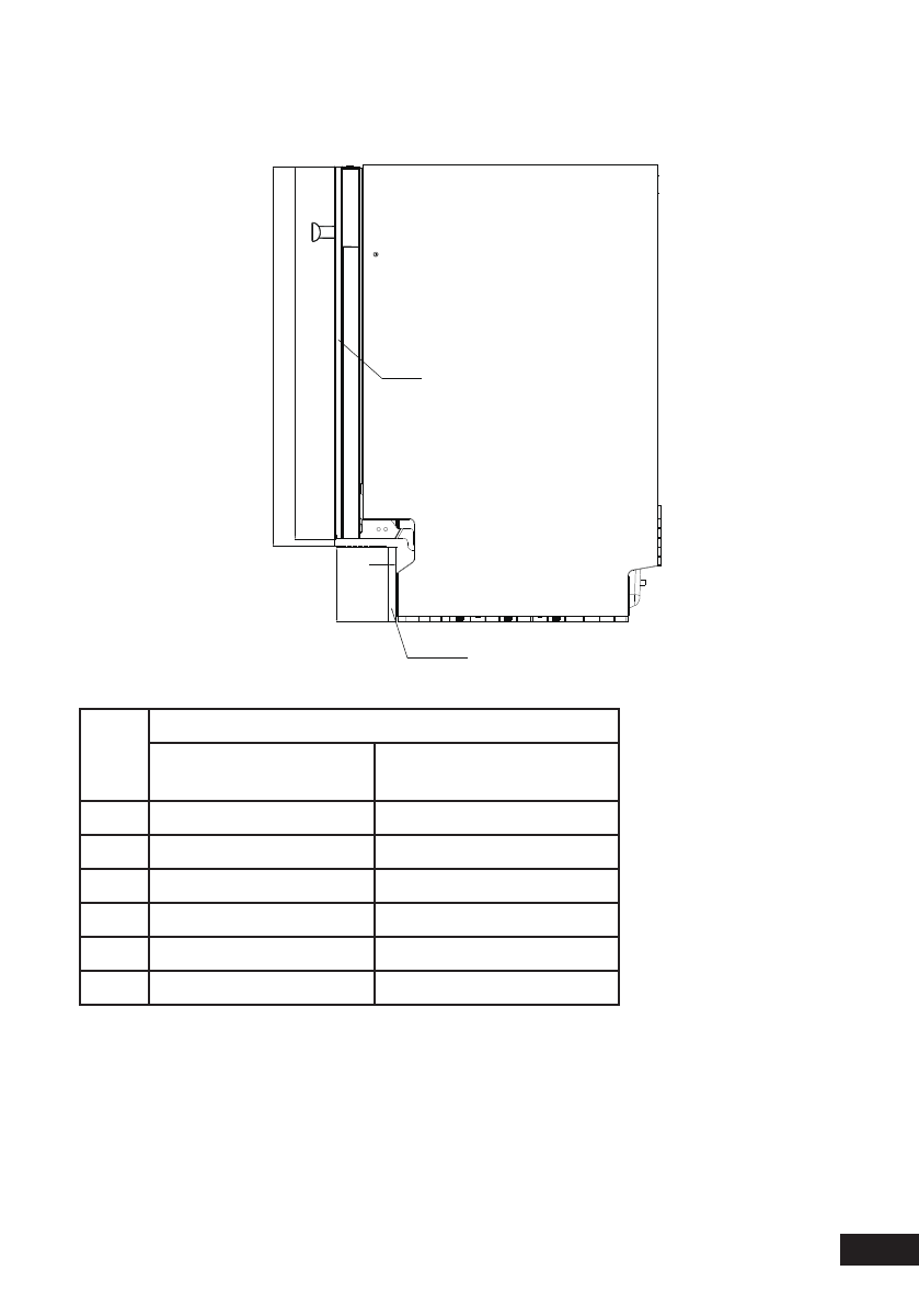
Установка нижней панели
708 макс. 658 ми
н.
125 макс.
Декоративная панель
Нижняя панель
75 ми
н.
15
№
Ориентировочный размер
Декоративная
панель, мм
Нижняя панель, мм
1
708
75
2
698
85
3
688
95
4
678
105
5
668
115
6
658
125
Примечание
: высота нижней панели подбирается с учетом эстетичности и обе
-
спечения плавного открывания и закрывания дверцы. Ориентировочные разме
-
ры приведены в таблице выше.
Характеристики
Остались вопросы?Не нашли свой ответ в руководстве или возникли другие проблемы? Задайте свой вопрос в форме ниже с подробным описанием вашей ситуации, чтобы другие люди и специалисты смогли дать на него ответ. Если вы знаете как решить проблему другого человека, пожалуйста, подскажите ему :)







