Посудомоечные машины DEXP DWF60A3 - инструкция пользователя по применению, эксплуатации и установке на русском языке. Мы надеемся, она поможет вам решить возникшие у вас вопросы при эксплуатации техники.
Если остались вопросы, задайте их в комментариях после инструкции.
"Загружаем инструкцию", означает, что нужно подождать пока файл загрузится и можно будет его читать онлайн. Некоторые инструкции очень большие и время их появления зависит от вашей скорости интернета.

13
Подключение к электроснабжению
Внимание!
Для подключения нельзя использовать удлинитель или переходники.
Нельзя убирать заземляющий провод шнура питания.
Требования к подключению
• Рекомендуется использовать предохранитель 10 А, предохранитель с за
-
держкой на срабатывание или автомат-выключатель, также обеспечить от
-
дельную линию питания только для посудомоечной машины.
• Убедитесь, что напряжение и частота соответствуют данным, указанным
в разделе «Технические характеристики».
• Включайте вилку только в заземленную розетку. Если вилка не подходит
к электрической розетке, замените розетку. Не рекомендуется использовать
переходники, они могут перегреваться и вызывать повреждение прибора.
Схема 6.2
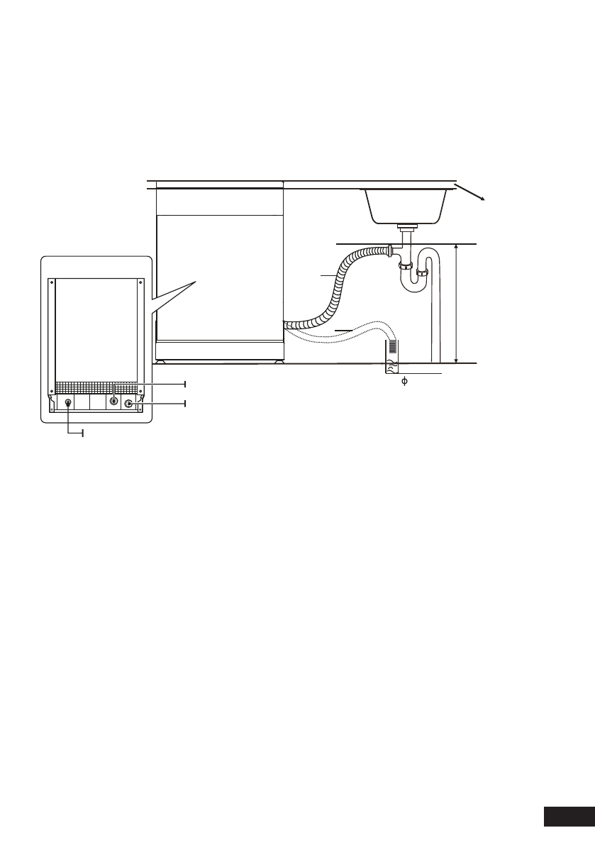
Подключение сливного шланга
Вставьте сливной шланг в водосточную трубу диаметром минимум 40 мм
или подключите сливной шланг к раковине, убедитесь, что шланг не перегиба
-
ется. Верхняя часть шланга не должна находиться на высоте более 1000 мм.
B
A
Макс. 1 м
Столешница
Задняя панель
Кабель питания
Наливной шланг
Сливной шланг
Сливной шланг
Верхняя часть
сливного шланга не
должна располагаться
выше 1 метра.
40 мм (диаметр шланга)
Характеристики
Остались вопросы?Не нашли свой ответ в руководстве или возникли другие проблемы? Задайте свой вопрос в форме ниже с подробным описанием вашей ситуации, чтобы другие люди и специалисты смогли дать на него ответ. Если вы знаете как решить проблему другого человека, пожалуйста, подскажите ему :)







