Посудомоечные машины DeLonghi DDW06S Brilliant - инструкция пользователя по применению, эксплуатации и установке на русском языке. Мы надеемся, она поможет вам решить возникшие у вас вопросы при эксплуатации техники.
Если остались вопросы, задайте их в комментариях после инструкции.
"Загружаем инструкцию", означает, что нужно подождать пока файл загрузится и можно будет его читать онлайн. Некоторые инструкции очень большие и время их появления зависит от вашей скорости интернета.

- 17 -
·
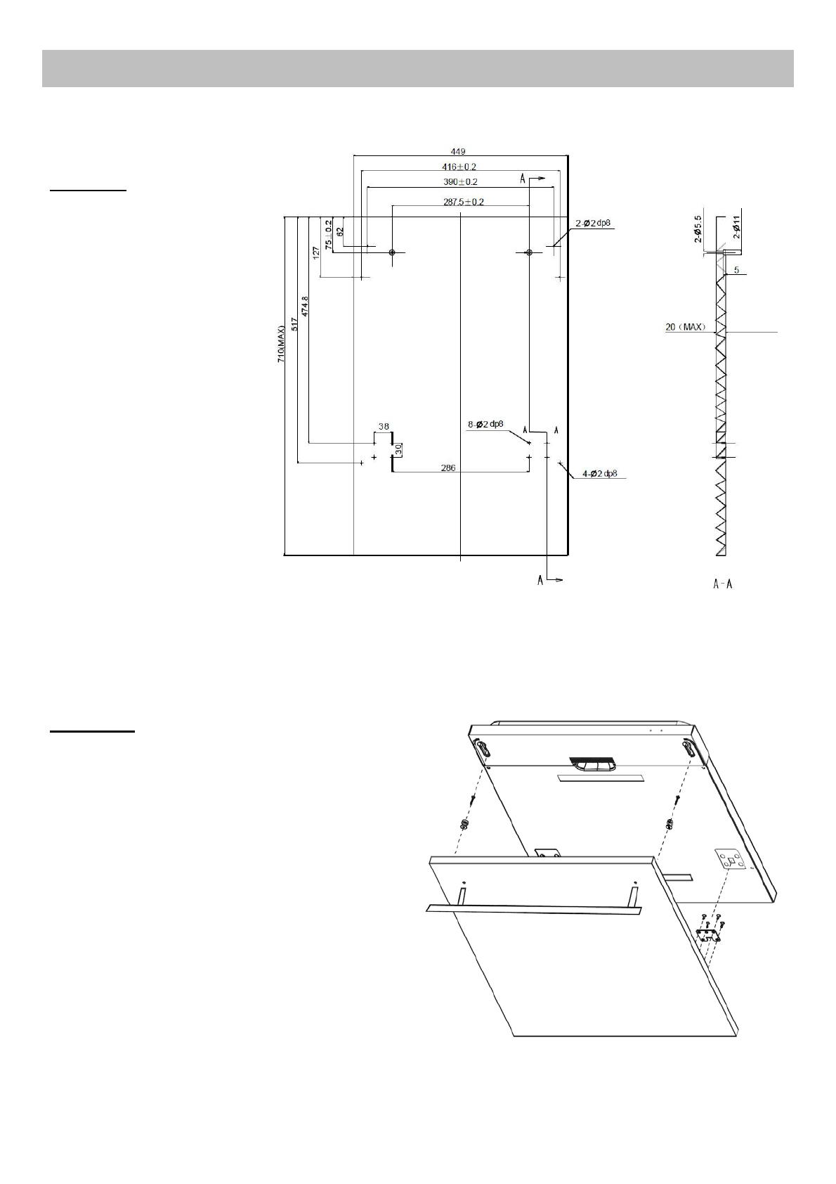
Размеры и установка внешней панели
1.
Установите внешнюю панель
,
как
показано на Рисунке
3
Рисунок
3
Внешняя панель должна
соответствовать размерам
,
приведённым на рисунке
(Ед
.
измерения
:
мм
)
2.
Установите крюк на внешней панели и вставьте его в отверстие на дверце
посудомоечной машины
(
рис
. 4
а
).
Установив панель
,
закрепите ее на дверце машины
при помощи гаек и болтов
(
рис
. 4b).
Рисунок
4a
Установка внешней панели












