Посудомоечные машины Candy CED 112/1 - инструкция пользователя по применению, эксплуатации и установке на русском языке. Мы надеемся, она поможет вам решить возникшие у вас вопросы при эксплуатации техники.
Если остались вопросы, задайте их в комментариях после инструкции.
"Загружаем инструкцию", означает, что нужно подождать пока файл загрузится и можно будет его читать онлайн. Некоторые инструкции очень большие и время их появления зависит от вашей скорости интернета.

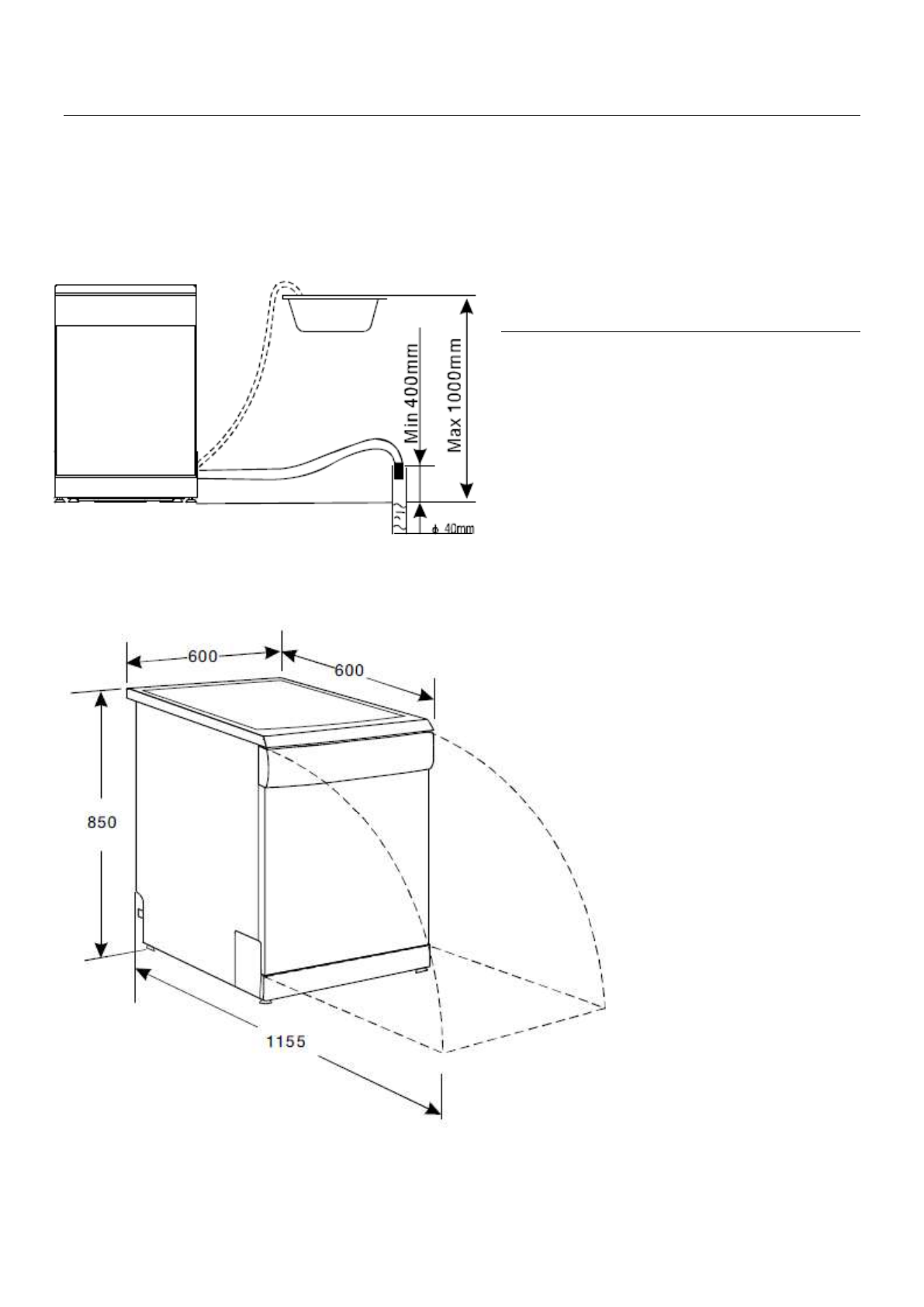
Подсоединение сливного шланга
Вставьте свободный конец сливного шланг в сливную трубу диаметром не менее 4 см, или выведите
сливной шланг в кухонную мойку. Проверьте, что шланг не перегнут и не пережат. Используйте
специальное опорное колено, входящее в комплект поставки посудомоечной машины. Свободный конец
шланга должен располагаться на высоте от 40 до 100 см от пола, и не должен быть погружен в воду.
Max 1000 mm -
Максимум 1000 мм
Min 400 mm
– Минимум 400 мм
Как слить из шлангов с муфтой Unicouple
оставшуюся в них воду
Если кухонная мойка установлена на высоте
более 34 см от пола, то оставшаяся в шлангах с
муфтой Unicouple вода не будет сливаться в
мойку. Поставьте сбоку от машины ведро или
другую емкость (на уровне ниже уровня
кухонной мойки) и слейте в него воду.
ГАБАРИТНЫЕ РАЗМЕРЫ (в миллиметрах)












