Посудомоечные машины Asko DSD644B/1 - инструкция пользователя по применению, эксплуатации и установке на русском языке. Мы надеемся, она поможет вам решить возникшие у вас вопросы при эксплуатации техники.
Если остались вопросы, задайте их в комментариях после инструкции.
"Загружаем инструкцию", означает, что нужно подождать пока файл загрузится и можно будет его читать онлайн. Некоторые инструкции очень большие и время их появления зависит от вашей скорости интернета.

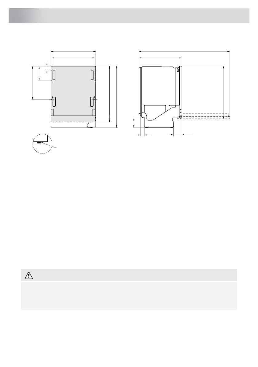
819*-
872
559
680-760**
52
193
442
573
596
131-186
50
30-94
1198
700
105
1254**
720-800**
[мм]
Номинальные размеры. Фактические измерения могут отличаться.
* Если высота установки составляет 820-821 мм, отвинтите стопорные гайки.
Установлена сдвижная внешняя дверь, то есть внешняя
дверь сдвигается вверх при открывании посудомоечной
машины.
Длина дверцы
**
Обязательно ознакомьтесь с изложенными ниже указаниями и соблюдайте их. Машину
необходимо устанавливать и подключать в соответствии со специальными инструкциями.
Указания по технике безопасности
•
Работы по подключению к электросети, водопроводу и канализации должен выполнять
квалифицированный специалист.
•
При подключении к водопроводу, канализации и электросети всегда соблюдайте
действующие нормы.
•
Будьте осторожны при установке! Надевайте защитные перчатки! Установку должны
выполнять два человека!
•
Для защиты от утечки поставьте под машину поддон.
•
Перед тем как закрепить машину с помощью винтов, проверьте ее работоспособность,
запустив программу «Полоскание». Она должна набирать и сливать воду. Также проверьте
герметичность соединений.
ПРЕДОСТЕРЕЖЕНИЕ!
При установке посудомоечной машины перекрывайте систему подачи воды.
При выполнении работ вилка должна быть вынута из розетки или на розетку не должно
подаваться напряжение.
Размещение
•
Размеры ниши и другие размеры, необходимых для подключения, указаны в отдельных
инструкциях по установке. Перед установкой убедитесь в том, что все размеры корректны
для выполнения монтажа. Обратите внимание, что размер внешней двери по высоте может
43
Установка
Содержание
- 3 Добро пожаловать в нашу растущую семью ASKO!; Ваша посудомоечная машина
- 4 Указания по технике безопасности
- 5 Утилизация
- 7 Рекомендуемая настройка; Перед первой мойкой
- 8 Основные настройки; Настройки
- 9 Добавить ополаск; Добавить соль
- 11 Посудомоечная машина расходует меньше энергии и воды; Эко мойка посуды
- 12 Загрузка машины
- 14 Верхняя корзина
- 15 Нижняя корзина
- 16 Корзина для столовых приборов
- 18 Загрузите моющее средство; Использование посудомоечной машины
- 20 Главный выключатель электропитания
- 22 Автоматическое открывание
- 23 Запуск посудомоечной машины; Остановка или изменение программы
- 24 Выгрузка посудомоечной машины
- 26 Открытие Меню настроек посудомоечной машины; Опции; Язык; Выбор программ
- 30 Уход и очистка
- 31 Очистка фильтров
- 32 Очистка разбрызгивателей
- 33 Очистка посудомоечной машины внутри и снаружи
- 34 Удаление засоров
- 36 Способ устранения; Поиск и устранение неисправностей
- 43 Размещение; Установка
- 45 Подсоединение к электрической сети
- 46 Сервис
- 49 Технические данные; Техническая информация
Характеристики
Остались вопросы?Не нашли свой ответ в руководстве или возникли другие проблемы? Задайте свой вопрос в форме ниже с подробным описанием вашей ситуации, чтобы другие люди и специалисты смогли дать на него ответ. Если вы знаете как решить проблему другого человека, пожалуйста, подскажите ему :)













