Посудомоечные машины Asko DFI545K - инструкция пользователя по применению, эксплуатации и установке на русском языке. Мы надеемся, она поможет вам решить возникшие у вас вопросы при эксплуатации техники.
Если остались вопросы, задайте их в комментариях после инструкции.
"Загружаем инструкцию", означает, что нужно подождать пока файл загрузится и можно будет его читать онлайн. Некоторые инструкции очень большие и время их появления зависит от вашей скорости интернета.

Обязательно ознакомьтесь с изложенными ниже указаниями и соблюдайте их. Машину
необходимо устанавливать и подключать в соответствии со специальными инструкциями.
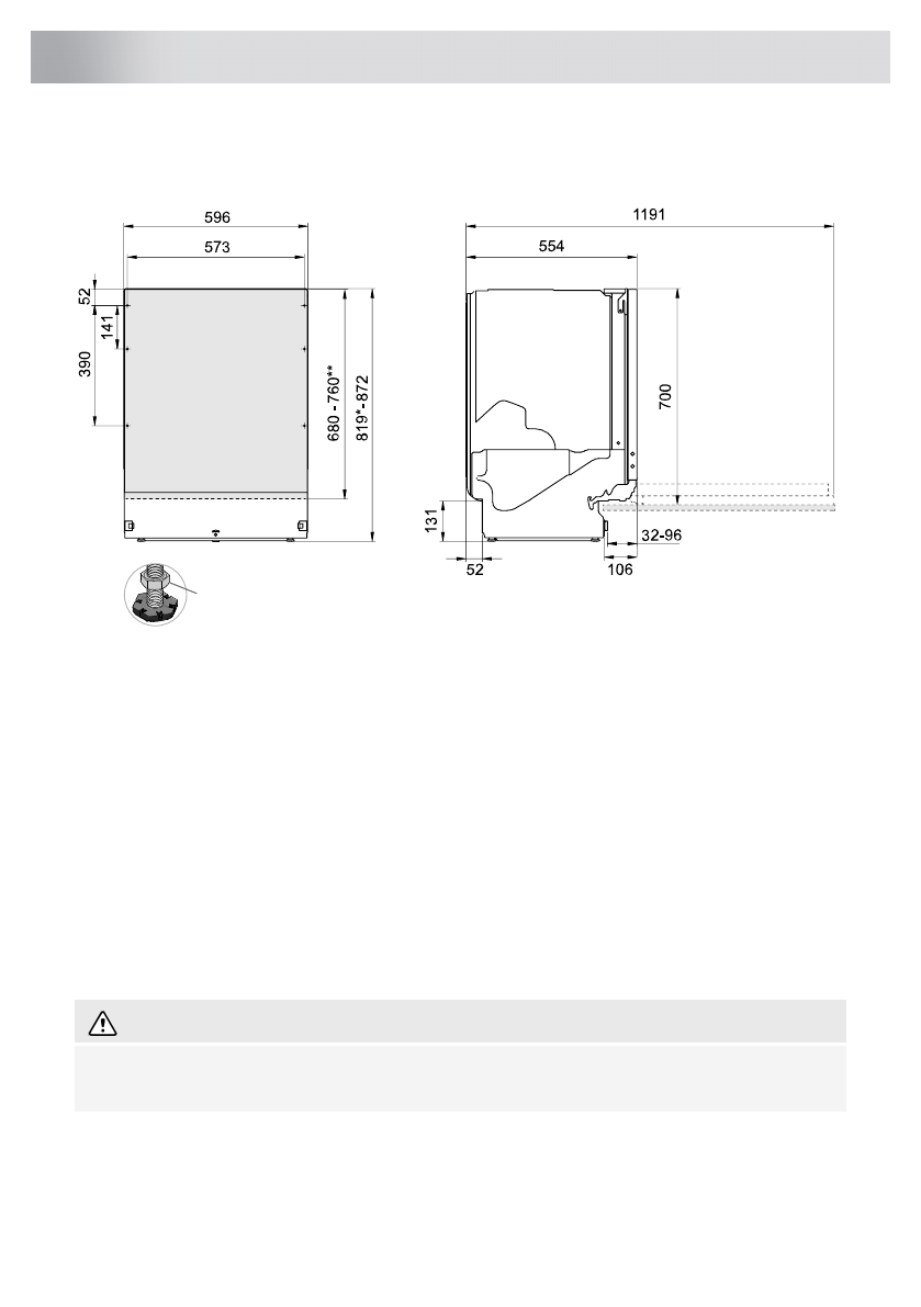
* Если высота установки составляет 820-821 мм, отвинтите стопорные гайки.
Длина внешней двери.
Номинальные размеры. Фактические измерения могут отличаться.
[мм]
**
Указания по технике безопасности
•
Работы по подключению к электросети, водопроводу и канализации должен выполнять
квалифицированный специалист.
•
При подключении к водопроводу, канализации и электросети всегда соблюдайте
действующие нормы.
•
Будьте осторожны при установке! Надевайте защитные перчатки! Установку должны
выполнять два человека!
•
Для защиты от протечек поставьте под машину поддон. (Если это требует ваша страховая
компания.)
•
Перед тем как закрепить машину с помощью винтов, проверьте ее работоспособность,
запустив программу «Полоскание». Она должна набирать и сливать воду. Также проверьте
герметичность соединений.
ПРЕДОСТЕРЕЖЕНИЕ!
Запрещается блокировать вентиляционное отверстие в нижней части дверцы половиком,
ковром или аналогичными предметами меблировки.
47
Установка
Содержание
- 3 Ваша посудомоечная машина
- 4 Указания по технике безопасности
- 5 Защитная блокировка; Установка
- 6 Утилизация
- 7 Жесткость воды; Рекомендуемая настройка; Перед первой мойкой
- 8 Основные настройки; Настройки; Язык
- 9 Добавить ополаскиватель; Аккуратно добавьте ополаскиватель до указанного уровня MAX.; Добавить соль
- 10 Экономия электроэнергии и воды; Экономичное мытье
- 11 Загрузка машины
- 13 Верхняя корзина
- 14 Нижняя корзина
- 16 Корзина для столовых приборов
- 18 Добавление моющего средства; Использование посудомоечной машины
- 19 Выбор программы; Экологичная
- 20 Выбор режима программы
- 21 Ночной; Выбор опций; Автоматическое открывание двери
- 22 Если необходимо загрузить больше посуды
- 23 Выгрузка посудомоечной машины
- 25 Connect Life; Подготовка; Подключение к сети и сопряжение; Подключение WiFi
- 26 Сетевой символ на дисплее; Дистанционное управление посудомоечной машиной
- 27 Выключить WiFi / Включить WiFi; Удалить все устройства
- 28 Опции
- 31 Показания ошибок; Выход
- 32 Уход и очистка
- 33 Очистите фильтры
- 34 Очистка разбрызгивателей
- 35 Очистка посудомоечной машины снаружи
- 38 Поиск и устранение неисправностей
- 39 Общие положения; Способ устранения
- 50 Сервис
- 53 Технические данные; Техническая информация
Характеристики
Остались вопросы?Не нашли свой ответ в руководстве или возникли другие проблемы? Задайте свой вопрос в форме ниже с подробным описанием вашей ситуации, чтобы другие люди и специалисты смогли дать на него ответ. Если вы знаете как решить проблему другого человека, пожалуйста, подскажите ему :)













