Посудомоечные машины Asko D5894 XXL SOF FI - инструкция пользователя по применению, эксплуатации и установке на русском языке. Мы надеемся, она поможет вам решить возникшие у вас вопросы при эксплуатации техники.
Если остались вопросы, задайте их в комментариях после инструкции.
"Загружаем инструкцию", означает, что нужно подождать пока файл загрузится и можно будет его читать онлайн. Некоторые инструкции очень большие и время их появления зависит от вашей скорости интернета.

519
1229
550
1
3
6
-1
8
6
30-94
8
6
4
-9
1
5
596
573
550
5
4
3
7
7
7
0
0
-8
0
0
30
7
1
0
1
9
4
,8
4
4
3
,5
49
7
4
0
[
мм
]
*
*
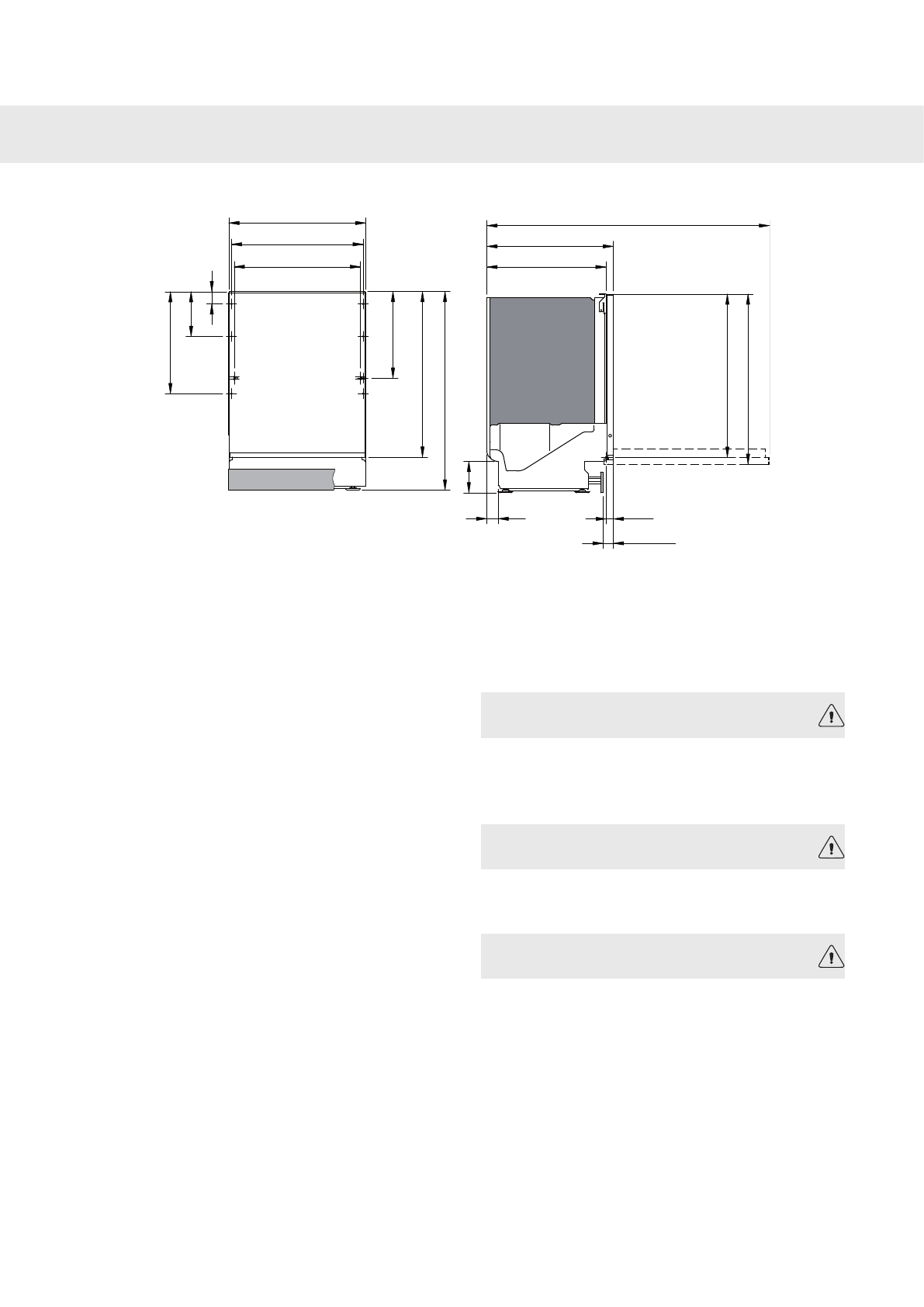
Длина дверцы
Обязательно ознакомьтесь с изложенными ниже
указаниями и соблюдайте их. Машину необходимо
устанавливать и подключать в соответствии со
специальными инструкциями.
Инструкции по безопасности
•
Работы по подключению к электросети,
водопроводу и канализации должен выполнять
квалифицированный специалист.
•
Подключать машину к электросети,
водопроводу и канализации должен
квалифицированный специалист.
•
При подключении к водопроводу, канализации
и электросети всегда соблюдайте
действующие нормы.
•
Неправильная или дефектная установка может
привести к повышенному потреблению
энергии, воды и моющего средства, что может
повлечь за собой увеличение затрат и
ухудшение результатов мойки. В целях
сведения к минимуму шума важно следовать
инструкциям.
•
Соблюдайте осторожность при установке.
Надевайте защитные перчатки. Выполняйте
работы только с помощником.
•
Чтобы предотвратить ущерб от утечек,
поставьте под машину водонепроницаемый
поддон.
•
Перед тем как закрепить машину с помощью
винтов, проверьте ее работоспособность,
запустив программу «Пoлocкaниe». Она
должна набирать и сливать воду. Также
проверьте герметичность соединений.
ПРЕДОСТЕРЕЖЕНИЕ!
Запрещается блокировать вентиляционное
отверстие в нижней части дверцы половиком,
ковром или аналогичными вещами меблировки.
ПРЕДОСТЕРЕЖЕНИЕ!
При установке посудомоечной машины
перекрывайте систему подачи воды.
ПРЕДОСТЕРЕЖЕНИЕ!
При выполнении работ вилка должна быть
вынута из розетки или на розетку не должно
подаваться напряжение.
41
Установка
Содержание
- 2 Содержание
- 4 Проверка жесткости воды; Перед первой мойкой
- 5 Указания по технике безопасности
- 6 Безопасность детей
- 7 Компоненты посудомоечной машины *
- 8 Корзины посудомоечной машины *
- 10 Корзина для столовых приборов с крышкой
- 12 Размещение дополнительной корзины для столовых приборов; Верхняя корзина
- 13 Дозатор; Панель управления
- 14 Экономичная мойка посуды
- 15 Хрупкая посуда
- 16 Мойка посуды
- 17 Загрузите моющее средство; Таблетки для посудомоечных машин; пока не засветится дисплей
- 19 Пoлocкaниe; Пoдoгpeв тapeлoк
- 20 Таблица программ
- 21 Выберите опции
- 24 После мойки
- 25 Специальные настройки
- 27 Оставшееся время
- 28 Индикатор горит синим цветом
- 29 Фильтр грубой очистки; Уход и очистка
- 31 Верхний разбрызгиватель; Чистка средней корзины; Дверца
- 32 Выбор дозировки; Ополаскиватель
- 33 Добавление соли; Соль
- 34 Сообщения об ошибках
- 35 Поиск и устранение неисправностей
- 39 Технические характеристики
- 40 Технические данные
- 41 Инструкции по безопасности; Установка
- 43 Паспортная табличка; Дата производства; Информация
- 48 Краткое руководство
Характеристики
Остались вопросы?Не нашли свой ответ в руководстве или возникли другие проблемы? Задайте свой вопрос в форме ниже с подробным описанием вашей ситуации, чтобы другие люди и специалисты смогли дать на него ответ. Если вы знаете как решить проблему другого человека, пожалуйста, подскажите ему :)













