Посудомоечные машины Ariston LVZ 680 PLUS - инструкция пользователя по применению, эксплуатации и установке на русском языке. Мы надеемся, она поможет вам решить возникшие у вас вопросы при эксплуатации техники.
Если остались вопросы, задайте их в комментариях после инструкции.
"Загружаем инструкцию", означает, что нужно подождать пока файл загрузится и можно будет его читать онлайн. Некоторые инструкции очень большие и время их появления зависит от вашей скорости интернета.

3
LVZ 680 PLUS, LZ 700 PLUS
2
LVZ 680 PLUS, LZ 700 PLUS
!
Ñîõðàíèòå ðóêîâîäñòâî äëÿ ïîëó÷åíèÿ ñïðàâî÷íîé èíôîðìàöèè ïî îáîðóäî-
âàíèþ. Îíî äîëæíî áûòü â êîìïëåêòå ñî ñòèðàëüíîé ìàøèíîé â ñëó÷àå åå ïðî-
äàæè, ïåðåäà÷è èëè ïåðååçäà, ÷òîáû íîâûé âëàäåëåö îáîðóäîâàíèÿ ìîã îç-
íàêîìèòüñÿ ñ ïðàâèëàìè åãî ôóíêöèîíèðîâàíèÿ è îáñëóæèâàíèÿ.
!
Âíèìàòåëüíî ïðî÷èòàéòå ðóêîâîäñòâî: â íåì ñîäåðæàòñÿ âàæíûå ñâåäåíèÿ
ïî áåçîïàñíîé óñòàíîâêå, ýêñïëóàòàöèè è îáñëóæèâàíèþ ïîñóäîìîå÷íîé ìà-
øèíû.
!
Ïðè íåîáõîäèìîñòè ïåðåìåñòèòü îáîðóäîâàíèå ïåðåäâèãàéòå åãî òîëüêî â
âåðòèêàëüíîì ïîëîæåíèè, â êðàéíåì ñëó÷àå ìàøèíó ìîæíî íàêëîíèòü íàçàä.
Ðàçìåùåíèå è âûðàâíèâàíèå
1. Ðàñïàêóéòå ïîñóäîìîå÷íóþ ìàøèíó è ïðîâåðüòå, ÷òî îíà íå áûëà ïîâðåæ-
äåíà âî âðåìÿ òðàíñïîðòèðîâêè. Ïðè îáíàðóæåíèè ïîâðåæäåíèé íå âûïîë-
íÿéòå íèêàêèõ îïåðàöèé ïî óñòàíîâêå îáîðóäîâàíèÿ ñâÿæèòåñü ñ ïîñòàâùè-
êîì íåìåäëåííî.
2. Ïîñóäîìîå÷íóþ ìàøèíó ìîæíî ðàñïîëîæèòü òàê, ÷òîáû åå áîêîâûå ñòîðî-
íû è çàäíÿÿ ïàíåëü êàñàëèñü ðÿäîì ñòîÿùåé ìåáåëè èëè äàæå ñòåíû. Òàêæå
ýòî îáîðóäîâàíèå ìîæíî ïîìåñòèòü ïîä ñòîëåøíèöó êóõîííîé ìåáåëè (ñì. ëèñò
èíñòðóêöèé ïî ìîíòàæó).
3. Óñòàíîâèòå ïîñóäîìîå÷íóþ ìàøèíó íà ðîâíîì è ïðî÷íîì ïîëó. Åñëè ïîë
íåäîñòàòî÷íî ðîâíûé, ãîðèçîíòàëüíîå ïîëîæåíèå ìàøèíû ìîæíî îòðåãóëèðî-
âàòü, âðàùàÿ åå ïåðåäíèå íîæêè (óãîë íàêëîíà íå äîëæåí ïðåâûøàòü 2°).
Ïðàâèëüíîå âûðàâíèâàíèå îáîðóäîâàíèÿ äåëàåò åãî áîëåå óñòîé÷èâûì è
óìåíüøàåò âåðîÿòíîñòü ïîÿâëåíèÿ øóìà, âèáðàöèé è ñìåùåíèÿ ìàøèíû âî
âðåìÿ åå ðàáîòû.
4. Îòðåãóëèðóéòå âûñîòó çàäíèõ íîæåê: èñïîëüçóéòå îòâåðòêó, ÷òîáû çàòÿíóòü
èëè îñëàáèòü âèíòû, ðàñïîëîæåííûå â ïåðåäíåé íèæíåé ÷àñòè ïîñóäîìîå÷-
íîé ìàøèíû.*
Ïîäêëþ÷åíèå ê âîäîïðîâîäíîé è ýëåêòðè÷åñêîé ñåòè
!
Ïîäêëþ÷åíèå ê âîäîïðîâîäíîé è ýëåêòðè÷åñêîé ñåòè äîëæíî âûïîëíÿòüñÿ
òîëüêî êâàëèôèöèðîâàííûì òåõíèêîì.
!
Ïîñëå óñòàíîâêè âîäîïðîâîäíûå øëàíãè èëè ïèòàþùèé êàáåëü íå äîëæíû
íàõîäèòüñÿ ïîä ïîñóäîìîå÷íîé ìàøèíîé.
Óñòàíîâêà
* Èìåþòñÿ òîëüêî â íåêîòîðûõ ìîäåëÿõ.
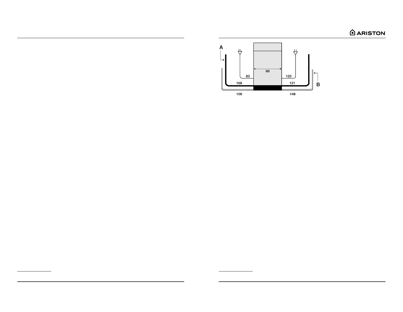
Äëÿ óäîáñòâà óñòàíîâêè çà-
ëèâíîé (A) è ñëèâíîé (B)
øëàíãè, à òàêæå ïèòàþùèé
êàáåëü ìîãóò ïîäñîåäèíÿòü-
ñÿ è ñ ïðàâîé, è ñ ëåâîé ñòî-
ðîí îáîðóäîâàíèÿ (ñì.
ðèñ.
).
Ïîäñîåäèíåíèå çàëèâíîãî øëàíãà
•
Ïîäêëþ÷åíèå ê õîëîäíîé âîäå: ïåðåä ïîäñîåäèíåíèåì øëàíãà ñëåéòå èç
âîäîïðîâîäà ãðÿçíóþ âîäó, ÷òîáû èñêëþ÷èòü çàñîðåíèå îáîðóäîâàíèÿ; çà-
òåì ïëîòíî íàêðóòèòå çàëèâíîé øëàíã íà âîäîïðîâîäíûé âûâîä ñ íàðóæ-
íîé ðåçüáîé 3/4 äþéìà.
•
Ïîäêëþ÷åíèå ê ãîðÿ÷åé âîäå: ïîñóäîìîå÷íàÿ ìàøèíà ìîæåò ïîäêëþ÷àòüñÿ
ê ñåòè ãîðÿ÷åãî âîäîñíàáæåíèÿ (ïðè íàëè÷èè ñèñòåìû öåíòðàëüíîãî îòî-
ïëåíèÿ ñ ðàäèàòîðàìè), åñëè òåìïåðàòóðà âîäû íå ïðåâûøàåò 60°C. Íà-
êðóòèòå øëàíã íà âûâîä âîäîïðîâîäà, êàê îïèñàíî äëÿ ïîäêëþ÷åíèÿ ê
õîëîäíîé âîäå.
!
Åñëè äëèíà çàëèâíîãî øëàíãà íåäîñòàòî÷íà, îáðàòèòåñü â àâòîðèçîâàííûé
ñåðâèñíûé öåíòð äëÿ åãî çàìåíû (ñì.
Ïîìîùü
}.
!
Äàâëåíèå âîäû äîëæíî áûòü â ïðåäåëàõ çíà÷åíèé, óêàçàííûõ â òàáëè÷êå
òåõíè÷åñêèõ äàííûõ îáîðóäîâàíèÿ (ñì. ñ. 5).
!
Øëàíã íå äîëæåí áûòü èçîãíóò èëè ïåðåæàò.
Çàùèòà îò ïðîòå÷åê
×òîáû èñêëþ÷èòü ïðîòå÷êè âîäû â îáîðóäîâàíèå, ïîñóäîìîå÷íàÿ ìàøèíà:
- èìååò ñïåöèàëüíóþ ñèñòåìó, êîòîðàÿ áëîêèðóåò ïîñòóïëåíèå âîäû â ñëó÷àå
àíîìàëèé èëè ïðîòå÷åê âíóòðè îáîðóäîâàíèÿ;
- îñíàùåíà óñòðîéñòâîì áåçîïàñíîñòè
Water Stop
*, äðóãèìè ñëîâàìè ìàøèíà
èìååò çàëèâíîé øëàíã, êîòîðûé ñîñòîèò èç íàðóæíîãî ïðîçðà÷íîãî øëàíãà è
êðàñíîãî âíóòðåííåãî øëàíãà: îáà øëàíãà ìîãóò âûäåðæèâàòü î÷åíü âûñîêîå
äàâëåíèå âîäû.  ñëó÷àå ïîâðåæäåíèÿ âíóòðåííåãî øëàíãà âíåøíèé øëàíã
ñòàíîâèòñÿ ÿðêî-êðàñíûì è âîäà áóäåò ïîäàâàòüñÿ ÷åðåç íåãî, ÷òî èñêëþ÷àåò
ðèñê ïðîòå÷êè.
!
Î÷åíü âàæíî ðåãóëÿðíî ïðîâåðÿòü âíåøíèé øëàíã: åñëè îí ÿðêî-êðàñíîãî
öâåòà, øëàíã íåîáõîäèìî ñðî÷íî çàìåíèòü. Äëÿ çàìåíû øëàíãà âûçîâèòå ñïå-
öèàëèñòîâ èç ñåðâèñíîãî öåíòðà (ñì.
Ïîìîùü
}.
* Èìååòñÿ òîëüêî â íåêîòîðûõ ìîäåëÿõ.












