Посудомоечные машины Ariston LSI 48 A - инструкция пользователя по применению, эксплуатации и установке на русском языке. Мы надеемся, она поможет вам решить возникшие у вас вопросы при эксплуатации техники.
Если остались вопросы, задайте их в комментариях после инструкции.
"Загружаем инструкцию", означает, что нужно подождать пока файл загрузится и можно будет его читать онлайн. Некоторые инструкции очень большие и время их появления зависит от вашей скорости интернета.

4
LSI 48 A
Òåõíè÷åñêèå èíñòðóêöèè
ïî âñòðàèâàíèþ è óñòàíîâêå
Ïîñóäîìîå÷íûå ìàøèíû, ïðåäíàçíà÷åííûå äëÿ âñòðàèâàíèÿ â êóõîííûå ãàð-
íèòóðû, ïîñòàâëÿþòñÿ áåç äåêîðàòèâíîé âåðõíåé ïàíåëè. Äâåðü ïîñóäîìîå÷-
í î é ì à ø è í û ï î ç â î ë ÿ å ò ï ð î è ç â å ñ ò è í à â å ñ ê ó ä å ð å â ÿ í í î é ï à í å ë è ä ë ÿ
âñòðàèâàíèÿ â êóõîííóþ ìåáåëü.
Êðåïëåíèå äåðåâÿííîé ïàíåëè íà äâåðü è óñòàíîâêà
ïîñóäîìîå÷íîé ìàøèíû â êîìïëåêñå ñ êóõîííûì ãàðíèòóðîì
Íå ïðîñâåðëèâàéòå áîêîâûå ñòîðîíû è äâåðöó ïîñóäîìîå÷íîé ìàøèíû ïå-
ðåä óñòàíîâêîé åå â êîðïóñ êóõîííîé ìåáåëè âî èçáåæàíèå íåïðàâèëüíîé
óñòàíîâêè è ïîð÷è îáîðóäîâàíèÿ. Âñåãäà îòêëþ÷àéòå ìàøèíó îò ýëåêòðîñåòè
ïåðåä ïðîâåäåíèåì ðàáîò ñ âíóòðåííèìè êîìïîíåíòàìè îáîðóäîâàíèÿ.
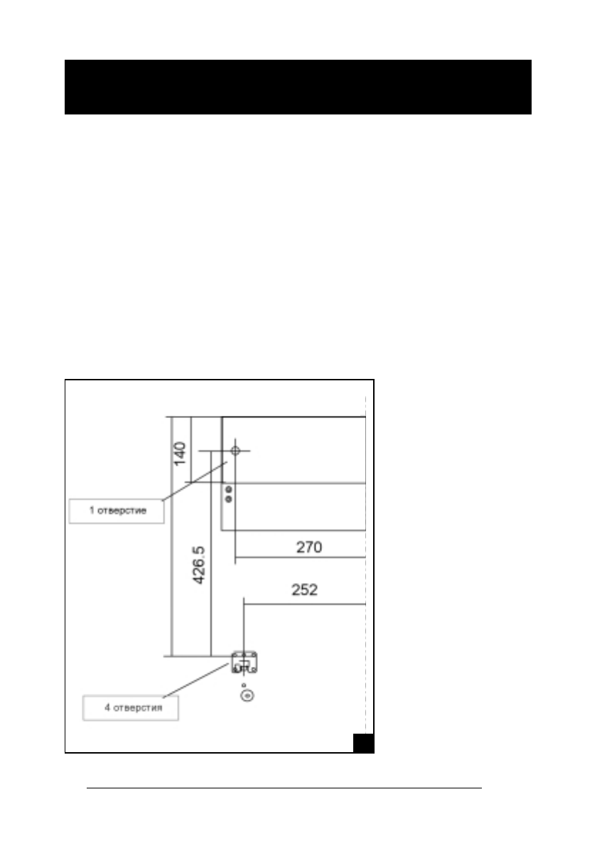
Ìàêñèìàëüíûå ïàðàìåòðû äåðåâÿííîé ïàíåëè, óñòàíàâëèâàåìîé íà äâåðöó
ïîñóäîìîå÷íîé ìàøèíû: âûñîòà 725 ìì; øèðèíà 598 ìì; òîëùèíà
20 ìì, âåñ 10 êã.
Å ñ ë è ï à í å ë ü è ì å å ò
íåïîäõîäÿùèå ðàçìå-
ðû, åå íåîáõîäèìî îá-
ðåçàòü. Ñïåöèàëèñòó,
ïðîèçâîäÿùåìó óñòà-
íîâêó, íåîáõîäèìî ñëå-
ä î â à ò ü ï ð è â å ä å í í û ì
íèæå èíñòðóêöèÿì äëÿ
çàêðåïëåíèÿ ïàíåëè íà
äâåðè ìàøèíû.
Ð à ç ì å ð û ê ð å ï å æ í û õ
ïàíåëåé ïðåäñòàâëåíû
íà
ðèñ. 1
.
1
Ïîëíîñòüþ âñòðàèâàåìûå
ïîñóäîìîå÷íûå ìàøèíû












