Посудомоечные машины Ariston L 6061 - инструкция пользователя по применению, эксплуатации и установке на русском языке. Мы надеемся, она поможет вам решить возникшие у вас вопросы при эксплуатации техники.
Если остались вопросы, задайте их в комментариях после инструкции.
"Загружаем инструкцию", означает, что нужно подождать пока файл загрузится и можно будет его читать онлайн. Некоторые инструкции очень большие и время их появления зависит от вашей скорости интернета.

3
L 6061, L 6063
2
L 6061, L 6063
!
Сохраните
руководство
для
получения
справочной
информации
по
оборудо
-
ванию
.
Оно
должно
быть
в
комплекте
с
посудомоечной
машиной
в
случае
ее
продажи
,
передачи
или
переезда
,
чтобы
новый
владелец
оборудования
мог
ознакомиться
с
правилами
его
функционирования
и
обслуживания
.
!
Внимательно
прочитайте
руководство
:
в
нем
содержатся
важные
сведения
по
безопасной
установке
,
эксплуатации
и
обслуживанию
посудомоечной
ма
-
шины
.
!
При
необходимости
переместить
оборудование
передвигайте
его
только
в
вертикальном
положении
,
в
крайнем
случае
машину
можно
наклонить
назад
.
Размещение
и
выравнивание
1.
Распакуйте
посудомоечную
машину
и
проверьте
,
что
она
не
была
повреж
-
дена
во
время
транспортировки
.
При
обнаружении
повреждений
–
не
выпол
-
няйте
никаких
операций
по
установке
оборудования
–
свяжитесь
с
поставщи
-
ком
немедленно
.
2.
Посудомоечную
машину
можно
расположить
так
,
чтобы
ее
боковые
сторо
-
ны
и
задняя
панель
касались
рядом
стоящей
мебели
или
даже
стены
.
Также
это
оборудование
можно
поместить
под
столешницу
кухонной
мебели
(
см
.
лист
инструкций
по
монтажу
).
3.
Установите
посудомоечную
машину
на
ровном
и
прочном
полу
.
Если
пол
недостаточно
ровный
,
горизонтальное
положение
машины
можно
отрегулиро
-
вать
,
вращая
ее
передние
ножки
(
угол
наклона
не
должен
превышать
2°).
Правильно е
выравнивание
обо рудования
делает
его
бол ее
устойчивы м
и
уменьшает
вероятность
появления
шума
,
вибраций
и
смещения
машины
во
время
ее
работы
.
Подключение
к
водопроводной
и
электрической
сети
!
Подключение
к
водопроводной
и
электрической
сети
должно
выполняться
только
квалифицированным
техником
.
!
После
установки
водопроводные
шланги
или
питающий
кабель
не
должны
находиться
под
посудомоечной
машиной
.
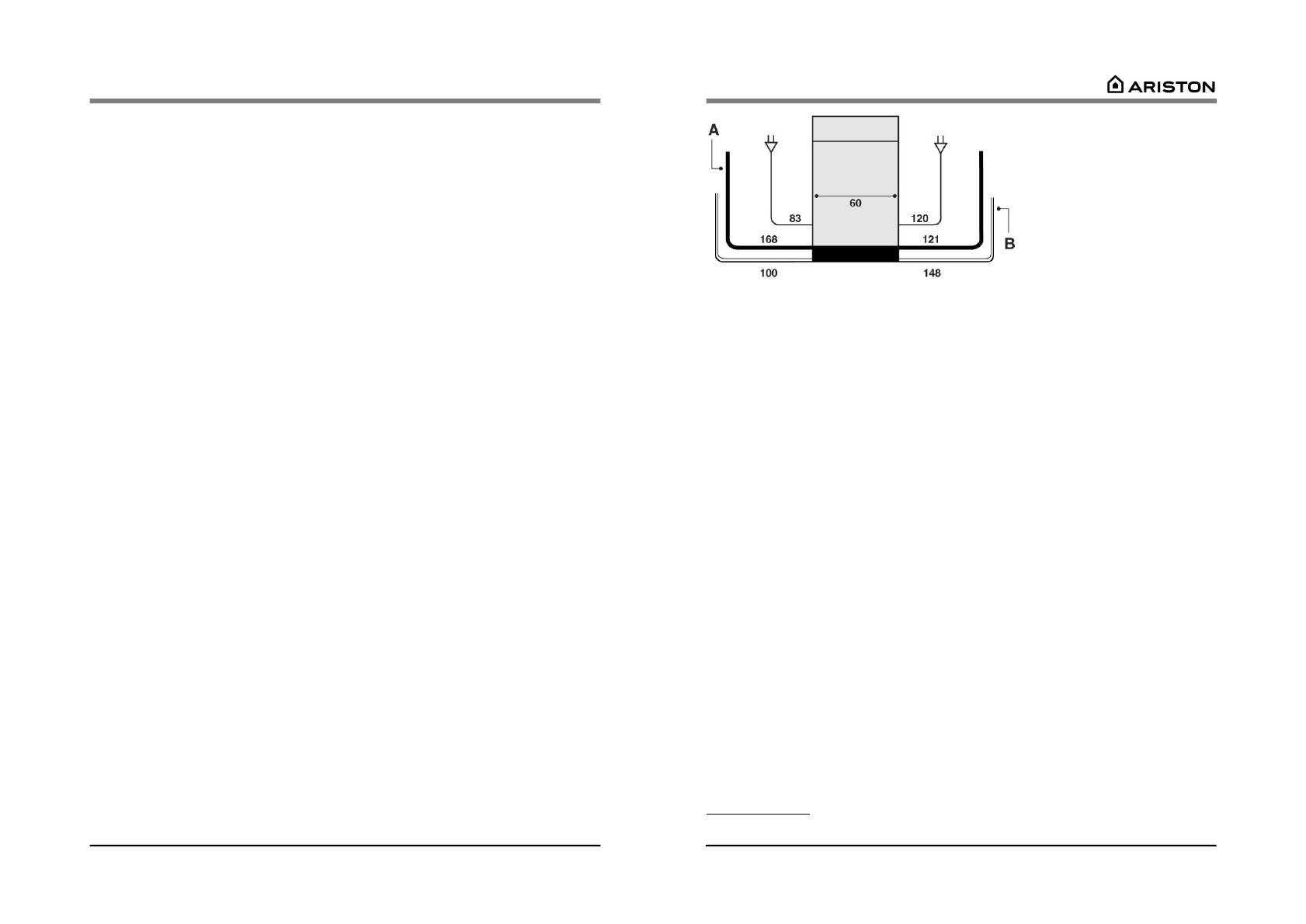
Установка
Для
удобства
установки
за
-
л и в но й
(A )
и
с л и в но й
(B )
шл анг и
,
а
также
питающий
кабель
могут
подсоединять
-
ся
и
с
правой
,
и
с
левой
сто
-
рон
оборудования
(
см
.
рис
.
).
Подсоединение
заливного
шланга
·
Подключение
к
холодной
воде
:
перед
подсоединением
шланга
слейте
из
водопровода
грязную
воду
,
чтобы
исключить
засорение
оборудования
;
за
-
тем
плотно
накрутите
заливной
шланг
на
водопроводный
вывод
с
наруж
-
ной
резьбой
3/4
дюйма
.
·
Подключение
к
горячей
воде
:
посудомоечная
машина
может
подключаться
к
сети
горячего
водоснабжения
(
при
наличии
системы
центрального
ото
-
пления
с
радиаторами
),
если
температура
воды
не
превышает
60°C.
На
-
крутите
шланг
на
вывод
водопровода
,
как
описано
для
подключения
к
холодной
воде
.
!
Если
длина
заливного
шланга
недостаточна
,
обратитесь
в
авторизованный
сервисный
центр
для
его
замены
(
см
.
Помощь
}.
!
Давление
воды
должно
быть
в
пределах
значений
,
указанных
в
табличке
технических
данных
оборудования
(
см
.
с
. 5).
!
Шланг
не
должен
быть
изогнут
или
пережат
.
Защита
от
протечек
Чтобы
исключить
протечки
воды
в
оборудование
,
посудомоечная
машина
:
-
имеет
специальную
систему
,
которая
блокирует
поступление
воды
в
случае
аномалий
или
протечек
внутри
оборудования
;
-
оснащена
устройством
безопасности
Water Stop
*,
другими
словами
,
маши
-
на
имеет
заливной
шланг
,
который
состоит
из
наружного
прозрачного
шланга
и
красного
внутреннего
шланга
:
оба
шланга
могут
выдерживать
очень
высо
-
кое
давление
воды
.
В
случае
повреждения
внутреннего
шланга
внешний
шланг
становится
ярко
-
красным
и
вода
будет
подаваться
через
него
,
что
исключает
риск
протечки
.
!
Очень
важно
регулярно
проверять
внешний
шланг
:
если
он
ярко
-
красного
цвета
,
шланг
необходимо
срочно
заменить
.
Для
замены
шланга
вызовите
спе
-
циалистов
из
сервисного
центра
(
см
.
Помощь
}.
*
Имеется
только
в
некоторых
моделях
.
 
  
  
  
  
  
  
  
  
  
  
  
  
  
 











