Посудомоечные машины AKPO ZMA45 Series 6 Autoopen - инструкция пользователя по применению, эксплуатации и установке на русском языке. Мы надеемся, она поможет вам решить возникшие у вас вопросы при эксплуатации техники.
Если остались вопросы, задайте их в комментариях после инструкции.
"Загружаем инструкцию", означает, что нужно подождать пока файл загрузится и можно будет его читать онлайн. Некоторые инструкции очень большие и время их появления зависит от вашей скорости интернета.

ПОДГОТОВКА К УСТАНОВКЕ
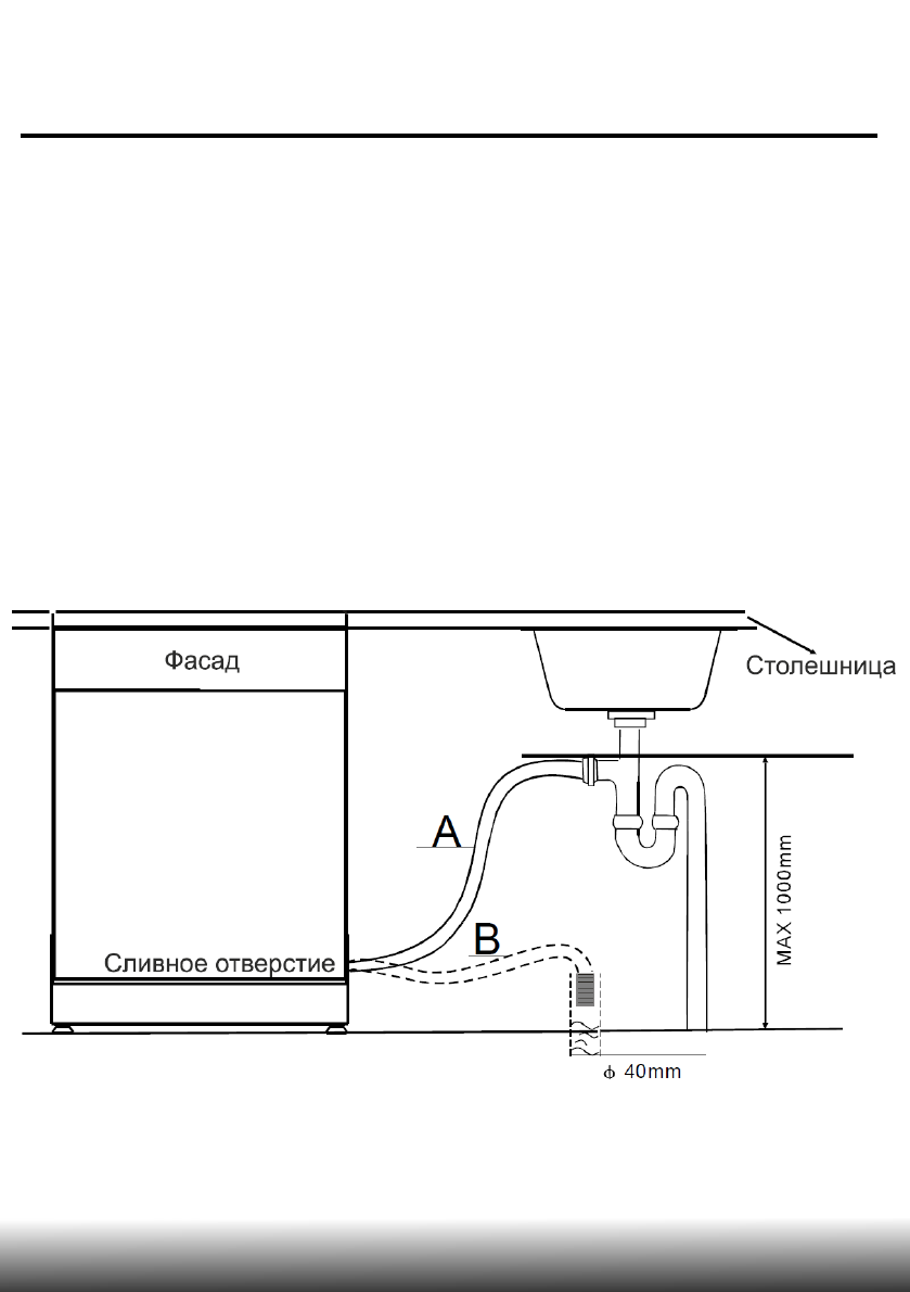
Во избежание скопления воды внизу камеры по окончанию мойки,
установку сливных шлангов необходимо производить с учетом
рекомендаций по длине, высоте и углу перегиба шлангов.
Вставьте дренажный шланг в трубу слива минимального диаметра 40
мм, используйте пластиковый держатель, идущий в комплекте. Верхняя
часть шланга должна находится на высоте от 40 до 100 см, но
обязательно выше уровня слива, чтобы отработанная вода не затекала в
машину (рис. 6).
Пожалуйста, разместите сливной шланг одним из способов
(А)
или
(В)
.
РИСУНОК 6
ПОДСОЕДИНЕНИЕ СЛИВНЫХ ШЛАНГОВ
-18-
РИСУНОК 6
Характеристики
Остались вопросы?Не нашли свой ответ в руководстве или возникли другие проблемы? Задайте свой вопрос в форме ниже с подробным описанием вашей ситуации, чтобы другие люди и специалисты смогли дать на него ответ. Если вы знаете как решить проблему другого человека, пожалуйста, подскажите ему :)