Посудомоечные машины AEG FAVORIT 84470 VI - инструкция пользователя по применению, эксплуатации и установке на русском языке. Мы надеемся, она поможет вам решить возникшие у вас вопросы при эксплуатации техники.
Если остались вопросы, задайте их в комментариях после инструкции.
"Загружаем инструкцию", означает, что нужно подождать пока файл загрузится и можно будет его читать онлайн. Некоторые инструкции очень большие и время их появления зависит от вашей скорости интернета.

40
œ
œÓ
Ó‰
‰Ò
ÒÓ
ÓÂ
‰
‰Ë
ËÌ
ÌÂ
ÂÌ
ÌË
ËÂ
 Ò
ÒÎ
ÎË
Ë‚
‚Ì
ÌÓ
Ó„„Ó
Ó ¯
¯Î
·
‡Ì
Ì„„‡
‡
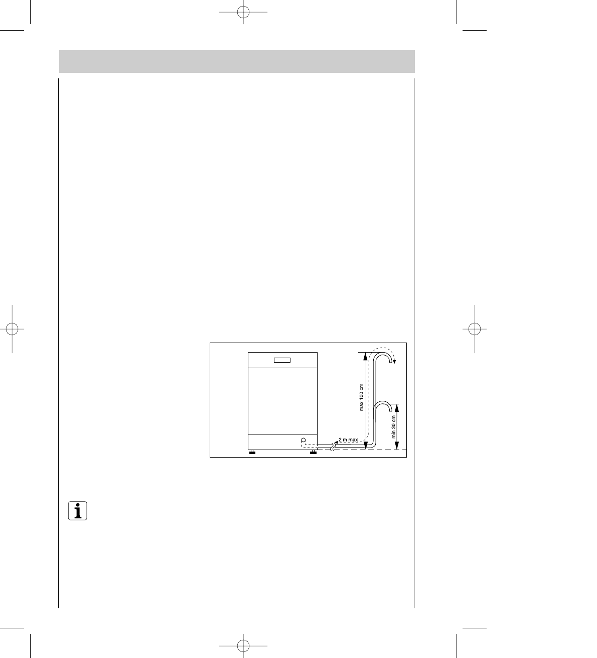
KÓ̈ ÒÎË‚ÌÓ„Ó ¯Î‡Ì„‡ ÏÓÊÂÚ ·˚Ú¸ ÔÓ‰Íβ˜ÂÌ ÒÎÂ‰Û˛˘ËÏ Ó·‡ÁÓÏ:
1
1.. K ‚˚ÔÛÒÍÌÓÏÛ ÒËÙÓÌÛ ‡ÍÓ‚ËÌ˚, Á‡ÍÂÔË‚ Â„Ó Ì‡ ÌËÊÌÂÈ ÔÓ‚ÂıÌÓÒÚË
ÒÚÓίÌˈ˚. ›ÚÓ Ô‰ÛÔ‰ËÚ Ó·‡ÚÌ˚È ÓÚÚÓÍ „ˇÁÌÓÈ ‚Ó‰˚ ËÁ ‡ÍÓ‚ËÌ˚
‚ χ¯ËÌÛ.
2.
«‡ÍÂÔËÚ ̇ ͇˛ ‡ÍÓ‚ËÌ˚ ÔË ÔÓÏÓ˘Ë ÒÔˆˇθÌÓÈ Ô·ÒÚχÒÒÓ‚Ó„Ó
̇ԇ‚Ρ˛˘Â„Ó ÍÓÎÂ̇
(ÂÒÎË ‚ıÓ‰ËÚ ‚ ÍÓÏÔÎÂÍÚ Ï‡¯ËÌ˚).
3.
K ÒÚÓˇÍÛ Ò ‚ıÓ‰Ì˚Ï ÓÚ‚ÂÒÚËÂÏ, ÏËÌËχθÌ˚È ‚ÌÛÚÂÌÌËÈ ‰Ë‡ÏÂÚ
ÍÓÚÓÓ„Ó ‡‚ÂÌ 4 ÒÏ.
—ÎË‚ÌÓÈ ¯Î‡Ì„ ‰ÓÎÊÂÌ Ì‡ıÓ‰ËÚ¸Òˇ ̇ ‚˚ÒÓÚ ÓÚ 30 ÒÏ (ÏËÌËÏÛÏ) ‰Ó 100 ÒÏ
(χÍÒËÏÛÏ) ÓÚ ÌËÁ‡ ÔÓÒÛ‰ÓÏÓ˜ÌÓÈ Ï‡¯ËÌ˚.
“‡ÍÊ ÒÎË‚ÌÓÈ ¯Î‡Ì„ ÏÓÊÂÚ ·˚Ú¸ ÛÒÚ‡ÌÓ‚ÎÂÌ Ò Ô‡‚ÓÈ ËÎË Ò Î‚ÓÈ ÒÚÓÓÌ˚
ÔÓÒÛ‰ÓÏÓ˜ÌÓÈ Ï‡¯ËÌ˚.
œÓ‚¸ÚÂ, ˜ÚÓ ·˚ ¯Î‡Ì„ Ì ·˚Î ÒÍÛ˜ÂÌ ËÎË ÔÂÂʇÚ, Ú‡Í Í‡Í ˝ÚÓ ÏÓÊÂÚ
‚ÓÒÔÂÔˇÚÒÚ‚Ó‚‡Ú¸ ËÎË Á‡Ï‰ÎËÚ¸ ÒÎË‚ ‚Ó‰˚.
œÓ·Í‡ ÏÓÈÍË ‰ÓÎÊ̇ ·˚Ú¸ ‚˚ÌÛÚ‡ ‚Ó ‚ÂÏˇ ÒÎË‚‡ ËÁ χ¯ËÌ˚ ‚Ó‰˚, Ú‡Í Í‡Í
 ̇΢ˠÏÓÊÂÚ ‚˚Á‚‡Ú¸ ÔÂÂ͇˜Ë‚‡ÌË ‚Ó‰˚ Ó·‡ÚÌÓ ‚ χ¯ËÌÛ.
œË ËÒÔÓθÁÓ‚‡ÌËË Û‰ÎËÌËÚÂΡ ÒÎË‚ÌÓ„Ó ¯Î‡Ì„‡ ÓÌ ‰ÓÎÊÂÌ ·˚Ú¸ Ì ‰ÎËÌÌ 2
ÏÂÚÓ‚, Ë Â„Ó ‚ÌÛÚÂÌÌËÈ ‰Ë‡ÏÂÚ ‰ÓÎÊÂÌ ·˚Ú¸ Ì ÏÂ̸¯Â ‰Ë‡ÏÂÚ‡
ÔÓÒÚ‡‚ÎÂÌÌÓ„Ó ¯Î‡Ì„‡.
“‡ÍÊ ‚ÌÛÚÂÌÌËÈ ‰Ë‡ÏÂÚ Ô‡ÚÛ·ÍÓ‚, ËÒÔÓθÁÛÂÏ˚ı ‰Îˇ ÒÓ‰ËÌÂÌˡ
ÒÎË‚ÌÓ„Ó ÓÚ‚ÂÒÚˡ, ‰ÓÎÊÂÌ ·˚Ú¸ Ì ÏÂ̸¯Â ‰Ë‡ÏÂÚ‡ ÔÓÒÚ‡‚ÎÂÌÌÓ„Ó ¯Î‡Ì„‡.
¬
¬Ì
ÌË
ËÏ
χ
‡Ì
ÌË
ËÂ
Â!!
Õ‡¯Ë ÔË·Ó˚ ÓÒ̇˘‡˛ÚÒˇ Ô‰Óı‡ÌËÚÂθÌ˚ÏË ÛÒÚÓÈÒÚ‚‡ÏË,
Ô‰ÛÔÂʉ‡˛˘ËÏË Ó·‡ÚÌ˚È ÓÚÚÓÍ „ˇÁÌÓÈ ‚Ó‰˚ ‚ χ¯ËÌÛ. Õ‡Î˘ËÂ
‚ ÒËÙÓÌ ‡ÍÓ‚ËÌ˚ ‚ÒÚÓÂÌÌÓ„Ó "Ó·‡ÚÌÓ„Ó Í·ԇ̇" ÏÓÊÂÚ ÔÓϯ‡Ú¸
Ô‡‚ËθÌÓÏÛ ÒÎË‚Û ‚Ó‰˚ ËÁ χ¯ËÌ˚. œÓ˝ÚÓÏÛ ÂÍÓÏẨÛÂÏ ¬‡Ï ÒÌˇÚ¸
Í·ԇÌ.
CS18
152967 51/0ru 13-11-2003 12:59 Pagina 40












