Плита Simfer F66HW45016 - инструкция пользователя по применению, эксплуатации и установке на русском языке. Мы надеемся, она поможет вам решить возникшие у вас вопросы при эксплуатации техники.
Если остались вопросы, задайте их в комментариях после инструкции.
"Загружаем инструкцию", означает, что нужно подождать пока файл загрузится и можно будет его читать онлайн. Некоторые инструкции очень большие и время их появления зависит от вашей скорости интернета.

29
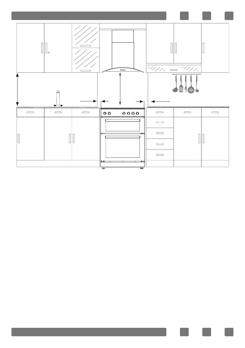
WARNING:
The kitchen furniture near the appliance must be heat
resistant.
WARNING:
Do not install the appliance beside refrigerators or coolers.
Heat radiated by the appliance increases the energy consumption of cooling
devices.
WARNING:
Do not use the door and/or handle to carry or move the appliance.
650mm min.
65mm min.
65mm min.
400 mm min.
Содержание
- 47 Содержание; пе; Характерные
- 57 типа «Y»
- 58 Газобезопасность
- 61 Нельзя тушить воспламенившееся масло или жир
- 62 Таблица возможных неисправностей и меры
- 64 Схема электрического соединения
- 65 Для подключения к баллону сжиженного газа
- 66 Величина помещения; не требуется
- 67 Проход газового шланга
- 70 на рис.12 снимите горелку с гнезда потянув ее на себя.; Снятие нижней горелки:; Крышка нижней горелки зафиксирована с помощью двух винтов, отсое
- 71 ОПИСАНИЕ ИЗДЕЛИЯ; Стандартная конфорка
- 72 Принадлежности
- 73 Технические Характеристики Духового Шкафа; ПРЕДУПРЕЖДЕНИЕ
- 80 Использование Обжаривания Курицы *
- 81 Защитное устройство для отсечки пламени
- 82 Использование Зон Нагрева; При первичном использовании включите конфорку в положении 6 на; Размеры Кастрюли
- 86 Снимите профиль, нажав на пластиковые защелки слева и справа, как; Снятие стекла дверцы; Осторожно откройте дверцу. Снимите стекло, потянув вверх. Внешнее
- 88 Тип G9 Лампы
- 90 ниже и попробуйте устранить неполадку, выполнив рекомендации.
- 92 СОВЕТЫ ПО ЭНЕРГОСБЕРЕЖЕНИЮ
- 93 п у н к т с б о р а д л я; УПАКОВКА; Утилизация