Плита Smeg CPF9GPX - инструкция пользователя по применению, эксплуатации и установке на русском языке. Мы надеемся, она поможет вам решить возникшие у вас вопросы при эксплуатации техники.
Если остались вопросы, задайте их в комментариях после инструкции.
"Загружаем инструкцию", означает, что нужно подождать пока файл загрузится и можно будет его читать онлайн. Некоторые инструкции очень большие и время их появления зависит от вашей скорости интернета.

Установка
570
Общая информация
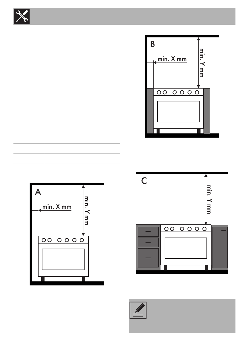
Данный прибор можно приближать к
стенам, из которых одна превышает
высоту рабочей поверхности, не ближе
X
мм от боковой стороны прибора, как
изображено на рисунках A и С, в
зависимости от классов установки.
Минимальное расстояние между
подвесным шкафом, размещаемым над
рабочей поверхность прибора, должно
быть равным
Y
мм. В случае
установления вытяжки над варочной
панелью, рекомендуется обращаться к
руководству по установке вытяжки, чтобы
определить правильное расстояние.
В зависимости от вида установки,
данный прибор принадлежит к классам:
A - Класс 1
(Независимая установка прибора)
В - 2 Класс 1 подкласс
(Встроенный прибор)
С - 2 Класс 1 подкласс
(Встроенный прибор)
X
150 мм
Y
750 мм
Прибор должен устанавливаться
квалифицированным
специалистом с соблюдением
действующих норм.
Характеристики
Остались вопросы?Не нашли свой ответ в руководстве или возникли другие проблемы? Задайте свой вопрос в форме ниже с подробным описанием вашей ситуации, чтобы другие люди и специалисты смогли дать на него ответ. Если вы знаете как решить проблему другого человека, пожалуйста, подскажите ему :)