Плита Gorenje GIN52260IW - инструкция пользователя по применению, эксплуатации и установке на русском языке. Мы надеемся, она поможет вам решить возникшие у вас вопросы при эксплуатации техники.
Если остались вопросы, задайте их в комментариях после инструкции.
"Загружаем инструкцию", означает, что нужно подождать пока файл загрузится и можно будет его читать онлайн. Некоторые инструкции очень большие и время их появления зависит от вашей скорости интернета.

20
LOCATION
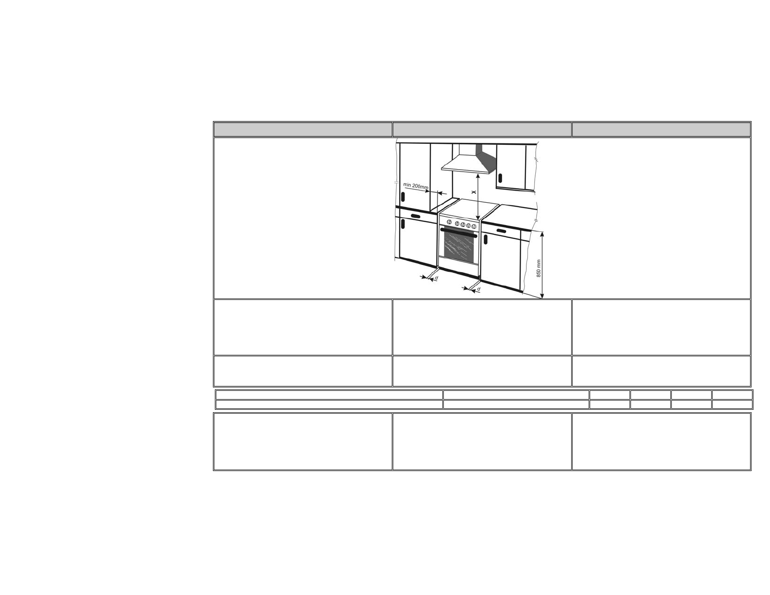
УСТАНОВКА ПЛИТЫ
РОЗМІЩЕННЯ
The appliance is designed for installation in the line of 
kitchen cabinets. The cooker can be located in the 
standard kitchen with a minimum space of 20m
3
.
If the kitchen is smaller (but not less than 15m
3
as a
minimum) it is necessary to provide a hood. Regarding 
thermal resistance the cooker can be positioned on any 
floor, as long as it is not located on a pedestal. 
Плита может быть установлена в ряд с кухонной 
мебелью. Объём помещения должен быть 
минимально 20м
3
. Помещения с меньшим объёмом
(минимально 15 м
3
)
должны быть обеспечены
вентиляцией. С точки зрения теплостойкости плиту 
можно  поставить на любой пол (покрытие). 
Плита не должна устанавливаться на подставку.  
Прилад спроектовано для інсталяції на лінії 
кухонних шкафів. Плиту можна розмістити в 
стандартній кухні з мінімальною площею 20m
3
.
Якщо площа кухні менша (але не менша ніж 15m
3
, як
мінімум), необхідно на кухні розмістити витяжку. 
Відносно теплового опору плиту можна розмістити 
на будь-яку підлогу, але не на підставку.   
“X” - a minimum distance of 750 mm, in line with the 
manufacturer’s instructions. 
Х - минимальное расстояние 750 мм
Остальные размеры при установке воздухоочистителя 
должны соблюдаться в соответствии с рекомендациями 
изготовителя воздухоочистителей. 
“X” – мінімальна відстань 750 мм, згідно інструкцій 
виробника. 
Combustibility degree /
Степень горючести
/ С т у п і н ь з а й м и с т о с т і
A B
C
1
C
2
C
3
d (mm)
no gap / вплотную / проміжок не потрібний
3 5 10
20
•
When placing the cooker against the walls with
combustibility degrees: B - low combustibility, C1 - 
minimum, C2 - medium, and C3 - easily combustible, 
maintain safe distances from the appliance to the 
wall. 
•
If the back wall is incombustible (Class A) no gap is
required.
•
если плита устанавливается около стен со 
степенью горючести В, C1, C2, C3 , то  безопасное 
расстояние от плиты 
до стены необходимо
соблюдать в соответствии с нижеприведённой 
таблицей. 
•
Без соблюдения расстояния плиту можно 
поставить около стен со степенью горючести А. 
•
Розміщуючи плиту навпроти стін зі ступенем 
займистості: B – низька займистість, C1 - 
мінімальна, C2 - середня, та C3 – висока 
займистість, необхідно забезпечити безпечну 
відстань від приладу до стіни. 
•
Якщо задня стінка не є займистою (клас А), 
проміжок непотрібний.  
Содержание
- 4 N O T E
 - 5 д у х о в к и
 - 6 OPERATION; З А С Т Е Р Е Ж Е Н Н Я :
 - 8 П Р И М Е Ч А Н И Е
 - 11 synchronous pressing of buttons 2 and 3
 - 13 A T E M P E R A T U R E S E L E C T O R; H E L P F U L H I N T :
 - 14 GRILL; G R I L L B U R N E R O P E R A T I O N
 - 19 - в отходы макулатуры
 - 21 / С т у п і н ь з а й м и с т о с т і
 - 24 M I N I M U M O U T P U T A D J U S T M E N T; если; В Н И М А Н И Е !
 - 25 Oven temperature selector
 - 26 - датчик предохранителя пламени
 - 29 RU; Oven; аметр; UA
 - 30 h e i g h t / w i d t h / d e p t h; II
 
 
 
 
 
 
 
 
 
 
 
 
 
 
 
 
 
 
 
 
 
 
 
 
 
 
 
 
 
 
 
 
 











