Плита Gorenje GIN52160IW - инструкция пользователя по применению, эксплуатации и установке на русском языке. Мы надеемся, она поможет вам решить возникшие у вас вопросы при эксплуатации техники.
Если остались вопросы, задайте их в комментариях после инструкции.
"Загружаем инструкцию", означает, что нужно подождать пока файл загрузится и можно будет его читать онлайн. Некоторые инструкции очень большие и время их появления зависит от вашей скорости интернета.

17
OVEN BURNER SETTINGS
РЕГУЛИРОВКА ГОРЕЛКИ ДУХОВКИ
P R I M A R Y A I R A D J U S T M E N T
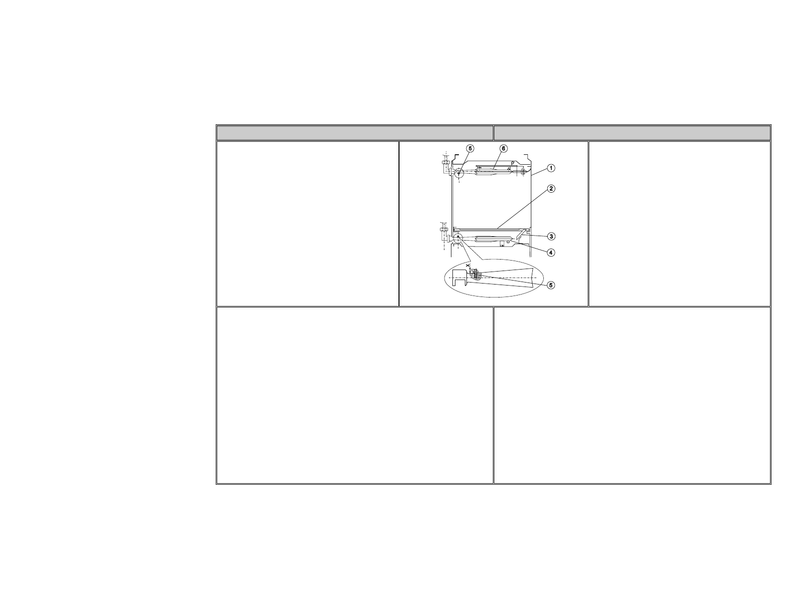
To access the primary air adjusting screw (5), open or
remove oven door and remove oven bottom (2). By
unscrewing the adjusting screw the quantity of primary
air is increase, by tightening it is reduced. The air/gas
mixture is correct when the flame has blue color.
Adjust screw 5 for value X in accordance with the table,
and tighten the nut.
Check that the burner is working properly: the flame
must be blue and sharp, without a yellow tip
1 – Front oven wall
2 – Oven bottom
3 – Ignition tube
4 – Oven burner
5 – Oven burner adjusting screw
6 – Grill burner
Р Е Г У Л И Р О В К А К О Л И Ч Е С Т В А
П О Д С А С Ы В А Е М О Г О П Е Р В И Ч Н О Г О
В О З Д У Х А
Отрегулировать количество подсасываемого
воздуха можно с помощью регулировочного винта.
Но прежде нужно открыть дверцу духовки (при
необходимости, дверцу снять с петель) и вытащить
дно.
При отвинчивании регулировочного винта
количество первичного подсасываемого воздуха
увеличивается, при завинчивании - уменьшается.
Положение винта (величину „Х“) нужно установить в
соответствии с нижеприведённой таблицей.
1 – передняя стена духовки
2 – дно духовки
3 – трубка запальная
4 – горелка духовки
5 – винт регулировочный
6 – горелка гриля
A D J U S T M E N T O F O V E N B U R N E R M I N I M U M P O W E R
On completion of this operation, proceed as follows:
Remove the oven bottom.
Oven control knob
Lift off the oven control knob.
For propane/butane fully tighten screw G and for natural gas unscrew screw G by a
½ or ¾ turn for natural gas
Oven temperature selector
Disconnect the cooker from the mains power supply. Lifř the oven temperature
selector knob. For propane/butane fully tighten screw G.
•
For natural gas unscrew screw G by a ½ or ¾ turn for natural gas
•
Light the oven burner and close the oven door.
Oven control knob
Set the oven control knob to position “MAXIMUM POWER -8” and heat the oven for
15 minutes. Then set the control knob to the to adjust the flame.
Oven temperature selector
Set the temperature selector control knob to position 8 and heat the oven for 15 minutes.
Then set the temperature selector knob to position 1 and use screw G to adjust the flame.
Right turn reduces the height of the flame, and left turn increases the height. The adjustment
is correct when the body of the flame is about 3 to 4 mm high.
Replace the knob and set it to the switch off position, then replace the oven base.
If the flame sensor does not operate properly, check its position according to fig.
Р Е Г У Л И Р О В К А М О Щ Н О С Т И В П О Л О Ж Е Н И И „ М А Л О Е
П Л А М Я “
Данная операция выполняется следующим способом:
Нужно открыть дверцу духовки и вытащить дно.
Ручка духовки
Снимите ручку термостата горелки духовки.
Выполните предварительную регулировку, завинтив винт G до упора, если
плита работает на пропан-бутане, и отвинтив на 1/2” и даже на 3/4” оборота при
работе плиты на природном газе.
Установите ручку термостата на “МАКСИМАЛЬНУЮ МОЩНОСТЬ - 8”.
З ажгите газ горелки, закройте дверцу и прогрейте духовку в течение,
приблизительно, 15 минут.
Затем установите ручку термостата в положение “МАЛОЕ ПЛАМЯ - 1” и винтом
G выполните окончательную регулировку.
При повороте винта вправо пламя уменьшается, а при повороте влево -
увеличивается. Мощность горелки считается правильно отрегулированной, если
внутренний конус пламени достигает высоты от 3 до 4 мм, а температура в
центре духовки должна быть максимально 160°C.












