Плита Electrolux EKK 954505 X - инструкция пользователя по применению, эксплуатации и установке на русском языке. Мы надеемся, она поможет вам решить возникшие у вас вопросы при эксплуатации техники.
Если остались вопросы, задайте их в комментариях после инструкции.
"Загружаем инструкцию", означает, что нужно подождать пока файл загрузится и можно будет его читать онлайн. Некоторые инструкции очень большие и время их появления зависит от вашей скорости интернета.

13.2 Информация для
обращения в сервис-центр
Если самостоятельно справиться с
проблемой не удается, обращайтесь в
магазин или в авторизованный
сервисный центр.
Данные для сервисных центров
находятся на табличке с техническими
данными. Табличка с техническими
данными находится на передней
рамке внутренней камеры прибора. Не
удаляйте табличку с техническими
данными из внутренней камеры
прибора.
Рекомендуем записать их здесь:
Модель (MOD.)
.........................................
Код изделия (PNC)
.........................................
Серийный номер (S.N.)
.........................................
14. УСТАНОВКА
ВНИМАНИЕ!
См. Главы, содержащие
Сведения по технике
безопасности.
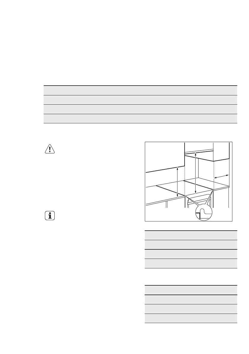
14.1 Место для установки
прибора
Отдельно стоящий прибор можно
устанавливать рядом с предметами
мебели, между ними или в углу.
Между прибором и задней
стенкой обязательно
должен быть зазор
размером около 1 см для
того, чтобы дверца могла
свободно открываться.
Для проверки соблюдения
минимально допустимых зазоров см.
Таблицу.
A
C
B
Минимальные расстояния
Расстояние
мм
А
400
B
650
C
150
14.2 Технические данные
Расстояние
мм
Высота
855
Ширина
500
Глубина
600
www.electrolux.com
36
Характеристики
Остались вопросы?Не нашли свой ответ в руководстве или возникли другие проблемы? Задайте свой вопрос в форме ниже с подробным описанием вашей ситуации, чтобы другие люди и специалисты смогли дать на него ответ. Если вы знаете как решить проблему другого человека, пожалуйста, подскажите ему :)












